先锋PIONEER VSX-43TX电路图

分类:电子电工 日期: 点击:0
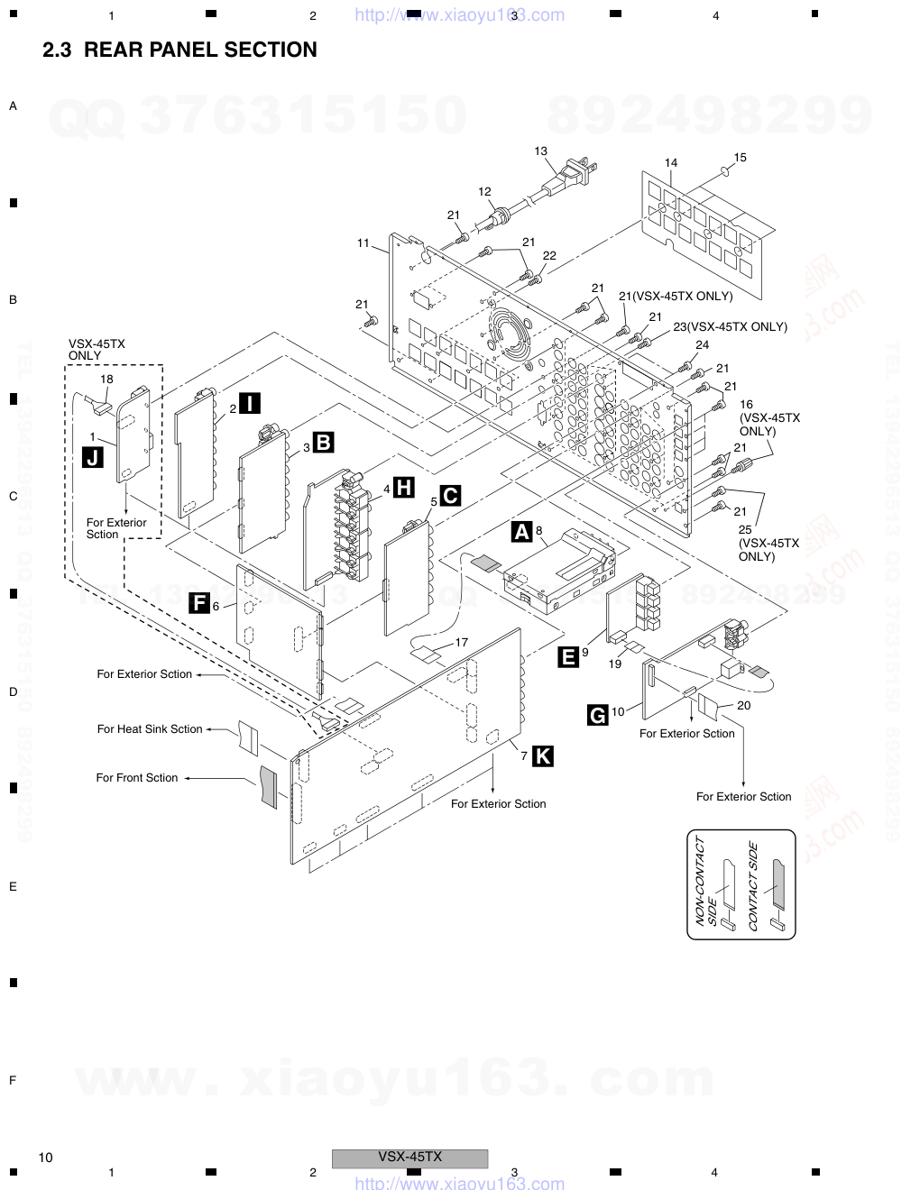
先锋PIONEER VSX-43TX电路图-0 先锋PIONEER VSX-43TX电路图-1 先锋PIONEER VSX-43TX电路图-2 先锋PIONEER VSX-43TX电路图-3 先锋PIONEER VSX-43TX电路图-4 先锋PIONEER VSX-43TX电路图-5 先锋PIONEER VSX-43TX电路图-6 先锋PIONEER VSX-43TX电路图-7 先锋PIONEER VSX-43TX电路图-8 先锋PIONEER VSX-43TX电路图-9

ORDER NO. PIONEER CORPORATION 4-1, Meguro 1-chome, Meguro-ku, Tokyo 153-8654, Japan PIONEER ELECTRONICS (USA) INC. P.O. Box 1760, Long Beach, CA 90801-1760, U.S.A. PIONEER EUROPE NV Haven 1087, Keetberglaan 1, 9120 Melsele, Belgium PIONEER ELECTRONICS ASIACENTRE PTE. LTD. 253 Alexandra Road, #04-01, Singapore 159936 PIONEER CORPORATION 2002 STANDBY/ON MOVIE MUSIC MULTI JOG ENTER STEREO/DIRECT MULTI CH IN MASTER VOLUME ACOUSTIC EQ STANDBY MULTI CHANNNEL ACOUSTIC CALIBRATION VSX-45TX AUDIO/VIDEO MULTI-CHANNEL RECEIVER PHONES SPEAKERS SIGNAL SELECT SB CH MODE HI-BIT HI-SAMPLING SETUP MIC DIGITAL IN S-VIDEO VIDEO VIDEO INPUT AUDIO L R SET UP RETURN TONE TONE CONTROL BASS/TREBLE CLASS BAND STATION TUNING MULTI ROOM MULTI JOG/ENTER CONTROL ON/OFF & SOURCE MULTI JOG CONTROL SELECT TUNER EDIT VSX-45TX RRV2635 AUDIO/VIDEO MULTI-CHANNEL RECEIVER VSX-45TX VSX-43TX THIS MANUAL IS APPLICABLE TO THE FOLLOWING MODEL(S) AND TYPE(S). Model Type Power Requirement Remarks VSX-45TX KUXJI/CA AC120V VSX-43TX KUXJI/CA AC120V For details, refer to "Important symbols for good services" . T-ZZK JULY 2002 printed in Japan www. xiaoyu163. com QQ 376315150 9 9 2 8 9 4 2 9 8 TEL 13942296513 9 9 2 8 9 4 2 9 8 0 5 1 5 1 3 6 7 3 Q Q TEL 13942296513 QQ 376315150 892498299 TEL 13942296513 QQ 376315150 892498299 http://www.xiaoyu163.com VSX-45TX 2 1 2 3 4 1 2 3 4 C D F A B E SAFTY INFORMATION This service manual is intended for qualified service technicians; it is not meant for the casual do-it-yourselfer. Qualified technicians have the necessary test equipment and tools, and have been trained to properly and safely repair complex products such as those covered by this manual. Improperly performed repairs can adversely affect the safety and reliability of the product and may void the warranty. If you are not qualified to perform the repair of this product properly and safely, you should not risk trying to do so and refer the repair to a qualified service technician. WARNING This product contains lead in solder and certain electrical parts contain chemicals which are known to the state of California to cause cancer, birth defects or other reproductive harm. Health & Safety Code Section 25249.6 – Proposition 65 NOTICE (FOR CANADIAN MODEL ONLY) Fuse symbols (fast operating fuse) and/or (slow operating fuse) on PCB indicate that replacement parts must be of identical designation. REMARQUE (POUR MODÈLE CANADIEN SEULEMENT) Les symboles de fusible (fusible de type rapide) et/ou (fusible de type lent) sur CCI indiquent que les pièces de remplacement doivent avoir la même désignation. ANY MEASUREMENTS NOT WITHIN THE LIMITS OUTLINED ABOVE ARE INDICATIVE OF A POTENTIAL SHOCK HAZARD AND MUST BE CORRECTED BEFORE RETURN- ING THE APPLIANCE TO THE CUSTOMER. 2. PRODUCT SAFETY NOTICE Many electrical and mechanical parts in the appliance have special safety related characteristics. These are often not evident from visual inspection nor the protection afforded by them necessarily can be obtained by using replacement components rated for voltage, wattage, etc. Replacement parts which have these special safety characteristics are identified in this Service Manual. Electrical components having such features are identified by marking with a on the schematics and on the parts list in this Service Manual. The use of a substitute replacement component which does not have the same safety characteristics as the PIONEER recommended replacement one, shown in the parts list in this Service Manual, may create shock, fire, or other hazards. Product Safety is continuously under review and new instructions are issued from time to time. For the latest information, always consult the current PIONEER Service Manual. A subscription to, or additional copies of, PIONEER Service Manual may be obtained at a nominal charge from PIONEER. (FOR USA MODEL ONLY) 1. SAFETY PRECAUTIONS The following check should be performed for the continued protection of the customer and service technician. LEAKAGE CURRENT CHECK Measure leakage current to a known earth ground (water pipe, conduit, etc.) by connecting a leakage current tester such as Simpson Model 229-2 or equivalent between the earth ground and all exposed metal parts of the appliance (input/output terminals, screwheads, metal overlays, control shaft, etc.). Plug the AC line cord of the appliance directly into a 120V AC 60 Hz outlet and turn the AC power switch on. Any current measured must not exceed 0.5 mA. Device under test Leakage current tester Earth ground Reading should not be above 0.5 mA Also test with plug reversed (Using AC adapter plug as required) Test all exposed metal surfaces AC Leakage Test www. xiaoyu163. com QQ 376315150 9 9 2 8 9 4 2 9 8 TEL 13942296513 9 9 2 8 9 4 2 9 8 0 5 1 5 1 3 6 7 3 Q Q TEL 13942296513 QQ 376315150 892498299 TEL 13942296513 QQ 376315150 892498299 http://www.xiaoyu163.com VSX-45TX 3 5 6 7 8 5 6 7 8 C D F A B E [ Important symbols for good services ] In this manual, the symbols shown-below indicate that adjustments, settings or cleaning should be made securely. When you find the procedures bearing any of the symbols, be sure to fulfill them: 2. Adjustments To keep the original performances of the product, optimum adjustments or specification confirmation is indispensable. In accordance with the procedures or instructions described in this manual, adjustments should be performed. 3. Cleaning For optical pickups, tape-deck heads, lenses and mirrors used in projection monitors, and other parts requiring cleaning, proper cleaning should be performed to restore their performances. 5. Lubricants, glues, and replacement parts Appropriately applying grease or glue can maintain the product performances. But improper lubrication or applying glue may lead to failures or troubles in the product. By following the instructions in this manual, be sure to apply the prescribed grease or glue to proper portions by the appropriate amount.For replacement parts or tools, the prescribed ones should be used. 4. Shipping mode and shipping screws To protect the product from damages or failures that may be caused during transit, the shipping mode should be set or the shipping screws should be installed before shipping out in accordance with this manual, if necessary. 1. Product safety You should conform to the regulations governing the product (safety, radio and noise, and other regulations), and should keep the safety during servicing by following the safety instructions described in this manual. www. xiaoyu163. com QQ 376315150 9 9 2 8 9 4 2 9 8 TEL 13942296513 9 9 2 8 9 4 2 9 8 0 5 1 5 1 3 6 7 3 Q Q TEL 13942296513 QQ 376315150 892498299 TEL 13942296513 QQ 376315150 892498299 http://www.xiaoyu163.com VSX-45TX 4 1 2 3 4 1 2 3 4 C D F A B E CONTENTS SAFTY INFORMATION ....................................................................................................................................... 2 1. SPECIFICATIONS ............................................................................................................................................ 5 2. EXPLODED VIEWS AND PARTS LIST ............................................................................................................ 6 2.1 PACKING ................................................................................................................................................... 6 2.2 EXTERIOR SECTION................................................................................................................................ 8 2.3 REAR PANEL SECTION.......................................................................................................................... 10 2.4 HEAT SINK SECTION.............................................................................................................................. 12 2.5 FRONT PANEL SECTION ....................................................................................................................... 14 3. BLOCK DIAGRAM AND SCHEMATIC DIAGRAM.......................................................................................... 16 3.1 AUDIO BLOCK DIAGRAM....................................................................................................................... 16 3.2 DSP BLOCK DIAGRAM........................................................................................................................... 18 3.3 VIDEO AND POWER AMP BLOCK DIAGRAM ....................................................................................... 20 3.4 OVERALL WIRING DIAGRAM................................................................................................................. 22 3.5 FM/AM TUNER MODULE........................................................................................................................ 24 3.6 7.1CH I/O, V-AUDIO IN, FRONT IN and OPTICAL IN ASSYS ................................................................ 26 3.7 INPUT CONNECT and COAXIAL IN ASSYS .......................................................................................... 28 3.8 VIDEO ASSY ........................................................................................................................................... 30 3.9 COMPONENT and RS232C ASSYS ....................................................................................................... 32 3.10 MAIN CONTROL ASSY (1/3)................................................................................................................. 34 3.11 MAIN CONTROL ASSY (2/3)................................................................................................................. 36 3.12 MAIN CONTROL ASSY (3/3)................................................................................................................. 38 3.13 MIC & F.OPT IN, MIC AMP and DSP CONNECTION ASSYS .............................................................. 40 3.14 POWER AMP IN, FAN DRIVE and FAN CONNECTION ASSYS .......................................................... 42 3.15 DSP ASSY (1/2)..................................................................................................................................... 44 3.16 DSP ASSY (2/2)..................................................................................................................................... 46 3.17 DISPLAY ASSY...................................................................................................................................... 48 3.18 VOLUME, MULTI JOG and HEADPHONE ASSYS................................................................................ 50 3.19 REGULATOR ASSY............................................................................................................................... 52 3.20 POWER AMP-L ASSY........................................................................................................................... 54 3.21 POWER AMP-R and POWER AMP-C ASSYS...................................................................................... 56 3.22 SP/PS, DIODE, TRANS 2-1 and VH TR ASSYS.................................................................................... 58 3.23 TRANS 2-2, TRANS 1 and PRIMARY ASSYS....................................................................................... 60 4. PCB CONNECTION DIAGRAM ..................................................................................................................... 62 4.1 FM/AM TUNER MODULE........................................................................................................................ 63 4.2 7.1CH I/O ASSY ...................................................................................................................................... 64 4.3 V-AUDIO IN ASSY.................................................................................................................................... 65 4.4 FRONT IN, OPTICAL IN and INPUT CONNECT ASSYS........................................................................ 66 4.5 COAXIAL IN ASSY .................................................................................................................................. 68 4.6 VIDEO ASSY ........................................................................................................................................... 69 4.7 MAIN CONTROL and RS232C ASSYS................................................................................................... 70 4.8 MIC & F. OPT IN, MIC AMP and DSP CONNECTION ASSYS ............................................................... 74 4.9 POWER AMP IN ASSY............................................................................................................................ 76 4.10 FAN DRIVE and FAN CONNECTION ASSYS ....................................................................................... 77 4.11 DSP ASSY ............................................................................................................................................. 78 4.12 DISPLAY, VOLUME, MULTI JOG and HEADPHONE ASSYS ............................................................... 80 4.13 REGULATOR and COMPONENT ASSYS............................................................................................. 84 4.14 POWER AMP L and POWER AMP C ASSYS....................................................................................... 88 4.15 POWER AMP R ASSY........................................................................................................................... 92 4.16 SP/PS ASSY.......................................................................................................................................... 96 4.17 DIODE, TRANS 2-1 and VH TR ASSYS................................................................................................ 98 4.18 TRANS 2-1, TRANS 1 and PRIMARY ASSYS..................................................................................... 100 5. PCB PARTS LIST ......................................................................................................................................... 102 6. ADJUSTMENT ............................................................................................................................................. 115 7. GENERAL INFORMATION........................................................................................................................... 116 7.1 DIAGNOSIS ........................................................................................................................................... 116 7.1.1 PROTECTION CIRCUIT CONTROL SPECIFICATION ...................................................................... 116 7.1.2 DIAGNOSTICS OF AMPLIFIER SECTION ........................................................................................ 118 7.1.3 TROUBLE SHOOTING ....................................................................................................................... 119 7.1.4 DISASSEMBLY ................................................................................................................................... 124 7.2 PARTS.................................................................................................................................................... 127 7.2.1 IC ........................................................................................................................................................ 127 7.2.2 DISPLAY ............................................................................................................................................. 141 7.3 CLEANING............................................................................................................................................. 143 8. PANEL FACILITIES ...................................................................................................................................... 145 www. xiaoyu163. com QQ 376315150 9 9 2 8 9 4 2 9 8 TEL 13942296513 9 9 2 8 9 4 2 9 8 0 5 1 5 1 3 6 7 3 Q Q TEL 13942296513 QQ 376315150 892498299 TEL 13942296513 QQ 376315150 892498299 http://www.xiaoyu163.com VSX-45TX 5 5 6 7 8 5 6 7 8 C D F A B E 1. SPECIFICATIONS Amplifier Section Continuous average power output of 100 watts∗ per channel, min., at 8 ohms, from 20 Hz to 20,000 Hz with no more than 0.09 %∗∗ total harmonic distortion (front). Continuous Power Output Front...........100 W +100 W (20 Hz − 20 kHz, 0.09 %, 8 Ω) Center.........100 W +100 W (20 Hz − 20 kHz, 0.09 %, 8 Ω) Surround.....100 W +100 W (20 Hz − 20 kHz, 0.09 %, 8 Ω) Surround Back ...........100 W +100 W (20 Hz − 20 kHz, 0.09 %, 8 Ω) Input (Sensitivity/Impedance) PHONO MM (VSX-45TX).........................4.7 mV/47 kΩ VCR 1/DVR, VCR 2, DVD/LD, TV/SAT, VIDEO, CD, CD-R/TAPE 1, MD/TAPE 2.....................335 mV/47 kΩ Frequency Response PHONO MM (VSX-45TX).......20 Hz to 20,000 Hz ± 0.3 dB VCR 1/DVR, VCR 2, DVD/LD, TV/SAT, VIDEO, CD, CD-R/TAPE 1, MD/TAPE 2.........5 Hz to 100,000 Hz dB Output (Level/Impedance) VCR 1/DVR REC, VCR 2 REC, CD-R/TAPE 1, MD/TAPE 2 REC........................................335 mV/2.2 kΩ Tone Control BASS......................................................... ± 6 dB (100 Hz) TREBLE..................................................... ± 6 dB (10 kHz) LOUDNESS................................+4/+2 dB (100Hz/10 kHz) (at volume position -40dB) Signal-to-Noise Ratio (IHF, short circuited, A network) VCR 1/DVR, VCR 2, DVD/LD, TV/SAT, VIDEO, CD, CD-R/TAPE 1, MD/TAPE 2, MULTI CH IN..............101 dB Signal-to-Noise Ratio [EIA, at 1 W (1 kHz)] VCR 1/DVR, VCR 2, DVD/LD, TV/SAT, VIDEO, CD, CD-R/TAPE 1, MD/TAPE 2........................................83 dB ∗ Measured pursuant to the Federal Trade Commission's Trade Regulation rule on Power Output Claims for Amplifiers. ∗∗ Measured by Audio Spectrum Analyzer. VIDEO Section (S jack) Input (Sensitivity/Impedance) VCR 1/DVR, VCR 2, VIDEO, DVD/LD, TV/SAT Luminance signal (Y)..................................1 Vp-p/75 Ω Chrominance signal (C).......................0.286 Vp-p/75 Ω Output (Level/Impedance) VCR 1/DVR, VCR 2, MONITOR OUT Luminance signal (Y)..................................1 Vp-p/75 Ω Chrominance signal (C).......................0.286 Vp-p/75 Ω Frequency Response VCR 1/DVR, VCR 2, VIDEO, DVD/LD, TV/SAT Luminance signal (Y)....................5 Hz to 10 MHz dB Signal-to-Noise Ratio Luminance signal (Y)............................................65 dB Component Video Section Input (Sensitivity) Y.......................................................................1 Vp-p/75 Ω PB/PR..................................................................0.7 V/75 Ω Output (Level/Impedance) Y.......................................................................1 Vp-p/75 Ω PB/PR..................................................................0.7 V/75 Ω Frequency Response Y.........................................................5 Hz to 40 MHz dB PB/PR..................................................5 Hz to 40 MHz dB VIDEO Section (Composite) Input (Sensitivity/Impedance) VCR 1/DVR, VCR 2, VIDEO, DVD/LD, TV/SAT.............................................................1 Vp-p/75 Ω Output (Level/Impedance) VCR 1/DVR, VCR 2, MONITOR OUT, MONITOR OUT2..............................................1 Vp-p/75 Ω Frequency Response VCR 1/DVR, VCR 2, TV/SAT, DVD/LD VIDEO→MONITOR OUT,..................5 Hz to 10 MHz dB Signal-to-Noise Ratio..................................................65 dB FM Tuner Section Frequency Range................................87.5 MHz to 108 MHz Usable Sensitivity............Mono: 13.2 dBf, IHF (1.3 µV/75 Ω) 50 dB Quieting Sensitivity..............................Mono: 20.2 dBf Stereo: 38.6 dBf Signal-to-Noise Ratio.......................Mono: 73 dB (at 85 dBf) Stereo: 70 dB (at 85 dBf) Distortion..............................................Stereo: 0.5 % (1 kHz) Alternate Channel Selectivity.......................60 dB (400 kHz) Stereo Separation............................................40 dB (1 kHz) Frequency Response......................30 Hz to 15 kHz (± 1) dB Antenna Input..............................................75 Ω unbalanced AM Tuner Section Frequency Range................................530 kHz to 1,700 kHz Sensitivity (IHF, Loop antenna)..............................350 µV/m Selectivity......................................................................25 dB Signal-to-Noise Ratio....................................................50 dB Antenna............................................................Loop antenna Miscellaneous Power Requirements...................................AC 120 V, 60 Hz Power Consumption....................................................600 W Power Consumption in Standby mode (VSX-45TX).....0.8 W Power Consumption in Standby mode (VSX-43TX).....0.6 W AC Outlet SWITCHED.............................100 W (0.8 A) MAX Dimensions.........................420 (W) × 188 (H) × 464 (D) mm (16-9/16 (W) × 7-7/16 (H) × 18-5/16 (D) in.) Weight (without package) (VSX-45TX)...18.8 kg (41 lb 8 oz) Weight (without package) (VSX-43TX)...17.3 kg (38 lb 3 oz) Furnished Parts FM wire Antenna..................................................................1 AM loop Antenna..................................................................1 "AA" IEC LR6 batteries.........................................................4 Remote Control Unit ............................................................1 Microphone for Auto Surround Sound Setup.......................1 Microphone Stand for Auto Surround Sound Setup.............1 Operating Instructions..........................................................1 +0 −3 +0 −3 +0 −3 +0 −3 +0 −3 Lucasfilm and THX are trademarks or registered trademarks of Lucasfilm, Ltd. & TM. Surround EX is a jointly developed technology of THX and Dolby Laboratories, and is a trademark of Dolby Laboratories. All rights reserved. Used under authorization. Manufactured under license from Dolby Laboratories. “Dolby”, “Pro Logic”, “Surround EX” and double-D symbol are trademarks of Dolby Laboratories. "DTS", "DTS-ES Extended Surround" and "Neo:6" are trademarks of Digital Theater Systems, Inc. www. xiaoyu163. com QQ 376315150 9 9 2 8 9 4 2 9 8 TEL 13942296513 9 9 2 8 9 4 2 9 8 0 5 1 5 1 3 6 7 3 Q Q TEL 13942296513 QQ 376315150 892498299 TEL 13942296513 QQ 376315150 892498299 http://www.xiaoyu163.com VSX-45TX 6 1 2 3 4 1 2 3 4 C D F A B E 2. EXPLODED VIEWS AND PARTS LIST 2.1 PACKING Parts marked by "NSP" are generally unavailable because they are not in our Master Spare Parts List. The mark found on some component parts indicates the importance of the safety factor of the part. Therefore, when replacing, be sure to use parts of identical designation. Screws adjacent to mark on product are used for disassembly. For the applying amount of lubricants or glue, follow the instructions in this manual. (In the case of no amount instructions, apply as you think it appropriate.) NOTES: 8 6 7 5 16 VSX-45TX Only VSX-45TX Only 3 1 2 4 12 11 14 15 13 10 9 Accessories AM Loop Antenna (ATB7009) Remote Control Unit (VSX-45TX : AXD7325) Remote Control Unit (VSX-43TX : AXD7328) Microphone for Auto Surround Sound Setup (APM7004) Microphone Stand for Auto Surround Sound Setup (AEB7269) FM Wire Antenna (ADH7004) Dry Cell Battery (LR6, AA) VSX-45TX Only VSX-45TX Only Operating Instructions (VSX-45TX : ARB7257) (VSX-43TX : ARB7261) AUDIO/VIDEO MULTI-CHANNEL RECEIVER VSX-45TX Operating Instructions OFF S0URCE Î TV MULTI CONTROL SYSTEM RECEIVER DVD/LD TV/SAT TV CONT VCR1/ DVR VCR2 VIDEO CD MULTI OPERATION DIMMER MD/ TAPE2 CD-R/ TAPE1 TUNER RECEIVER 1 2 LOUDNESS TONE 3 4 DNR 5 SIGNAL SEL VIDEO SEL HI-BIT 6 DIRECT ACCESS SEARCH MODE – + +10 DISC ENTER 7 EFFECT/CH SEL 8 9 BASS/TREBLE 0 SYSTEM SETUP TUNER EDIT TRACK MENU GUIDE TOP MENU REMOTE SETUP MPX AUDIO EXIT RETURN ENTER ¶ TUNING – STATION MODE SURROUND – CHANNEL– 1 4 DTV ON/OFF DISP MODE TUNING + + CHANNEL+ ¡ STATION ¢ 8 3 7 SUB TITLE BAND DTV MENU CLASS TV INPUT TV CONTROL TV CH TV VOL VOLUME INPUT MIDNIGHT MULTI CH INPUT STEREO/ DIRECT MOVIE MUSIC ENTER MUTE SB CH MODE ACOUSTIC EQ SETUP SOURCE MULTI CONTROL RECEIVER MOVIE MUSIC ENTER MULTI OPERATION SURROUND MODE STEREO/ DIRECT SYSTEM OFF ACOUSTIC EQ SB CH MODE INPUT MIDNIGHT CHANNEL− +− CHANNEL+ DTV ON/OFF BAND DIMMER TONE LOUDNESS EFFECT/CH SEL SIGNAL SEL BASS/TREBLE DISC DNR VIDEO SEL SUB TITLE REMOTE SETUP HI-BIT D.ACCESS MPX TV CONTROL CLASS MUTE MENU TOP MENU TUNER EDIT GUIDE SYSTEM SETUP AUDIO RETURN CHANNEL VOLUME INPUT SELECT +10 MULTI CH INPUT RECEIVER ST TUNE MASTER VOLUME ST TUNE DVD/LD ENTER ENTER VCR 2 TV/SAT CD VCR/DVR TV CONT TUNER RECEIVER www. xiaoyu163. com QQ 376315150 9 9 2 8 9 4 2 9 8 TEL 13942296513 9 9 2 8 9 4 2 9 8 0 5 1 5 1 3 6 7 3 Q Q TEL 13942296513 QQ 376315150 892498299 TEL 13942296513 QQ 376315150 892498299 http://www.xiaoyu163.com VSX-45TX 7 5 6 7 8 5 6 7 8 C D F A B E PACKING parts List (2) CONTRAST TABLE VSX-45TX/KUXJI/CA and VSX-43TX/KUXJI/CA are constructed the same except for the following: Mark No. Description Part No. 1 MIC Assy See Contrast table (2) 2 MIC Stand 45 See Contrast table (2) 3 FM Wire Antenna ADH7004 4 AM Loop Antenna ATB7009 5 Caution Sheet SP,E ARM7056 NSP 6 Warranty Card EL ARY7007 7 Operating Instructions (English) See Contrast table (2) NSP 8 Polyetylene Bag Z21-038 (0.03*230*340) 9 Remote Control Unit See Contrast table (2) 10 Battery Cover See Contrast table (2) NSP 11 Alkaline Dry Cell Battery See Contrast table (2) (LR6, AA) NSP 12 Alkaline Dry Cell Battery VEM1021 (LR6, AA) 13 Front Pad 45 AHA7374 14 Rear Pad 45 AHA7375 15 Packing Sheet RHC1023 16 Packing Case See Contrast table (2) Mark No. Description Part No. Mark NO Symbol and Description VSX-45TX/KUXJI/ CA VSX-43TX/KUXJI/ CA 1 MIC Assy APM7004 Not used 2 MIC Stand 45 AEB7269 Not used 7 Operating Instructions (English) ARB7257 ARB7261 9 Remote Control Unit 45/KU AXD7325 Not used 9 Remote Control Unit 43/KU Not used AXD7328 10 Battery Cover AZN7896 AZN7424 NSP 11 Alkaline Dry Cell Battery (LR6, AA) VEM1021 Not used 16 Packing Case 45KU AHD8060 Not used 16 Packing Case 43KU Not used AHD8061 www. xiaoyu163. com QQ 376315150 9 9 2 8 9 4 2 9 8 TEL 13942296513 9 9 2 8 9 4 2 9 8 0 5 1 5 1 3 6 7 3 Q Q TEL 13942296513 QQ 376315150 892498299 TEL 13942296513 QQ 376315150 892498299 http://www.xiaoyu163.com VSX-45TX 8 1 2 3 4 1 2 3 4 C D F A B E 2.2 EXTERIOR SECTION L M M L E N O P Q F Q P R R D N O K H J I K A J G C H E A B C D G B F I Refer to "2.5 FRONT PANEL SECTION." Refer to "2.4 HEAT SINK SECTION." Refer to "2.3 REAR PANEL SECTION." VSX-45TX ONLY VSX-45TX ONLY VSX-43TX ONLY 33 7 6 1 23 8 56 32 56 31 30 52 5 4 3 2 9 29 28 27 24 52 26 25 52 52 52 52 52 52 52 52 36 52 52 52 54 50 10 38 34 34 26 38 38 38 38 39 11 26 35 37 52 52 53 52 52 52 52 21 19 16 18 17 15 15 14 16 52 51 51 51 52 51 52 51 51 52 20 22 52 52 52 52 52 38 52 53 12 55 55 40 54 54 52 52 52 52 52 52 52 52 52 52 52 52 52 52 52 45 52 52 52 52 52 48 48 49 47 29 44 43 46 41 29 42 AE AF AC AB AD AA AG 58 R M Q P N 13 W 23 59 57 57 CONTACT SIDE NON-CONTACT SIDE 52 52 52 www. xiaoyu163. com QQ 376315150 9 9 2 8 9 4 2 9 8 TEL 13942296513 9 9 2 8 9 4 2 9 8 0 5 1 5 1 3 6 7 3 Q Q TEL 13942296513 QQ 376315150 892498299 TEL 13942296513 QQ 376315150 892498299 http://www.xiaoyu163.com VSX-45TX 9 5 6 7 8 5 6 7 8 C D F A B E EXTERIOR SECTION parts List (2) CONTRAST TABLE VSX-45TX/KUXJI/CA and VSX-43TX/KUXJI/CA are constructed the same except for the following: Mark No. Description Part No. 1 PRIMARY Assy AWX7968 2 SP/PS Assy See Contrast table (2) 3 DIODE Assy See Contrast table (2) 4 FAN CONNECTION Assy AWX8005 5 FAN DRIVE Assy AWX7976 6 TRANS 2-1 Assy AWX7979 7 TRANS 2-2 Assy AWX7970 8 TRANS 1 Assy AWX7969 9 VH TR Assy AWX8018 10 DSP ASSY AWX8016 11 MIC AMP Assy See Contrast table (2) 12 DSP CONNECTION Assy AWX8024 13 REGULATOR Assy AWX7967 14 Bonnet Case 45B AZN7897 15 Spacer 45A AEB7263 16 Spacer 45B AEB7264 17 Label (DD/DTS/THX) ARW7177 18 Label (FCC/DOC) ARW7191 19 Barrier 45 AEC7444 20 Left Beam 45 ANG7401 > 21 FU1 Fuse (10A) VEK1029 22 Primary Angle 35 ANG7301 NSP 23 Binder ZCA-BK1 NSP 24 Mini Clamp VEC1597 25 Fan Box 45 ANG7413 26 Locking Card Spacer PNW2917 27 Trans Shield 45 ANG7400 28 Styling Sheet B AEC7437 29 Push Rivet AEC7370 30 Trans Frame 45 ANG7399 > 31 T1 Power Transformer ATS7328 > 32 FU4,FU5 Fuse (3A) REK1113 NSP 33 Trans Label 45 AAX7957 34 PCB Mold AMR2534 35 Bridge Frame 45F ANG7409 36 Bridge Frame 45R ANG7410 37 J7 21P FFC/60V ADD7355 38 Card Spacer DNK2769 NSP 39 Wire Clip (A) See Contrast table (2) 40 DSP Shield 45B ANG7403 NSP 41 Under Base See Contrast table (2) 42 Screw Cover 45A See Contrast table (2) NSP 43 Wire Saddle DEC1450 44 Styling Sheet AEC7413 45 Stabilizer 45 See Contrast table (2) NSP 46 Panel Stay 45 AND7047 NSP 47 Energy Star Label AAX7876 48 Insulator PNW2766 49 Bottom Plate 45 See Contrast table (2) 50 DSP Shield 45A ANG7402 51 Screw BBZ40P080FZK 52 Screw BBZ30P080FZK 53 Screw BBZ30P100FCC 54 Screw IBZ30P150FCC 55 Screw BBT30P080FCC 56 Screw ABA7066 57 Screw ABA7009 58 UL Tube ADN7007 59 Screw Cover See "2.5 FRONT PANEL SECTION" No. 19-3 Mark No. Description Part No. Mark NO Symbol and Description VSX-45TX/KUXJI/ CA VSX-43TX/KUXJI/ CA 2 SP/PS Assy AWX7975 AWX8037 3 DIODE Assy AWX8017 AWX8038 11 MIC AMP Assy AWX8004 Not used NSP 39 Wire Clip (A) VEC1355 Not used NSP 41 Under Base 45 ANA7138 Not used NSP 41 Under Base 43 Not used ANA7144 42 Screw Cover 45A Not used AEC7414 45 Stabilizer 45 ANG7408 Not used 49 Bottom Plate 45 ANF7031 Not used www. xiaoyu163. com QQ 376315150 9 9 2 8 9 4 2 9 8 TEL 13942296513 9 9 2 8 9 4 2 9 8 0 5 1 5 1 3 6 7 3 Q Q TEL 13942296513 QQ 376315150 892498299 TEL 13942296513 QQ 376315150 892498299 http://www.xiaoyu163.com VSX-45TX 10 1 2 3 4 1 2 3 4 C D F A B E 2.3 REAR PANEL SECTION For Exterior Sction For Exterior Sction For Exterior Sction For Exterior Sction For Exterior Sction For Heat Sink Sction For Front Sction VSX-45TX ONLY 11 21 21 21 22 21 21(VSX-45TX ONLY) 23(VSX-45TX ONLY) 16 (VSX-45TX ONLY) 25 (VSX-45TX ONLY) 21 24 21 21 14 15 21 21 19 17 1 18 2 3 6 4 5 10 20 9 7 8 12 13 J I B H C A E G K F CONTACT SIDE NON-CONTACT SIDE www. xiaoyu163. com QQ 376315150 9 9 2 8 9 4 2 9 8 TEL 13942296513 9 9 2 8 9 4 2 9 8 0 5 1 5 1 3 6 7 3 Q Q TEL 13942296513 QQ 376315150 892498299 TEL 13942296513 QQ 376315150 892498299 http://www.xiaoyu163.com VSX-45TX 11 5 6 7 8 5 6 7 8 C D F A B E REAR PANEL SECTION parts List (2) CONTRAST TABLE VSX-45TX/KUXJI/CA and VSX-43TX/KUXJI/CA are constructed the same except for the following: Mark No. Description Part No. 1 RS232C Assy See Contrast table (2) 2 COMPONENT Assy See Contrast table (2) 3 7.1CH I/O Assy AWX7973 4 VIDEO Assy See Contrast table (2) 5 V-AUDIO IN Assy See Contrast table (2) 6 INPUT CONNECT Assy See Contrast table (2) 7 MAIN CONTROL Assy See Contrast table (2) 8 FM/AM TUNER Module AXQ7231 9 OPTICAL IN Assy AWX7978 10 COAXIAL IN Assy See Contrast table (2) 11 Rear Panel See Contrast table (2) 12 Cord Stopper CM-22C > 13 AC Power Cord VDG1075 14 Speaker Sheet AAK8016 15 Cushion Circle 16B AED7052 16 Screw with Terminal See Contrast table (2) 17 J8 13P FFC/60V ADD7356 18 J1902 Connector Assy (8P) See Contrast table (2) 19 J5 9P FFC/60V ADD7353 20 J6 20P FFC/60V ADD7354 21 Screw BBZ30P080FZK 22 Screw BBZ30P100FCC 23 Screw See Contrast table (2) 24 Screw VPZ30P080FZK 25 Screw See Contrast table (2) Mark No. Description Part No. Mark NO Symbol and Description VSX-45TX/KUXJI/ CA VSX-43TX/KUXJI/ CA 1 RS232C Assy AWX7966 Not used 2 COMPONENT Assy AWX7963 AWX8021 4 VIDEO Assy AWX7962 AWX8002 5 V-AUDIO IN Assy AWX7964 AWX7991 6 INPUT CONNECT Assy AWX7974 AWX8041 7 MAIN CONTROL Assy AWX7961 AWX8000 10 COAXIAL IN Assy AWX7965 AWX8013 11 Rear Panel 45KU ANC8063 Not used 11 Rear Panel 43KU Not used ANC8086 16 Screw with Terminal AKE-031 Not used 18 J1902 Connector Assy (8P) ADE7085 Not used 23 Screw ABA7078 Not used 25 Screw PMZ30P060FCC Not used www. xiaoyu163. com QQ 376315150 9 9 2 8 9 4 2 9 8 TEL 13942296513 9 9 2 8 9 4 2 9 8 0 5 1 5 1 3 6 7 3 Q Q TEL 13942296513 QQ 376315150 892498299 TEL 13942296513 QQ 376315150 892498299 http://www.xiaoyu163.com VSX-45TX 12 1 2 3 4 1 2 3 4 C D F A B E 2.4 HEAT SINK SECTION A A B B C C For Rear Panel Sction 4 O 2 9 13 14 5 14 15 15 15 15 15 15 15 15 15 15 15 15 15 14 15 18 5 14 15 15 15 8 17 17 14 12 16 11 16 6 6 6 6 6 6 7 7 9 10 Z 1 X 3 Y CONTACT SIDE NON-CONTACT SIDE www. xiaoyu163. com QQ 376315150 9 9 2 8 9 4 2 9 8 TEL 13942296513 9 9 2 8 9 4 2 9 8 0 5 1 5 1 3 6 7 3 Q Q TEL 13942296513 QQ 376315150 892498299 TEL 13942296513 QQ 376315150 892498299 http://www.xiaoyu163.com VSX-45TX 13 5 6 7 8 5 6 7 8 C D F A B E HEAT SINK SECTION parts List Mark No. Description Part No. 1 POWER AMP-L Assy AWX7984 2 POWER AMP-C Assy AWX7986 3 POWER AMP-R Assy AWX7985 4 POWER AMP IN Assy AWX7982 NSP 5 Heat Sink 45 ANH7152 6 PCB Angle 45 ANG7406 7 Mica Sheet 45 AEE7047 NSP 8 Speed Clamp AEC7445 9 H.S Angle 45 ANG7404 10 Fan Holder 80 ANG7407 > 11 Fan Motor AXM7023 12 J14 24P FFC/60V ADD7357 NSP 13 Wire Saddle DEC1450 14 Screw BBZ30P100FCC 15 Screw BBZ30P080FZK 16 Screw BBZ30P300FMC 17 Screw ABA7085 > 18 TH1 Thermistor AEX7004 www. xiaoyu163. com QQ 376315150 9 9 2 8 9 4 2 9 8 TEL 13942296513 9 9 2 8 9 4 2 9 8 0 5 1 5 1 3 6 7 3 Q Q TEL 13942296513 QQ 376315150 892498299 TEL 13942296513 QQ 376315150 892498299 http://www.xiaoyu163.com VSX-45TX 14 1 2 3 4 1 2 3 4 C D F A B E 2.5 FRONT PANEL SECTION A A B C C B C C 1 4 6 7 2 10 9 14 31 38 37 37 37 37 36 37 37 28 29 37 19-2 19-1 37 37 39 20 20 21 21 22 22 25 26 37 23 24 32 33 34 35 30 39 16 16 18 (VSX-45TX ONLY) 38 8 15 13 11 12 37 U L V D 5 T 3 S VSX-45TX ONLY VSX-45TX ONLY VSX-45TX ONLY 17 CUT (VSX-43TX ONLY) CONTACT SIDE NON-CONTACT SIDE www. xiaoyu163. com QQ 376315150 9 9 2 8 9 4 2 9 8 TEL 13942296513 9 9 2 8 9 4 2 9 8 0 5 1 5 1 3 6 7 3 Q Q TEL 13942296513 QQ 376315150 892498299 TEL 13942296513 QQ 376315150 892498299 http://www.xiaoyu163.com VSX-45TX 15 5 6 7 8 5 6 7 8 C D F A B E FRONT PANEL SECTION parts List (2) CONTRAST TABLE VSX-45TX/KUXJI/CA and VSX-43TX/KUXJI/CA are constructed the same except for the following: Mark No. Description Part No. 1 MULTI JOG Assy AWX7972 2 MIC & F.OPT IN Assy See Contrast table (2) 3 DISPLAY Assy See Contrast table (2) 4 HEADPHONE Assy AWX7980 5 VOLUME Assy AWX7971 6 FRONT IN Assy AWX7977 7 STYLING Assy • • • • • 8 Door 45 ANB7277 9 Spacer 45A AEB7263 10 Door Stay 45B AAH7089 11 Door Shaft 35 AMR7295 12 Damper Assy (200) AXA7088 13 Door Hinge L 45B AMR7386 14 Door Hinge R 45B AMR7387 NSP 15 Earth Lead Wire ADH7022 16 Earth Plate B ANG7412 17 Magnet 35 AMF7007 18 FL Sheet 45R See Contrast table (2) 19-1 Panel Base 45B AMB7803 19-2 Magnet Holder 19-3 Screw Cover 20 Cushion Circle 6B AED7044 21 Nut NK90FUC 22 Rotary Knob L BK AAA7018 23 D.Sheet See Contrast table (2) 24 Window See Contrast table (2) 25 Pionner Badge B PAN1376 26 F.Panel See Contrast table (2) 27 • • • • • 28 J4 7P FFC/60V ADD7352 29 J1 32P FFC/60V ADD7349 30 Earth Plate A ANG7411 NSP 31 Speed Clamp AEC7445 32 J1901 Connector Assy (3P) See Contrast table (2) 33 J15 3P FFC/60V ADD7371 34 J2 11P FFC/60V ADD7350 35 J3 4P FFC/60V See Contrast table (2) NSP 36 Wire Clip (A) See Contrast table (2) 37 Screw BPZ30P100FMC 38 Screw BBZ30P080FZK 39 Screw ABA7009 Mark No. Description Part No. Mark NO Symbol and Description VSX-45TX/KUXJI/ CA VSX-43TX/KUXJI/ CA 2 MIC & F.OPT IN Assy AWX7981 Not used 3 DISPLAY Assy AWX7983 AWX8011 18 FL Sheet 45R AAK7957 Not used 23 D.Sheet 45B AAK7955 Not used 23 D.Sheet 43B Not used AAK8019 24 Window 45 AAK7954 Not used 24 Window 43R Not used AAK8072 26 F.Panel 45BKU ANB7276 Not used 26 F.Panel 43BKU Not used ANB7278 32 J1901 Connector Assy (3P) ADE7084 Not used 35 J3 4P FFC/60V ADD7351 Not used NSP 36 Wire Clip (A) VEC1355 Not used www. xiaoyu163. com QQ 376315150 9 9 2 8 9 4 2 9 8 TEL 13942296513 9 9 2 8 9 4 2 9 8 0 5 1 5 1 3 6 7 3 Q Q TEL 13942296513 QQ 376315150 892498299 TEL 13942296513 QQ 376315150 892498299 http://www.xiaoyu163.com VSX-45TX 16 1 2 3 4 1 2 3 4 C D F A B E 3. BLOCK DIAGRAM AND SCHEMATIC DIAGRAM 3.1 AUDIO BLOCK DIAGRAM 14 CN101 (1/2)(20P) 6 16 12 10 FL D FRONT IN ASSY L MIC & F.OPT IN ASSY IC1881 TC74HCU04F IC1681 PCM2902EG IC201 AK4114VQ DIR & DIT L R MULTI CH IN FRONT L R SURROUND CN1301 CENTER SUB WOOFER L R SURROUND BACK CN1302 IC1301 (1/2) UPC4570G2 3 1 2 IC1302 (1/2) UPC4570G2 3 1 2 IC1303 (1/2) UPC4570G2 IC1303 (2/2) UPC4570G2 3 1 2 5 7 6 IC1304 (1/2) UPC4570G2 3 1 2 IC202 (1/2) NJM4558MD 3 1 2 12 4 5 3 10 2 10 9 11 4 B 1/2 7.1 CH I/O ASSY IC102 (2/2) UPC4570G2 5 7 6 SL C SW SBL FL SL C SW SBL V1L L R VCR1 IN CN1205 (1/3) (VSX-45TX) CN1202 (1/2) (VSX-43TX) L R VCR2 IN L R L R DVD/LD IN TV/SAT IN C 1/2 V-AUDIO IN ASSY S 1/2DISPLAY ASSY E 1/2 OPTICAL IN ASSY G 1/2 COAXIAL IN ASSY CD-R PLAY TUNER TUNER CD-R CD FL C SW SL SL SW SBL C SL FL C SBL DVD/LD TV/SAT V1/IN CD-R REC MD REC CD-R REC MD REC V2L TVL DVDL 15 14 13 12 15 14 13 12 CN1405 (1/2)(17P) CN1204 (1/2)(17P) DIN1 2 CN1701 (1/2)(9P) DIN2 CN1201 (1/2) CN1203 (1/2) L R CD-R/ TAPE1 JA113 (1/2) L R MD/ TAPE2 JA112 (1/2) L R CD IN L R PHONO/ LINE JA111 FV-L A AM/FM TUNER MODULE W N REGULATOR ASSY DSP CONNECTION ASSY L R IN1 (TV/SAT) VIDEO INPUT AUDIO (FRONT) JA1501 JA1701 3 CN1501 (7P) 4 CN3004 (4P) 3 CN3005 (7P) R DSP ASSY IN2 IN 3 (CD-R/TAPE1) DIGITAL USB AUDIO IN 4 (CD) JA1801 JA1681 14 1 IC101 AK5380VT AD IC701 TC74VHC157FT Selector IC301 DSPC56367PV150 DSP1 Decoder 44 IC101 TC9274F-019 Selector IC201 TC9164AF Selector IC201 BA1451F AM/FM IF + MPX IC 1 41 8 9 10 11 14 42 43 44 2 3 4 6 5 4 3 2 5 6 7 8 ALOUT IC103 TC9163AF IC701 TC94A07F 4 IC104 TC9215AF 9 SL 11 3 5 6 7 5 4 IC703 TC94A07F 7 5 4 IC704 TC94A07F 7 5 4 IC702 TC94A07F 7 5 4 18 11 8 FL C SW SBL 2 19 10 7 12 10 9 17 1 20 11 CN1802 (1/2)(20P) IN6 OUT2 IN1 46 IN2 48 IN3 1 IN4 5 42 IN6 RX0 28 9 2 25 DAUX SDTO SDI1 15 TX0 16 TX1 1 2 6 IN1 16 FL SL SBL C FL SL SBL C IN3 IN4 OPT OPT OPT IC302 IS61LV6416-12T SRAM IC401 DSPC56367PV150 DSP2 PPP 11 9 10 6 7 5 4 138 48 11 10 6 4 5 7 13 4 25 24 2 2 10 4 DIN1 D+ D- 2 CN1801 (1/2)(9P) DIN2 4 12 10 VSX-45TX ONLY VSX-45TX ONLY IN2 (CD-R/TAPE1) JA1702 1 CN1601 (4P) 8 CN2412 (9P) 2 CN2408 (17P) DIGITAL IN (FRONT) JA1601 MD PLAY CD LINE/PHONE V1/IN V2/IN TV/SAT DVD/LD FVIDEO 7 7 CN1403 (13P) 6 7 5 3 9 6 7 5 3 9 CN1406 (9P) CN102 (13P) V1L FV-L FOPT OPT V1/OUT 13 12 11 10 14 15 3 4 5 6 6 2 1 V2L V2/OUT V1/OUT V2/OUT TVL DVDL TXL TXL CN1401 (15P) CN101 (15P) CN501 (32P) CN3006 (32P) 10 12 8 20 16 4 CN301 (21P) 10 12 8 20 16 4 CN601 (21P) 7 1 MR L MR L MR L CN1402 (7P) CN201 (7P) FM AM ANTENNA BN201 V1/OUT V2/OUT OUT FL SL C SW SBL CN1307 (9P) ALOUT SBL SW 18 20 21 IC303 IS63LV61024-12T SRAM IC451 IS61LV6416-12T SRAM IC471 IS63LV61024-12T PPROM CN201 (13P) FOPT 17 6 17 CN601 (13P) 8 CN3 (9P) 16 CN1653 (17P) 18 CN1651 (28P) 18 CN102 (28P) www. xiaoyu163. com QQ 376315150 9 9 2 8 9 4 2 9 8 TEL 13942296513 9 9 2 8 9 4 2 9 8 0 5 1 5 1 3 6 7 3 Q Q TEL 13942296513 QQ 376315150 892498299 TEL 13942296513 QQ 376315150 892498299 http://www.xiaoyu163.com VSX-45TX 17 5 6 7 8 5 6 7 8 C D F A B E PRE OUT SUB WOOFER CENTER L R FRONT L R SURROUND L R SURROUND BACK CN1303 CN1304 INPUT CONNECT ASSY B 2/2 7.1 CH I/O ASSY 5 6 7 G 2/2 COAXIAL IN ASSY FL CD-R REC MD REC 17 16 3 F MAIN CONTROL ASSY K O POWER AMP IN ASSY X V POWER AMP-L ASSY HEADPHONE ASSY SP/PS ASSY Z POWER AMP-C ASSY Y POWER AMP-R ASSY IC711 (2/2) UPC4570G2 2 3 2 1 1 IC601 (1/2) NJM4565MD LPF Amp. IC681 (1/2) NJM4565MD MIX Amp. IC501 AK4383VT 3 15 16 5 6 7 IC713 (2/2) UPC4570G2 5 6 7 IC713 (2/2) UPC4570G2 5 6 7 IC712 UPC4570G2 2 3 1 IC641 (1/2) NJM4565MD LPF Amp. IC541 AK4383VT 3 15 16 2 3 1 IC661 (1/2) NJM4565MD LPF Amp. IC561 AK4383VT 3 11 12 2 3 1 IC621 (1/2) NJM4565MD LPF Amp. IC621 (2/2) NJM4565MD LPF Amp. IC521 AK4383VT 3 15 16 6 5 7 13 14 FL FL SL SL SBL C SW SBL C IC401 M62429FP 1 2 E 2/2 OPTICAL IN ASSY DOUT1 6 DOUT2 OUT1 JA1703 8 OUT2 JA1704 CN1701 (2/2)(9P) 6 8 CN1801 (2/2)(9P) 4 2 CN1802 (2/2)(20P) 4 2 CN101 (2/2)(20P) V1/OUT V2/OUT MR L 9 3 7 13 3 2 1 SL SBL C C C C CN801 (24P) 16 22 18 12 CN4001 (24P) 1 10 3 5 CN4003 (17P) 17 15 13 1 CN4401 (17P) CN4601 (2P) 1 1 CN4602 (2P) 2 1 CN4603 (2P) CN4454 (10P) Y2 10 CN4453 (10P) 12 8 1 6 4 2 8 CN103 (9P) 9 4 6 8 2 CN1404 (9P) FL SL SBL C SW 1 8 6 4 2 CN1408 (9P) 9 2 4 6 8 CN1308 (9P) FL SL SBL C SW VSX-45TX ONLY VSX-45TX ONLY L R VCR1 OUT L R VCR2 OUT C 2/2 V-AUDIO IN ASSY 17 16 3 CN1204 (2/2)(17P) CN1405 (2/2)(17P) V1OL MRL V2OL CN1205 (2/3) (VSX-45TX) CN1202 (2/2) (VSX-43TX) L R MD/ TAPE2 OUT JA112 (2/2) L R CD-R/ TAPE1 OUT JA113 (2/2) CN1201 (2/2) L R L R MULTI-ROOM & SOURCE OUT FRONT PHONES SPEAKERS L R SURROUND CN1205 (3/3) CN4611 OUT1 OUT2 FL SL SBL FL HP L SL SBL 1 3 4 Y3 Y3 Y1 IC4101 PA9009A Power Amp. RY4601 1 3 4 IC4201 PA9009A Power Amp. 1 3 4 IC4301 PA9009A Power Amp. 1 3 4 IC4451 PA9009A Power Amp. CN4002 (19P) CN4402 (19P) AA PRIMARY ASSY AG RY4602 RY4603 RY4604 L R SURROUND BACK CENTER CN4612 CN4613 (5P) 1 7 CN2004 (5P) CN2002 (11P) 5 2 CN3001 (11P) CN3007 (3P) 2 CN1951 (3P) HP L HP L S 2/2 DISPLAY ASSY The details please refer to next page. 5 6 7 IC1541 UPC4570G2 www. xiaoyu163. com QQ 376315150 9 9 2 8 9 4 2 9 8 TEL 13942296513 9 9 2 8 9 4 2 9 8 0 5 1 5 1 3 6 7 3 Q Q TEL 13942296513 QQ 376315150 892498299 TEL 13942296513 QQ 376315150 892498299 http://www.xiaoyu163.com VSX-45TX 18 1 2 3 4 1 2 3 4 C D F A B E 3.2 DSP BLOCK DIAGRAM CN301 DSP ASSY R K CN651 N CN1802 G IC101 AK5380VT AD IC201 AK4114VQ DIR & DIT IC701 TC74VHC157FT SELECTOR IC302 IS61LV6416-12T SRAM IC705 TC7SH04FU INVERTER IC706 TC7SH04FU INVERTER IC305 TC7W125FU 3 STATE BUFFER IC301 DSPC56367PV150 DECODER DSP1 IC303 IS63LV1024-12T SRAM www. xiaoyu163. com QQ 376315150 9 9 2 8 9 4 2 9 8 TEL 13942296513 9 9 2 8 9 4 2 9 8 0 5 1 5 1 3 6 7 3 Q Q TEL 13942296513 QQ 376315150 892498299 TEL 13942296513 QQ 376315150 892498299 http://www.xiaoyu163.com VSX-45TX 19 5 6 7 8 5 6 7 8 C D F A B E CN301 K IC401 DSPC56367PV150 PPP DSP2 IC503 TC7SH04FU BUFFER IC501 AK4383VT IC521 AK4383VT IC541 AK4383VT IC561 AK4382AVT IC451 IS61LV6416-12T SRAM IC471 IS63LV1024-12T PPROM www. xiaoyu163. com QQ 376315150 9 9 2 8 9 4 2 9 8 TEL 13942296513 9 9 2 8 9 4 2 9 8 0 5 1 5 1 3 6 7 3 Q Q TEL 13942296513 QQ 376315150 892498299 TEL 13942296513 QQ 376315150 892498299 http://www.xiaoyu163.com VSX-45TX 20 1 2 3 4 1 2 3 4 C D F A B E 3.3 VIDEO AND POWER AMP BLOCK DIAGRAM Q901 OSDON OSDON OSD OSD OSDON OSDON OSDON FV FV-C FV-Y FV-Y FV-C FV V Y C V Y C V Y C OUT1 OUT2 OUT3 OUT1 OUT2 OUT3 OUT1 OUT2 OUT3 IN2 IN3 IN4 IN1 IN2 IN3 IN4 IN1 IN2 IN3 IN4 IN5 OSD OSD OSD Q931 VIDEO MULTI-ROOM & SOURCE MONITOR OUT VIDEO S VIDEO MONITOR OUT VSX-45TX ONLY VSX-45TX ONLY VSX-43TX ONLY VSX-43TX ONLY S VIDEO VCR1/ DVR Y PB PR (DVD/LD) IN H VIDEO ASSY D FRONT IN ASSY S DISPLAY ASSY I COMPONENT ASSY W REGULATOR ASSY K MAIN CONTROL ASSY IC901 NJM2296M Composite Selector IC902 NJM2279M Multi-Room Selector IC903 TC4W53FU OSD Selector IC933 BU4053BCF OSD Selector IC931 NJM2296M Y Selector IC101 TC74HC4053AF Selector IC1051 PDC084A OSD IC501 PD5770A8 µ-COM IC1002 (1/2) TK15450M Y Amp. 13 12 14 1 2 15 12 13 5 11 14 4 12 3 1 10 7 5 6 1 IN1 IN1 IN2 IN3 IC932 NJM2596M C Selector 14 16 19 22 1 10 8 5 13 9 7 3 5 1 15 11 13 9 7 3 5 1 15 11 VIDEO IN S VIDEO VCR2 VIDEO S VIDEO DVD/ LD VIDEO S VIDEO TV/ SAT JA901 (1/2) JA901 (2/2) JA905 JA904 VIDEO S VIDEO VCR2 OUT JA902 (2/2) VIDEO S VIDEO VCR1/DVR OUT JA902 (1/2) JA903 (1/2) R921 R915 FV FV-C FV-Y 6 5 7 2 3 1 14 12 13 CN1001 (9P) CN2404 (9P) CN2413 (19P) CN502 (19P) VIDEO S VIDEO VIDEO INPUT (FRONT) R955 Q932 R958 JA1001 Y PB PR JA1003 Y PB PR (TV/SAT) IN COMPONENT VIDEO MONITOR OUT (COMPONENT VIDEO) JA1002 3 5 4 13 3 1 2 IC1003 (1/2) TK15450M Cr Amp. 3 1 2 IC1003 (2/2) TK15450M Cb Amp. 5 7 6 FV FV-C FV-Y CN1501 (7P) CN3005 (7P) CN3006 (32P) 14 12 13 CN501 (32P) 9 10 4 3 11 CN2405 (15P) 6 4 5 CN3 (9P) 6 4 5 CN2412 (9P) JA1501 7 3 7 5 12 13 6 CN901 (15P) IN5 IN5 www. xiaoyu163. com QQ 376315150 9 9 2 8 9 4 2 9 8 TEL 13942296513 9 9 2 8 9 4 2 9 8 0 5 1 5 1 3 6 7 3 Q Q TEL 13942296513 QQ 376315150 892498299 TEL 13942296513 QQ 376315150 892498299 http://www.xiaoyu163.com VSX-45TX 21 5 6 7 8 5 6 7 8 C D F A B E www. xiaoyu163. com QQ 376315150 9 9 2 8 9 4 2 9 8 TEL 13942296513 9 9 2 8 9 4 2 9 8 0 5 1 5 1 3 6 7 3 Q Q TEL 13942296513 QQ 376315150 892498299 TEL 13942296513 QQ 376315150 892498299 http://www.xiaoyu163.com VSX-45TX 22 1 2 3 4 1 2 3 4 C D F A B E 3.4 OVERALL WIRING DIAGRAM VOLUME ASSY (AWX7971) T DISPLAY ASSY (VSX-45TX : AWX7983) (VSX-43TX : AWX8011) S MIC & F.OPT IN ASSY (AWX7981) VSX-45TX ONLY VSX-45TX ONLY L MIC AMP ASSY (AWX8004) M OPTICAL IN ASSY (AWX7978) E FM/AM TUNER MODULE (AXQ7231) A INPUT CONNECT ASSY (VSX-45TX : AWX7974) (VSX-43TX : AWX8041) F V-AUDIO IN ASSY (VSX-45TX : AWX7964) (VSX-43TX : AWX7991) C 7.1CH I/O ASSY (AWX7973) B COAXIAL IN ASSY (VSX-45TX : AWX7965) (VSX-43TX : AWX8013) G DSP CONNECTION ASSY (AWX8024) N FRONT IN ASSY (AWX7977) D HEADPHONE ASSY (AWX7980) V REGULATOR ASSY (AWX7967) W POWER AMP-R ASSY (AWX7985) Y R 1/2, R 2/2 DSP ASSY (AWX8016) R K 1/3- K 3/3 MAIN CONTROL ASSY (VSX-45TX : AWX7961) (VSX-43TX : AWX8000) K www. xiaoyu163. com QQ 376315150 9 9 2 8 9 4 2 9 8 TEL 13942296513 9 9 2 8 9 4 2 9 8 0 5 1 5 1 3 6 7 3 Q Q TEL 13942296513 QQ 376315150 892498299 TEL 13942296513 QQ 376315150 892498299 http://www.xiaoyu163.com VSX-45TX 23 5 6 7 8 5 6 7 8 C D F A B E VSX-45TX ONLY VIDEO ASSY (VSX-45TX : AWX7962) (VSX-43TX : AWX8002) H COMPONENT ASSY (VSX-45TX : AWX7963) (VSX-43TX : AWX8021) I RS232C ASSY (AWX7966) J MULTI JOG ASSY (AWX7972) U POWER AMP IN ASSY (AWX7982) O FAN DRIVE ASSY (AWX7976) P TRANS 2-2 ASSY (AWX7970) T1 POWER TRANSFORMER (ATS7328) FU4, FU5 : REK1113 (3A/125V) FU1 : VEK1029 (10A/125V) POWER CORD : VDG1075 AC IN TRANS 1 ASSY (AWX7969) FAN CONNECTION ASSY (AWX8005) Q POWER AMP-C ASSY (AWX7986) Z POWER AMP-L ASSY (AWX7984) X Note : When ordering service parts, be sure to refer to "EXPLODED VIEWS and PARTS LIST" or "PCB PARTS LIST". AE AF TRANS 2-1 ASSY (AWX7979) AC VH TR ASSY (AWX8018) AD DIODE ASSY (VSX-45TX : AWX8017) (VSX-43TX : AWX8038) AB SP/PS ASSY (VSX-45TX : AWX7975) (VSX-43TX : AWX8037) AA PRIMARY ASSY (AWX7968) AG THERMISTOR AEX7004 FAN MOTOR (FRONT) AXM7023 www. xiaoyu163. com QQ 376315150 9 9 2 8 9 4 2 9 8 TEL 13942296513 9 9 2 8 9 4 2 9 8 0 5 1 5 1 3 6 7 3 Q Q TEL 13942296513 QQ 376315150 892498299 TEL 13942296513 QQ 376315150 892498299 http://www.xiaoyu163.com VSX-45TX 24 1 2 3 4 1 2 3 4 C D F A B E 3.5 FM/AM TUNER MODULE FM FRONT END MW RF TUNING BLOCK OSC : 980 - 2150kHz 10k step FM/AM TUNER MODULE (AXQ7231) A A (AM) (AM) (AM) (AM) (AM) (AM) (FM) (FM) (FM) (FM) (FM) (FM) (FM) (FM) (FM) (FM) www. xiaoyu163. com QQ 376315150 9 9 2 8 9 4 2 9 8 TEL 13942296513 9 9 2 8 9 4 2 9 8 0 5 1 5 1 3 6 7 3 Q Q TEL 13942296513 QQ 376315150 892498299 TEL 13942296513 QQ 376315150 892498299 http://www.xiaoyu163.com VSX-45TX 25 5 6 7 8 5 6 7 8 C D F A B E L201 ATE7003 PLL IC AM/FM IF + MPX IC ATF7026 A CN601 K 3/3 (AM) (AM) (FM) (AM) (AM) (AM) (AM) (AM) (AM) (FM) (AM) (FM) (TX) (TX) (TX) (TX) (FM) : The power supply is shown with the marked box. (TX) : AUDIO SIGNAL ROUTE (TUNER Lch) (AM) : AM SIGNAL ROUTE (FM) : FM SIGNAL ROUTE www. xiaoyu163. com QQ 376315150 9 9 2 8 9 4 2 9 8 TEL 13942296513 9 9 2 8 9 4 2 9 8 0 5 1 5 1 3 6 7 3 Q Q TEL 13942296513 QQ 376315150 892498299 TEL 13942296513 QQ 376315150 892498299 http://www.xiaoyu163.com VSX-45TX 26 1 2 3 4 1 2 3 4 C D F A B E 3.6 7.1CH I/O, V-AUDIO IN, FRONT IN and OPTICAL IN ASSYS B 7.1CH I/O ASSY (AWX7973) B CN1408 F CN1406 F CN1407 F L FRONT R L FRONT R L SURROUND MULTI CH IN PRE OUT R L SURROUND R L SURROUND BACK R L SURROUND BACK R CENTER CENTER SUB WOOFER SUB WOOFER : The power supply is shown with the marked box. BUFFER PREOUT MUTE (F) (F) (F) (S) (S) (SB) (SB) (SB) (C) (C) (C) (F) (F) (F) (F) (F) (F) (S) (S) (S) (S) (S) (S) (SB) (SB) (SB) (SB) (SB) (SB) (C) (C) (C) (C) www. xiaoyu163. com QQ 376315150 9 9 2 8 9 4 2 9 8 TEL 13942296513 9 9 2 8 9 4 2 9 8 0 5 1 5 1 3 6 7 3 Q Q TEL 13942296513 QQ 376315150 892498299 TEL 13942296513 QQ 376315150 892498299 http://www.xiaoyu163.com VSX-45TX 27 5 6 7 8 5 6 7 8 C D F A B E V-AUDIO IN ASSY (VSX-45TX : AWX7964) (VSX-43TX : AWX7991) C FRONT IN ASSY (AWX7977) D OPTICAL IN ASSY (AWX7978) E CN1405 F CN3005 S CN1801 G E D C VSX-45TX ONLY L AUDIO IN 1 (TV/SAT) OUT 1 OUT 2 IN 2 (CD-R/TAPE1) VIDEO INPUT (FRONT) VIDEO S VIDEO R L DVD/LD IN R L TV/SAT IN OUT VCR2 R L R IN L R OUT L R IN L R MULTI-ROOM & SOURCE OUT L R VCR1 PCM/ 2DIGITAL/ DTS/MPEG VSX-45TX : CN1205 (1/3-3/3) AKB7009 VSX-43TX : CN1202 (1/2-2/2) AKB7015 VSX-45TX : (3/3) VSX-43TX : (2/2) VSX-45TX : (2/3) VSX-43TX : (1/2) MR MUTE (MR) (MR) (MR) (MR) (MR) (MR) : AUDIO SIGNAL ROUTE (MULTI-ROOM Lch) : AUDIO SIGNAL ROUTE (DVD Lch) (DVD) : AUDIO SIGNAL ROUTE (Lch) (DVD) (DVD) (DVD) (DVD) (F) : AUDIO SIGNAL ROUTE (FRONT Lch) (S) : AUDIO SIGNAL ROUTE (SURROUND Lch) (SB) : AUDIO SIGNAL ROUTE (SURROUND BACK Lch) (C) : AUDIO SIGNAL ROUTE (CENTER ch) (D) : AUDIO SIGNAL ROUTE (DIGITAL) (D) (D) (D) (D) (D) (D) www. xiaoyu163. com QQ 376315150 9 9 2 8 9 4 2 9 8 TEL 13942296513 9 9 2 8 9 4 2 9 8 0 5 1 5 1 3 6 7 3 Q Q TEL 13942296513 QQ 376315150 892498299 TEL 13942296513 QQ 376315150 892498299 http://www.xiaoyu163.com VSX-45TX 28 1 2 3 4 1 2 3 4 C D F A B E 3.7 INPUT CONNECT and COAXIAL IN ASSYS F CN101 K 1/3 CN201 K 1/3 CN102 K 1/3 CN103 K 2/3 INPUT CONNECT ASSY (VSX-45TX : AWX7974) (VSX-43TX : AWX8041) F CN1204 C CN1307 B CN1306 B CN1308 B VSX-45TX ONLY MR VOLUME SW AMP (F) : AUDIO SIGNAL ROUTE (FRONT Lch) (S) : AUDIO SIGNAL ROUTE (SURROUND Lch) (SB) : AUDIO SIGNAL ROUTE (SURROUND BACK Lch) (C) (F) (F) (S) (S) (SB) (SB) (C) (C) : AUDIO SIGNAL ROUTE (CENTER ch) (F) (F) (S) (S) (SB) (SB) (C) (C) (MR) : AUDIO SIGNAL ROUTE (MULTI-ROOM Lch) : AUDIO SIGNAL ROUTE (Lch) (MR) (MR) (MR) (MR) (MR) (MR) : AUDIO SIGNAL ROUTE (DVD Lch) (DVD) (DVD) (DVD) (D) : AUDIO SIGNAL ROUTE (DIGITAL) (UD) : AUDIO SIGNAL ROUTE (USB DIGITAL) www. xiaoyu163. com QQ 376315150 9 9 2 8 9 4 2 9 8 TEL 13942296513 9 9 2 8 9 4 2 9 8 0 5 1 5 1 3 6 7 3 Q Q TEL 13942296513 QQ 376315150 892498299 TEL 13942296513 QQ 376315150 892498299 http://www.xiaoyu163.com VSX-45TX 29 5 6 7 8 5 6 7 8 C D F A B E VSX-45TX ONLY G CN101 R 1/2 COAXIAL IN ASSY (VSX-45TX : AWX7965) (VSX-43TX : AWX8013) G CN1701 E CN2406 W DIGITAL USB AUDIO IC1681 PCM2902EG : The power supply is shown with the marked box. IN (CD-R/TAPE1) (1/2) (2/2) 3 IN (CD) 4 USB RECEIVER (D) (D) (D) (D) (D) (UD) (UD) (UD) (UD) (UD) (UD) (UD) (UD) (UD) (UD) (D) www. xiaoyu163. com QQ 376315150 9 9 2 8 9 4 2 9 8 TEL 13942296513 9 9 2 8 9 4 2 9 8 0 5 1 5 1 3 6 7 3 Q Q TEL 13942296513 QQ 376315150 892498299 TEL 13942296513 QQ 376315150 892498299 http://www.xiaoyu163.com VSX-45TX 30 1 2 3 4 1 2 3 4 C D F A B E 3.8 VIDEO ASSY H CN2405 VIDEO ASSY (VSX-45TX : AWX7962) (VSX-43TX : AWX8002) H W VSX-45TX ONLY VIDEO S VIDEO VCR1/ DVR VIDEO S VIDEO VCR2 VIDEO S VIDEO DVD/LD IN VIDEO S VIDEO TV/SAT IN IN MAIN FUNCTION (COMP) MAIN FUNCTION (Y) MAIN FUNCTION (C) DC SELECTOR (SY) (SY) (SY) (SC) (SY) (SC) (SC) (SC) (SY) (SC) (SC) www. xiaoyu163. com QQ 376315150 9 9 2 8 9 4 2 9 8 TEL 13942296513 9 9 2 8 9 4 2 9 8 0 5 1 5 1 3 6 7 3 Q Q TEL 13942296513 QQ 376315150 892498299 TEL 13942296513 QQ 376315150 892498299 http://www.xiaoyu163.com VSX-45TX 31 5 6 7 8 5 6 7 8 C D F A B E H VSX-45TX ONLY VSX-45TX ONLY VSX-45TX ONLY VSX-45TX ONLY VSX-43TX ONLY VSX-43TX ONLY VSX-43TX ONLY VSX-43TX ONLY VSX-43TX ONLY MULTI-ROOM & SOURCE MONITOR OUT VIDEO S VIDEO MONITOR OUT VIDEO S VIDEO VCR2 OUT VIDEO S VIDEO VCR1/DVR OUT : The power supply is shown with the marked box. SUB FUNCTION OSD SELECTOR OSD SELECTOR DC BUFFER Y-BUFFER C-BUFFER COMPOSITE BUFFER (SY) : VIDEO SIGNAL ROUTE (S VIDEO Y ch) (SC) (SY) (SY) (SY) (SY) (SC) (SC) (SC) (SC) (SC) (SC) (SC) (SC) (SY) (SY) (SC) (SC) : VIDEO SIGNAL ROUTE (S VIDEO C ch) : VIDEO SIGNAL ROUTE (MR) (MR) : VIDEO SIGNAL ROUTE (MULTI-ROOM) www. xiaoyu163. com QQ 376315150 9 9 2 8 9 4 2 9 8 TEL 13942296513 9 9 2 8 9 4 2 9 8 0 5 1 5 1 3 6 7 3 Q Q TEL 13942296513 QQ 376315150 892498299 TEL 13942296513 QQ 376315150 892498299 http://www.xiaoyu163.com VSX-45TX 32 1 2 3 4 1 2 3 4 C D F A B E 3.9 COMPONENT and RS232C ASSYS I J COMPONENT ASSY (VSX-45TX : AWX7963) (VSX-43TX : AWX8021) I RS232C ASSY (AWX7966) J CN2403 W VSX-45TX ONLY VSX-45TX ONLY MULTI-ROOM & SOURCE RS-232C 12V TRIGGER (DC OUT 12V/100mA MAX) CN551 K 3/3 Y (DVD/LD) IN PB PR Y (TV/SAT) IN PB PR IC101 TC74HC4053AF COMPONENT VIDEO RS-232C TRANSCEIVER REMOTE IN CAUTION : FOR CONTINUED PROTECTION AGAINST RISK OF FIRE. REPLACE ONLY WITH SAME TYPE NO. 491.125 MFD, BY LITTELFUSE INK. FOR IC1932. COMPONENT SIGNAL SELECTOR VIDEO AMP (PB) (PB) (PB) (PB) (PB) (PR) (PR) (PR) (PR) (PR) (Y) (Y) (PB) (PB) (PB) (PR) (PR) (PR) (Y) (Y) (Y) (Y) www. xiaoyu163. com QQ 376315150 9 9 2 8 9 4 2 9 8 TEL 13942296513 9 9 2 8 9 4 2 9 8 0 5 1 5 1 3 6 7 3 Q Q TEL 13942296513 QQ 376315150 892498299 TEL 13942296513 QQ 376315150 892498299 http://www.xiaoyu163.com VSX-45TX 33 5 6 7 8 5 6 7 8 C D F A B E I CN2404 W VSX-45TX ONLY : The power supply is shown with the marked box. Y MONITOR OUT (COMPONENT VIDEO) PB PR 1SS355 1SS355 OSD (PB) : VIDEO SIGNAL ROUTE (PB) (PR) : VIDEO SIGNAL ROUTE (PR) (Y) : VIDEO SIGNAL ROUTE (Y) (PB) (PB) (PB) (PB) (PR) (PR) (PR) (PR) (PR) (Y) (Y) (Y) www. xiaoyu163. com QQ 376315150 9 9 2 8 9 4 2 9 8 TEL 13942296513 9 9 2 8 9 4 2 9 8 0 5 1 5 1 3 6 7 3 Q Q TEL 13942296513 QQ 376315150 892498299 TEL 13942296513 QQ 376315150 892498299 http://www.xiaoyu163.com VSX-45TX 34 1 2 3 4 1 2 3 4 C D F A B E 3.10 MAIN CONTROL ASSY (1/3) K 1/3 K 1/3 CN1401 K 3/3 K 2/3,3/3 K 3/3 K 3/3 MAIN CONTROL ASSY (VSX-45TX : AWX7961) (VSX-43TX : AWX8000) F VSX-45TX ONLY IN CONTROL OUT L R CD-R/ TAPE1 IN PLAY MD/ TAPE2 IN PLAY MD/ TAPE2 OUT REC L R CD-R/ TAPE1 OUT REC L R L R CD IN L R PHONE/ LINE IN L R MAIN FUNCTION (CD-R) (CD-R) (CD-R) (CD-R) (CD-R) (TX) (TX) (TX) (TX) (TX) (TX) (CD-R) (DVD) (DVD) (DVD) www. xiaoyu163. com QQ 376315150 9 9 2 8 9 4 2 9 8 TEL 13942296513 9 9 2 8 9 4 2 9 8 0 5 1 5 1 3 6 7 3 Q Q TEL 13942296513 QQ 376315150 892498299 TEL 13942296513 QQ 376315150 892498299 http://www.xiaoyu163.com VSX-45TX 35 5 6 7 8 5 6 7 8 C D F A B E CN601 R 2/2 K 2/3 CN1402 VSX-45TX ONLY VSX-45TX ONLY VSX-43TX ONLY VSX-43TX ONLY F CN1403 F K 1/3 DTA124EK 2/2 2/2 R135, R136 : VSX-45TX : 9.1kΩ VSX-43TX : 0Ω 1/2 1/2 4.7k 4.7k 47k 10k 10k 2SC3326 2SC3326 47P 47P INPUT BUFFER /PHONO FLAT GAIN BUFFER FOR MR MODE SELECTOR SUB FUNCTION FOR BI AMP (F) : AUDIO SIGNAL ROUTE (FRONT Lch) (TX) : AUDIO SIGNAL ROUTE (TUNER Lch) (MR) (MR) (MR) (MR) : AUDIO SIGNAL ROUTE (MULTI-ROOM Lch) (CD-R) : AUDIO SIGNAL ROUTE (CD-R Lch) : AUDIO SIGNAL ROUTE (Lch) (S) : AUDIO SIGNAL ROUTE (SURROUND Lch) (SB) : AUDIO SIGNAL ROUTE (SURROUND BACK Lch) (C) : AUDIO SIGNAL ROUTE (CENTER ch) (F) (F) (F) (F) (F) (S) (S) (S) (S) (S) (SB) (SB) (SB) (SB) (C) (C) (C) (C) (C) : AUDIO SIGNAL ROUTE (DVD Lch) (DVD) www. xiaoyu163. com QQ 376315150 9 9 2 8 9 4 2 9 8 TEL 13942296513 9 9 2 8 9 4 2 9 8 0 5 1 5 1 3 6 7 3 Q Q TEL 13942296513 QQ 376315150 892498299 TEL 13942296513 QQ 376315150 892498299 http://www.xiaoyu163.com VSX-45TX 36 1 2 3 4 1 2 3 4 C D F A B E 3.11 MAIN CONTROL ASSY (2/3) K 2/3 K 2/3 MAIN CONTROL ASSY (VSX-45TX : AWX7961) (VSX-43TX : AWX8000) K 1/3 K 1/3 K 1/3,3/3 C SW SBL SBR PREAMP & MAIN (MASTER) VOLUME (F) (F) (F) (F) (F) (F) (F) (S) (S) (S) (S) (S) (SB) (SB) (SB) (SB) (SB) (SB) (SB) (SB) (SB) (SB) (C) (C) (C) (C) (C) (C) (C) (C) (C) (C) (C) www. xiaoyu163. com QQ 376315150 9 9 2 8 9 4 2 9 8 TEL 13942296513 9 9 2 8 9 4 2 9 8 0 5 1 5 1 3 6 7 3 Q Q TEL 13942296513 QQ 376315150 892498299 TEL 13942296513 QQ 376315150 892498299 http://www.xiaoyu163.com VSX-45TX 37 5 6 7 8 5 6 7 8 C D F A B E K 2/3 CN4001 O CN1404 F K 3/3 PREAMP & MAIN (MASTER) VOLUME SR SL FR FL (F) (F) (F) (F) (F) (F) (F) (F) (F) (F) : AUDIO SIGNAL ROUTE (FRONT Lch) (S) : AUDIO SIGNAL ROUTE (SURROUND Lch) (SB) : AUDIO SIGNAL ROUTE (SURROUND BACK Lch) (C) (F) (S) (S) (S) (S) (S) (S) (S) (S) (S) (S) (S) (SB) (C) : AUDIO SIGNAL ROUTE (CENTER ch) (F) (S) (SB) (C) www. xiaoyu163. com QQ 376315150 9 9 2 8 9 4 2 9 8 TEL 13942296513 9 9 2 8 9 4 2 9 8 0 5 1 5 1 3 6 7 3 Q Q TEL 13942296513 QQ 376315150 892498299 TEL 13942296513 QQ 376315150 892498299 http://www.xiaoyu163.com VSX-45TX 38 1 2 3 4 1 2 3 4 C D F A B E 3.12 MAIN CONTROL ASSY (3/3) K 3/3 CN1902 J CN201 A CN2414 W CN2415 W CN2412 W VSX-45TX ONLY VSX-43TX ONLY K 1/3 K 1/3 K 2/3 K 1/3,2/3 1SS355 IC501 PD5770B8 MAIN CONTROL µ-COM RESET PORT EXPANDER 10V REGULATOR +10V (TX) www. xiaoyu163. com QQ 376315150 9 9 2 8 9 4 2 9 8 TEL 13942296513 9 9 2 8 9 4 2 9 8 0 5 1 5 1 3 6 7 3 Q Q TEL 13942296513 QQ 376315150 892498299 TEL 13942296513 QQ 376315150 892498299 http://www.xiaoyu163.com VSX-45TX 39 5 6 7 8 5 6 7 8 C D F A B E K 3/3 K 3/3 MAIN CONTROL ASSY (VSX-45TX : AWX7961) (VSX-43TX : AWX8000) CN2413 W CN2411 W CN2410 W CN3006 S For Flash ROM K 1/3 : The power supply is shown with the marked box. IC302 TC74VHCT244AFT LEVEL SHIFT 3.3V ––> 5V BUFFER (TX) : AUDIO SIGNAL ROUTE (TUNER Lch) www. xiaoyu163. com QQ 376315150 9 9 2 8 9 4 2 9 8 TEL 13942296513 9 9 2 8 9 4 2 9 8 0 5 1 5 1 3 6 7 3 Q Q TEL 13942296513 QQ 376315150 892498299 TEL 13942296513 QQ 376315150 892498299 http://www.xiaoyu163.com VSX-45TX 40 1 2 3 4 1 2 3 4 C D F A B E 3.13 MIC & F.OPT IN, MIC AMP and DSP CONNECTION ASSYS L M N MIC & F.OPT IN ASSY (AWX7981) L MIC AMP ASSY (AWX8004) M CN3004 VSX-45TX ONLY VSX-45TX ONLY S CN2409 W CN2408 W CN2407 W J3008 S : The power supply is shown with the marked box. DIGITAL IN VIDEO INPUT (FRONT) SETUP MIC MIC AMP +5V www. xiaoyu163. com QQ 376315150 9 9 2 8 9 4 2 9 8 TEL 13942296513 9 9 2 8 9 4 2 9 8 0 5 1 5 1 3 6 7 3 Q Q TEL 13942296513 QQ 376315150 892498299 TEL 13942296513 QQ 376315150 892498299 http://www.xiaoyu163.com VSX-45TX 41 5 6 7 8 5 6 7 8 C D F A B E N CN102 R 1/2 DSP CONNECTION ASSY (AWX8024) N AKP7177 LEVEL SHIFT 5V ––> 3.3V www. xiaoyu163. com QQ 376315150 9 9 2 8 9 4 2 9 8 TEL 13942296513 9 9 2 8 9 4 2 9 8 0 5 1 5 1 3 6 7 3 Q Q TEL 13942296513 QQ 376315150 892498299 TEL 13942296513 QQ 376315150 892498299 http://www.xiaoyu163.com VSX-45TX 42 1 2 3 4 1 2 3 4 C D F A B E 3.14 POWER AMP IN, FAN DRIVE and FAN CONNECTION ASSYS O CN801 CN4401 K 2/3 POWER AMP IN ASSY (AWX7982) O X FAN MOTOR (FRONT) CN4402 Y 1SS355 OVER LOAD DETECTION (F) : AUDIO SIGNAL ROUTE (FRONT Lch) (S) : AUDIO SIGNAL ROUTE (SURROUND Lch) (SB) : AUDIO SIGNAL ROUTE (SURROUND BACK Lch) (C) (C) (C) (C) (C) : AUDIO SIGNAL ROUTE (CENTER ch) (F) (S) (S) (F) (SB) (SB) (F) (F) (S) (S) (SB) (SB) www. xiaoyu163. com QQ 376315150 9 9 2 8 9 4 2 9 8 TEL 13942296513 9 9 2 8 9 4 2 9 8 0 5 1 5 1 3 6 7 3 Q Q TEL 13942296513 QQ 376315150 892498299 TEL 13942296513 QQ 376315150 892498299 http://www.xiaoyu163.com VSX-45TX 43 5 6 7 8 5 6 7 8 C D F A B E P Q FAN CONNECTION ASSY (AWX8005) Q FAN DRIVE ASSY (AWX7976) P J2201 Non Connection AC 1SS355 1SR154-400 1SR154-400 CAUTION : FOR CONTINUED PROTECTION AGAINST RISK OF FIRE. REPLACE ONLY WITH SAME TYPE NO. 491.200 MFD, BY LITTELFUSE INK. FOR IC4701 AND IC4702. +25.2V www. xiaoyu163. com QQ 376315150 9 9 2 8 9 4 2 9 8 TEL 13942296513 9 9 2 8 9 4 2 9 8 0 5 1 5 1 3 6 7 3 Q Q TEL 13942296513 QQ 376315150 892498299 TEL 13942296513 QQ 376315150 892498299 http://www.xiaoyu163.com VSX-45TX 44 1 2 3 4 1 2 3 4 C D F A B E 3.15 DSP ASSY (1/2) CN1802 G CN1651 N R 1/2 R 1/2 DSP ASSY (AWX8016) (F)(S)(SB)(C) (F) (C) (SB) (S) (F)(S)(SB)(C) (SD) (SD) (SD) (SD) (SD) (SD) (SD) (SD) (SD) (D) (D) (D) (UD) (UD) (UD) (UD) www. xiaoyu163. com QQ 376315150 9 9 2 8 9 4 2 9 8 TEL 13942296513 9 9 2 8 9 4 2 9 8 0 5 1 5 1 3 6 7 3 Q Q TEL 13942296513 QQ 376315150 892498299 TEL 13942296513 QQ 376315150 892498299 http://www.xiaoyu163.com VSX-45TX 45 5 6 7 8 5 6 7 8 C D F A B E R 1/2 R 2/2 R 2/2 : The power supply is shown with the marked box. (F) : AUDIO SIGNAL ROUTE (FRONT Lch) : AUDIO SIGNAL ROUTE (Lch) (S) : AUDIO SIGNAL ROUTE (SURROUND Lch) (SB) : AUDIO SIGNAL ROUTE (SURROUND BACK Lch) (C) : AUDIO SIGNAL ROUTE (CENTER ch) (SD) : SURROUND DATA SIGNAL ROUTE (F)(S)(SB)(C) (F)(S)(SB)(C) (F)(S)(SB)(C) (F)(S)(SB)(C) (C) (SB) (S) (F) (SD) (D) : AUDIO SIGNAL ROUTE (DIGITAL) (UD) : AUDIO SIGNAL ROUTE (USB DIGITAL) www. xiaoyu163. com QQ 376315150 9 9 2 8 9 4 2 9 8 TEL 13942296513 9 9 2 8 9 4 2 9 8 0 5 1 5 1 3 6 7 3 Q Q TEL 13942296513 QQ 376315150 892498299 TEL 13942296513 QQ 376315150 892498299 http://www.xiaoyu163.com VSX-45TX 46 1 2 3 4 1 2 3 4 C D F A B E 3.16 DSP ASSY (2/2) R 2/2 R 2/2 DSP ASSY (AWX8016) R 1/2 R 1/2 (F)(S)(SB)(C) (F)(S)(SB)(C) (F)(S)(SB)(C) (F)(S)(SB)(C) (F)(S)(SB)(C) (F)(S)(SB)(C) (F) (F) (F) (C) (C) (C) (S) (S) (S) (SB) (SB) (SB) (SB) www. xiaoyu163. com QQ 376315150 9 9 2 8 9 4 2 9 8 TEL 13942296513 9 9 2 8 9 4 2 9 8 0 5 1 5 1 3 6 7 3 Q Q TEL 13942296513 QQ 376315150 892498299 TEL 13942296513 QQ 376315150 892498299 http://www.xiaoyu163.com VSX-45TX 47 5 6 7 8 5 6 7 8 C D F A B E R 2/2 CN301 K 1/3 (F) (F) (F) (F) (F) (F) (F) : AUDIO SIGNAL ROUTE (FRONT Lch) : AUDIO SIGNAL ROUTE (Lch) (S) (S) (S) (S) (S) (S) (S) (S) : AUDIO SIGNAL ROUTE (SURROUND Lch) (SB) (SB) (SB) (SB) (SB) (SB) (SB) (SB) (SB) : AUDIO SIGNAL ROUTE (SURROUND BACK Lch) (C) (C) (C) (C) (C) (C) (C) (C) (C) : AUDIO SIGNAL ROUTE (CENTER ch) www. xiaoyu163. com QQ 376315150 9 9 2 8 9 4 2 9 8 TEL 13942296513 9 9 2 8 9 4 2 9 8 0 5 1 5 1 3 6 7 3 Q Q TEL 13942296513 QQ 376315150 892498299 TEL 13942296513 QQ 376315150 892498299 http://www.xiaoyu163.com VSX-45TX 48 1 2 3 4 1 2 3 4 C D F A B E 3.17 DISPLAY ASSY S CN501 K 3/3 DISPLAY ASSY (VSX-45TX : AWX7983) (VSX-43TX : AWX8011) S VSX-45TX ONLY VSX-43TX ONLY REMOTE SIGNAL CONTROL www. xiaoyu163. com QQ 376315150 9 9 2 8 9 4 2 9 8 TEL 13942296513 9 9 2 8 9 4 2 9 8 0 5 1 5 1 3 6 7 3 Q Q TEL 13942296513 QQ 376315150 892498299 TEL 13942296513 QQ 376315150 892498299 http://www.xiaoyu163.com VSX-45TX 49 5 6 7 8 5 6 7 8 C D F A B E S CN1501 D CN3451 U CN3401 T CN1951 V CN1601 L CN4752 VSX-45TX ONLY VSX-45TX ONLY M CN2002 AG 52045-0345 DISPLAY µ-COM FL (HP) : AUDIO SIGNAL ROUTE (PHONES ch) (HP) (HP) (HP) www. xiaoyu163. com QQ 376315150 9 9 2 8 9 4 2 9 8 TEL 13942296513 9 9 2 8 9 4 2 9 8 0 5 1 5 1 3 6 7 3 Q Q TEL 13942296513 QQ 376315150 892498299 TEL 13942296513 QQ 376315150 892498299 http://www.xiaoyu163.com VSX-45TX 50 1 2 3 4 1 2 3 4 C D F A B E 3.18 VOLUME, MULTI JOG and HEADPHONE ASSYS T VOLUME ASSY (AWX7971) ROTARY ENCODER S3401 : MASTER VOLUME S3402 : ACOUSTIC EQ S3403 : MULTI CH IN S3404 : STEREO/DIRECT T J3002 S www. xiaoyu163. com QQ 376315150 9 9 2 8 9 4 2 9 8 TEL 13942296513 9 9 2 8 9 4 2 9 8 0 5 1 5 1 3 6 7 3 Q Q TEL 13942296513 QQ 376315150 892498299 TEL 13942296513 QQ 376315150 892498299 http://www.xiaoyu163.com VSX-45TX 51 5 6 7 8 5 6 7 8 C D F A B E V U ROTARY ENCODER S3451 : MULTI JOG S3452 : ENTER S3453 : MUSIC S3454 : MOVIE S3455 : STANDBY/ON MULTI JOG ASSY (AWX7972) U HEADPHONE ASSY (AWX7980) V CN3007 S J3003 S PHONES (HP) (HP) (HP) : AUDIO SIGNAL ROUTE (PHONES ch) www. xiaoyu163. com QQ 376315150 9 9 2 8 9 4 2 9 8 TEL 13942296513 9 9 2 8 9 4 2 9 8 0 5 1 5 1 3 6 7 3 Q Q TEL 13942296513 QQ 376315150 892498299 TEL 13942296513 QQ 376315150 892498299 http://www.xiaoyu163.com VSX-45TX 52 1 2 3 4 1 2 3 4 C D F A B E 3.19 REGULATOR ASSY W REGULATOR ASSY (AWX7967) W J4602 AA J11 AE CN1903 J CN1803 G CN901 H CN1001 I D3SBA20(B) FOR AUDIO FOR VIDEO FOR VIDEO FOR µ-COM FOR DSP FOR AUDIO +24.5V +15V +11.4V +43.7V -11.4V +41.8V +5V +11.8V -25.1V -15V +5.6V -5.6V +5.6V CAUTION : FOR CONTINUED PROTECTION AGAINST RISK OF FIRE. REPLACE ONLY WITH SAME TYPE NO. 491.315 MFD, BY LITTELFUSE INK. FOR IC2411. www. xiaoyu163. com QQ 376315150 9 9 2 8 9 4 2 9 8 TEL 13942296513 9 9 2 8 9 4 2 9 8 0 5 1 5 1 3 6 7 3 Q Q TEL 13942296513 QQ 376315150 892498299 TEL 13942296513 QQ 376315150 892498299 http://www.xiaoyu163.com VSX-45TX 53 5 6 7 8 5 6 7 8 C D F A B E W CN1 K 3/3 CN2 K 3/3 CN502 K 3/3 CN351 K 3/3 CN302 K 3/3 CN3 K 3/3 CN1654 N CN1653 N CN1652 N : The power supply is shown with the marked box. FOR TUNER FOR AD +5V +12V www. xiaoyu163. com QQ 376315150 9 9 2 8 9 4 2 9 8 TEL 13942296513 9 9 2 8 9 4 2 9 8 0 5 1 5 1 3 6 7 3 Q Q TEL 13942296513 QQ 376315150 892498299 TEL 13942296513 QQ 376315150 892498299 http://www.xiaoyu163.com VSX-45TX 54 1 2 3 4 1 2 3 4 C D F A B E 3.20 POWER AMP-L ASSY X CN4003 THERMISTOR AEX7004 POWER AMP-L ASSY (AWX7984) X O (F) : AUDIO SIGNAL ROUTE (FRONT Lch) (S) : AUDIO SIGNAL ROUTE (SURROUND Lch) (SB) (F) (F) (F) (F) (F) (F) (F) (F) (F) : AUDIO SIGNAL ROUTE (SURROUND BACK Lch) (S) (S) (S) (S) (S) (S) (S) (S) (S) (SB) (SB) (SB) (SB) (SB) (SB) (SB) (SB) (SB) (C) : AUDIO SIGNAL ROUTE (CENTER ch) www. xiaoyu163. com QQ 376315150 9 9 2 8 9 4 2 9 8 TEL 13942296513 9 9 2 8 9 4 2 9 8 0 5 1 5 1 3 6 7 3 Q Q TEL 13942296513 QQ 376315150 892498299 TEL 13942296513 QQ 376315150 892498299 http://www.xiaoyu163.com VSX-45TX 55 5 6 7 8 5 6 7 8 C D F A B E X CN4455 Z CN4601 AA CN4603 AA CN4603 AA CN4605 AA : The power supply is shown with the marked box. POWER AMP VOLTAGE AMPLIFYING STAGE POWER AMP CURRENT AMPLIFYING STAGE (F) (F) (F) (F) (F) (F) (F) (F) (S) (S) (S) (S) (S) (S) (S) (S) (SB) (SB) (SB) (SB) (SB) (SB) (C) (C) (SB) (SB) www. xiaoyu163. com QQ 376315150 9 9 2 8 9 4 2 9 8 TEL 13942296513 9 9 2 8 9 4 2 9 8 0 5 1 5 1 3 6 7 3 Q Q TEL 13942296513 QQ 376315150 892498299 TEL 13942296513 QQ 376315150 892498299 http://www.xiaoyu163.com VSX-45TX 56 1 2 3 4 1 2 3 4 C D F A B E 3.21 POWER AMP-R and POWER AMP-C ASSYS Y Z POWER AMP-R ASSY (AWX7985) Y CN4002 O CN4456 X POWER AMP-C ASSY (AWX7986) Z DC DETECTION POWER AMP VOLTAGE AMPLIFYING STAGE (C) (C) (C) (C) (C) (C) (C) (C) (C) (C) (C) (C) (C) (C) (C) (C) (C) (C) (C) www. xiaoyu163. com QQ 376315150 9 9 2 8 9 4 2 9 8 TEL 13942296513 9 9 2 8 9 4 2 9 8 0 5 1 5 1 3 6 7 3 Q Q TEL 13942296513 QQ 376315150 892498299 TEL 13942296513 QQ 376315150 892498299 http://www.xiaoyu163.com VSX-45TX 57 5 6 7 8 5 6 7 8 C D F A B E Y Z CN4606 AA CN4602 AA CN4604 AA CN4604 AA CN4602 AA : The power supply is shown with the marked box. POWER AMP CURRENT AMPLIFYING STAGE (C) (C) (C) (C) (C) (C) (C) (C) (C) (C) (C) (C) (C) (C) : AUDIO SIGNAL ROUTE (CENTER ch) www. xiaoyu163. com QQ 376315150 9 9 2 8 9 4 2 9 8 TEL 13942296513 9 9 2 8 9 4 2 9 8 0 5 1 5 1 3 6 7 3 Q Q TEL 13942296513 QQ 376315150 892498299 TEL 13942296513 QQ 376315150 892498299 http://www.xiaoyu163.com VSX-45TX 58 1 2 3 4 1 2 3 4 C D F A B E 3.22 SP/PS, DIODE, TRANS 2-1 and VH TR ASSYS AA AB AC AD T1 POWER TRANSFORMER CN4701 Q Y5 X VH TR ASSY (AWX8018) AD DIODE ASSY (VSX-45TX : AWX8017) (VSX-43TX : AWX8038) AB TRANS 2-1 ASSY (AWX7979) AC REK1113 (3A/125V) REK1113 (3A/125V) CAUTION : FOR CONTINUED PROTECTION AGAINST RISK OF FIRE. REPLACE ONLY WITH SAME TYPE NO. 4913.15 MFD, BY LITTELFUSE INK. FOR IC2201 AND IC2202. • NOTE FOR FUSE REPLACEMENT FOR CONTINUED PROTECTION AGAINST RISK OF FIRE. REPLACE WITH SAME TYPE AND RATINGS ONLY. CAUTION - D2203-D2206, D2209-D2212 : UDZS9.1B UDZS22B UDZS22B 51048-0600 2202 1SR154-400 1SR154-400 D2241, D2242 : VSX-45TX : LN6SB60-4003 VSX-43TX : B5SBA20(B) C4621, C4622 : VSX-45TX : ACH7169 VSX-43TX : ACH7170 RECTIFIER FOR POWER AMP +60V *1 *2 *1 *2 +56V -56V +35.3V 8Ωmode 6Ωmode -35.3V -60V -55.7V +55.7V www. xiaoyu163. com QQ 376315150 9 9 2 8 9 4 2 9 8 TEL 13942296513 9 9 2 8 9 4 2 9 8 0 5 1 5 1 3 6 7 3 Q Q TEL 13942296513 QQ 376315150 892498299 TEL 13942296513 QQ 376315150 892498299 http://www.xiaoyu163.com VSX-45TX 59 5 6 7 8 5 6 7 8 C D F A B E AA L R FRONT SP/PS ASSY (VSX-45TX : AWX7975) (VSX-43TX : AWX8037) Y6 Y Y2 X Y3 X Y4 Y Y1 Z Y1 Y CN2401 W L R CENTER SURROUND SPEAKERS L R SURROUND BACK/ AA CN2003 AG CN2004 AG ADX7291 AKE7074 AKE7075 RY4601-RY4605 : VSX-45TX : ASR7014 VSX-43TX : ASR7026 0.01 0.01 0.1 0.1 0.1 0.1 0.1 0.1 0.1 0.01 0.01 0.01 0.01 0.01 D4601-D4610 : 1SS355 R4628-R4632 : VSX-45TX : 330Ω VSX-43TX : 470Ω VSX-45TX ONLY VSX-45TX ONLY VSX-45TX ONLY VSX-43TX ONLY RTF1167 RTF1167 100/50 SPEAKER RELAY (F) (F) (F) (F) (F) (F) : AUDIO SIGNAL ROUTE (FRONT Lch) (S) (S) (S) (S) (S) : AUDIO SIGNAL ROUTE (SURROUND Lch) (SB) (SB) (SB) (SB) (SB) (SB) (SB) : AUDIO SIGNAL ROUTE (SURROUND BACK Lch) (C) (C) (C) (C) (C) (C) : AUDIO SIGNAL ROUTE (CENTER ch) (HP) : AUDIO SIGNAL ROUTE (PHONES ch) (HP) (HP) (HP) (HP) (HP) (HP) (HP) (HP) www. xiaoyu163. com QQ 376315150 9 9 2 8 9 4 2 9 8 TEL 13942296513 9 9 2 8 9 4 2 9 8 0 5 1 5 1 3 6 7 3 Q Q TEL 13942296513 QQ 376315150 892498299 TEL 13942296513 QQ 376315150 892498299 http://www.xiaoyu163.com VSX-45TX 60 1 2 3 4 1 2 3 4 C D F A B E 3.23 TRANS 2-2, TRANS 1 and PRIMARY ASSYS AE AF AG TRANS 1 ASSY (AWX7969) AF TRANS 2-2 ASSY (AWX7970) AE CN3001 S J11 W T1 POWER TRANSFORMER CAUTION : FOR CONTINUED PROTECTION AGAINST RISK OF FIRE. REPLACE ONLY WITH SAME TYPE NO. 491005 MFD, BY LITTELFUSE INK. FOR IC2253. CAUTION : FOR CONTINUED PROTECTION AGAINST RISK OF FIRE. REPLACE ONLY WITH SAME TYPE NO. 4913.15 MFD, BY LITTELFUSE INK. FOR IC2251 AND IC2252. • NOTE FOR FUSE REPLACEMENT FOR CONTINUED PROTECTION AGAINST RISK OF FIRE. REPLACE WITH SAME TYPE AND RATINGS ONLY. CAUTION - (HP) (HP) www. xiaoyu163. com QQ 376315150 9 9 2 8 9 4 2 9 8 TEL 13942296513 9 9 2 8 9 4 2 9 8 0 5 1 5 1 3 6 7 3 Q Q TEL 13942296513 QQ 376315150 892498299 TEL 13942296513 QQ 376315150 892498299 http://www.xiaoyu163.com VSX-45TX 61 5 6 7 8 5 6 7 8 C D F A B E AG PRIMARY ASSY (AWX7968) AG CN4613 AA CN4610 AA AC IN AC OUTLET VEK1029 (10A/125V) AC RELAY (HP) (HP) (HP) : AUDIO SIGNAL ROUTE (PHONES ch) LIVE NEUTRAL www. xiaoyu163. com QQ 376315150 9 9 2 8 9 4 2 9 8 TEL 13942296513 9 9 2 8 9 4 2 9 8 0 5 1 5 1 3 6 7 3 Q Q TEL 13942296513 QQ 376315150 892498299 TEL 13942296513 QQ 376315150 892498299 http://www.xiaoyu163.com VSX-45TX 62 1 2 3 4 1 2 3 4 C D F A B E 4. PCB CONNECTION DIAGRAM NOTE FOR PCB DIAGRAMS : 1. Part numbers in PCB diagrams match those in the schematic diagrams. 2. A comparison between the main parts of PCB and schematic diagrams is shown below. 3. The parts mounted on this PCB include all necessary parts for several destinations. For further information for respective destinations, be sure to check with the schematic diagram. 4. View point of PCB diagrams. Symbol In PCB Diagrams Symbol In Schematic Diagrams Part Name B C E D D G G S S B C E B C E D G S B C E B C E B C E Transistor Transistor with resistor Field effect transistor Resistor array 3-terminal regulator Capacitor Connector P.C.Board Chip Part SIDE A SIDE B www. xiaoyu163. com QQ 376315150 9 9 2 8 9 4 2 9 8 TEL 13942296513 9 9 2 8 9 4 2 9 8 0 5 1 5 1 3 6 7 3 Q Q TEL 13942296513 QQ 376315150 892498299 TEL 13942296513 QQ 376315150 892498299 http://www.xiaoyu163.com VSX-45TX 63 5 6 7 8 5 6 7 8 C D F A B E 4.1 FM/AM TUNER MODULE (ANP7338-B) (ANP7338-B) CN601 K FM/AM TUNER MODULE A FM/AM TUNER MODULE A IC201 Q204 Q205 Q203 Q601 IC202 Q602 Q202 SIDE A SIDE B SIDE A SIDE B A CN201 CN201 www. xiaoyu163. com QQ 376315150 9 9 2 8 9 4 2 9 8 TEL 13942296513 9 9 2 8 9 4 2 9 8 0 5 1 5 1 3 6 7 3 Q Q TEL 13942296513 QQ 376315150 892498299 TEL 13942296513 QQ 376315150 892498299 http://www.xiaoyu163.com VSX-45TX 64 1 2 3 4 1 2 3 4 C D F A B E 4.2 7.1CH I/O ASSY Q1351 Q1352 Q1361 Q1362 Q1371 Q1372 Q1381 Q1382 C1351 C1352 C1361 C1362 C1371 C1372 C1381 C1382 R1351 R1352 R1361 R1362 R1371 R1372 R1381 R1382 R1353 R1354 R1355 R1356 R1357 R1358 R1359 R1363 R1364 R1365 R1366 R1367 R1368 R1369 R1373 R1374 R1375 R1376 R1377 R1378 R1379 R1383 R1384 R1385 R1386 R1387 R1388 R1389 C1391 C1392 C1393 C1394 R1360 R1370 R1390 R1380 R1301 R1302 R1303 R1304 R1307 R1308 R1311 R1312 R1313 R1314 R1317 R1318 R1321 R1322 R1323 R1324 R1327 R1328 R1331 R1332 R1333 R1334 R1337 R1338 C1301 C1302 C1303 C1304 C1307 C1308 C1311 C1312 C1313 C1314 C1317 C1318 C1321 C1322 C1323 C1324 C1327 C1328 C1331 C1332 C1333 C1334 C1337 C1338 C1341 C1342 C1343 C1344 C1345 C1346 C1347 C1348 IC1301 IC1302 IC1304 IC1303 1 9 1 9 1 5 1 1 1 1 1 9 1 9 1 5 CN1303 CN1304 CN1301 CN1302 CN1308 CN1307 CN1306 W1314 W1320 W1322 W1321 W1319 W1318 W1317 C1305 C1306 C1315 C1316 C1325 C1326 C1335 C1336 C1309 C1310 C1319 C1320 C1329 C1330 C1339 C1340 W1315 W1316 W1313 W1312 W1304 W1308 W1303 R L C SW SBR MUTE SBL SL SR AG AG AG A+15V A-15V R L SR SL SW C SBR SBL AG 7.1CH I/O ASSY AWX7973 CMK-P3X 1 9 1 9 5 1 SIDE A SIDE B SIDE A SIDE B B 7.1CH I/O ASSY B 7.1CH I/O ASSY B CN1408 F (ANP7419-B) (ANP7419-B) IC1304 IC1303 IC1302 IC1301 Q1371 Q1372 Q1362 Q1352 Q1351 Q1361 Q1382 Q1381 CN1308 CN1407 F CN1306 CN1406 F CN1307 CN1308 CN1306 CN1307 www. xiaoyu163. com QQ 376315150 9 9 2 8 9 4 2 9 8 TEL 13942296513 9 9 2 8 9 4 2 9 8 0 5 1 5 1 3 6 7 3 Q Q TEL 13942296513 QQ 376315150 892498299 TEL 13942296513 QQ 376315150 892498299 http://www.xiaoyu163.com VSX-45TX 65 5 6 7 8 5 6 7 8 C D F A B E 4.3 V-AUDIO IN ASSY R1226 R1225 R1224 R1223 R1222 R1221 R1216 R1215 R1219 R1220 R1217 R1218 R1213 R1214 R1208 R1207 R1206 R1205 R1204 R1203 C1211 C1212 C1209 C1210 C1207 C1208 C1205 C1206 C1203 C1204 R1212 R1210 R1202 C1202 R1211 R1209 C1201 R1201 C1214 C1215 C1213 AWX 10.V2/IN 11.TV/SAT 12.DVD/LD 13.V1/OUT 16.MRR 17.MR MUTE 14.V2/OUT R 1.V2/OUT 2.V1/OUT 3.DVD/LD 15.MRL L 4.TV/SAT 5.V2/IN 6.V1/IN 7.GNDA 8.GNDA 9.V1/IN V-AUDIO ASS'Y 8 7 7 6 9 8 4 6 9 3 3 4 5 5 1 2 0 0 1 2 1 0 2 3 6 5 4 5 2 1 0 4 3 6 9 9 7 7 8 8 1 17 1 17 1 2 3 4 7 10 W1208 CN1204 Q1202 CN1203 CN1202 CN1201 W1204 Q1201 W1201 W1207 W1206 W1205 W1210 W1209 W1203 W1202 CN1205 R 1.V2/OUT 2.V1/OUT 3.DVD/LD 4.TV/SAT 5.V2/IN 6.V1/IN 7.GNDA 8.GNDA 9.V1/IN 10.V2/IN 11.TV/SAT 12.DVD/LD 13.V1/OUT 14.V2/OUT 15.MRL 16.MRR R R R R R R R L L L L L L L MR OUT VCR1 OUT IN IN TV/SAT VCR2 OUT DVD/TV L 17.MR MUTE V-AUDIO ASS'Y CMK-P3X IN IN 1 17 SIDE A SIDE B SIDE A SIDE B C V-AUDIO IN ASSY C V-AUDIO IN ASSY C (ANP7420-B) (ANP7420-B) Q1201 Q1202 CN1405 F CN1204 CN1204 www. xiaoyu163. com QQ 376315150 9 9 2 8 9 4 2 9 8 TEL 13942296513 9 9 2 8 9 4 2 9 8 0 5 1 5 1 3 6 7 3 Q Q TEL 13942296513 QQ 376315150 892498299 TEL 13942296513 QQ 376315150 892498299 http://www.xiaoyu163.com VSX-45TX 66 1 2 3 4 1 2 3 4 C D F A B E 4.4 FRONT IN, OPTICAL IN and INPUT CONNECT ASSYS 1 9 1 13 1 14 15 1 9 1 5 1 9 1 7 1 17 W1406 W1404 W1423 W1420 W1407 W1422 W1411 CN1404 CN1403 CN1401 W1415 W1412 W1413 W1416 W1424 W1402 W1401 W1425 W1409 W1400 W1408 W1419 W1421 W1405 CN1406 CN1407 CN1408 R1405 CN1402 W1418 W1410 W1403 W1417 C1401 C1402 C1405 C1403 C1404 C1451 C1452 CN1405 -15V +5V CMK-P3X 1 9 DC R CH L CH 15.V2/OUT 13.V-15 6.V1/IN 4.TV/SAT 3.DVD/LD 2.V1/OUT 1.V2/OUT 5.V2/IN 10.SBL 11.SBR 12.SW 7.GNDA 8.GNDA 9.GNDA 10.V1/IN 11.V2/IN 12.TV/SAT 1.V+15 2.FR 3.FL 4.C 5.SL 6.GNDA 7.GNDA 9.SR 8.GNDA 9.C 8.FL 7.FR 6.SL 5.SR 4.SBL 3.SBR 2.SW 1.AMUTE 14.V1/OUT 13.DVD/LD L CH R CH 7.LCH 6.GNDA 5.RCH 4.GNDU 3.MR MUTE 2.MR DT 1.MR CK 10.GNDA 11.GNDA 12.V1/IN 13.V2/IN 14.TV/SAT 15.DVD/LD 16.V1/OUT 7.TV/SAT 8.V2/IN 9.V1/IN 6.DVD/LD 5.V1/OUT 4.V2/OUT 3.MRL 2.MRR 1.MR MUTE 17.V2/OUT 4.FL 5.SR 6.SL 7.SBR 9.AMUTE 8.SBL 3.FR 2.SW 1.C 5.V+15 4.V-15 3.GNDA 2.GNDA 1.GNDA 9.SBL 8.SBR 7.C 6.SW 5.SL 4.SR 3.FL 2.GNDA 1.FR FC 5 1 9 1 9 1 15 1 1 13 1 7 1 17 1 9 1 7 1 2 3 4 5 6 7 8 9 10 11 12 13 14 15 CN1501 W1501 JA1501 FRONT IN ASS'Y 1.FV_R 3.FV_L 2.AGND 4.AGND 5.F_VIDEO 6.FV_C 7.FV_Y W1706 W1702 W1705 W1704 W1707 W1703 W1708 W1701 JA1704 JA1703 JA1702 JA1701 CN1701 C1706 6.D-OUT2 5.GNDD(SEP) 4.D-IN1 3.GNDD(SEP) 2.D-IN2 1.+5V 7.GNDD(SEP) 9.GNDD 8.D-OUT1 IN2 IN1 OUT2 OUT1 ASS'Y OPTICAL-IN CMK-P3X CONTACT SIDE TZ TZ RZ RZ 1 9 1 7 SIDE A D E F FRONT IN ASSY D INPUT CONNECT ASSY F OPTICAL IN ASSY E (ANP7420-B) (ANP7420-B) (ANP7420-B) CN1801 G CN1701 CN1308 B CN1408 CN1306 B CN1407 CN1307 B CN1406 CN3005 S CN1501 CN201 K CN1402 CN101 K CN1401 CN1204 C CN1405 CN102 K CN1403 CN103 K CN1404 C www. xiaoyu163. com QQ 376315150 9 9 2 8 9 4 2 9 8 TEL 13942296513 9 9 2 8 9 4 2 9 8 0 5 1 5 1 3 6 7 3 Q Q TEL 13942296513 QQ 376315150 892498299 TEL 13942296513 QQ 376315150 892498299 http://www.xiaoyu163.com VSX-45TX 67 5 6 7 8 5 6 7 8 C D F A B E C1702 C1703 C1701 R1704 R1702 R1701 C1704 R1703 F1701 C1705 7.GNDD(SEP) 9.GNDD 5.GNDD 4.D-IN1 3.GNDD(SEP) 2.D-IN2 1.+5V IN1 ASS'Y OPTICAL-IN OUT1 AWX7978 OUT2 IN2 6.D-OUT2 9 8.D-OUT1 1 R1507 R1506 R1505 R1501 R1502 C1501 R1504 R1503 C1504 C1503 C1502 C1506 C1505 R1509 C1510 R1510 C1508 C1509 C1507 L1501 L1502 L1503 L1504 R1508 KN1501 AWX7977 2.AGND 5.F_VIDEO 3.FV_L 1.FV_R 4.AGND C 6.FV_C R L 7.FV_Y V AWX8186 FRONT IN ASS'Y Y CMK-P3X 7 1 4 1 5 8 IC1401 D1401 C1406 R1402 R1401 R1404 C1407 R1403 R1415 R1411 R1414 R1413 R1412 R1410 R1416 R1417 R1418 R1419 R1452 R1453 R1454 R1451 C1455 C1454 C1453 IC1451 7 8 6 7 9 8 4 4 6 9 1 3 3 3 R CH L CH ASS'Y INPUT CONNECT 2 3 5 5 AWX 2.V1/OUT 2.FR 2.SW 7.C 10.SBL 13.V-15 R CH 3.DVD/LD 7.GNDA 6.SL 5.SL 11.SBR 1.GNDA 4.TV/SAT 11.V2/IN 6.V1/IN L CH 5.SR 13.DVD/LD 9.C 10.V1/IN 9.GNDA 8.GNDA 2.SW 8.SBR 14.V1/OUT 12.TV/SAT 15.V2/OUT 1.MR CK 12.SW 7.SBR 2.MR DT 3.MR MUTE 1.AMUTE 6.SW 9.AMUTE 1.C 7.GNDA 9.SBL 8.FL 8.GNDA 9.SR 5.V2/IN 8.SBL 4.FL 5.SL 3.GNDA 4.V-15 5.V+15 6.GNDA 1.V+15 4.SR 3.FL 2.GNDA 1.FR 4.GNDU 5.RCH 4.C 5.SR 6.SL 7.FR 1.V2/OUT 3.FR 2.GNDA 4.SBL 3.SBR 3.FL 6.GNDA 7.LCH 17.V2/OUT 16.V1/OUT 15.DVD/LD 14.TV/SAT 1.MR MUTE 2.MRR 3.MRL 4.V2/OUT 5.V1/OUT 6.DVD/LD 9.V1/IN 8.V2/IN 7.TV/SAT 13.V2/IN 12.V1/IN 11.GNDA 10.GNDA 17 1 1 8 8 6 6 9 9 7 7 4 5 5 4 0 0 1 2 1 0 2 2 1 0 9 1 1 13 15 1 9 1 5 1 9 1 1 8 5 4 1 7 1 17 CO C 1801 1 SIDE B IC1401 IC1451 D E F FRONT IN ASSY D INPUT CONNECT ASSY F OPTICAL IN ASSY E (ANP7420-B) (ANP7420-B) (ANP7420-B) CN1701 CN1408 CN1407 CN1406 CN1501 CN1402 CN1401 CN1405 CN1403 CN1404 www. xiaoyu163. com QQ 376315150 9 9 2 8 9 4 2 9 8 TEL 13942296513 9 9 2 8 9 4 2 9 8 0 5 1 5 1 3 6 7 3 Q Q TEL 13942296513 QQ 376315150 892498299 TEL 13942296513 QQ 376315150 892498299 http://www.xiaoyu163.com VSX-45TX 68 1 2 3 4 1 2 3 4 C D F A B E 4.5 COAXIAL IN ASSY CN1803 CN1801 CN1802 R1835 C1698 C1853 L1803 R1889 C1819 R1881 R1882 C1892 C1680 C1806 C1804 C1815 C1802 R1690 R1837 C1820 R1801 L1802 C1882 C1897 D1802 R1696 C1824 C1687 C1688 C1801 R1681 R1689 R1682 R1683 C1887 R1891 C1843 C1803 R1897 R1892 R1821 C1844 Q1802 Q1806 Q1808 R1836 C1888 C1851 R1808 F1881 Q1809 R1843 R1890 R1842 C1893 IC1682 R1807 R1834 R1822 L1804 C1881 R1852 R1819 R1853 C1809 C1847 R1826 C1812 R1817 R1818 C1811 C1889 C1846 C1696 R1806 R1854 R1887 R1888 R1840 C1849 R1850 R1851 1 9 1 9 HCMK-P3X 1 20 1 5 C1814 C1822 D1801 R1825 R1832 R1845 C1829 R1830 C1883 IC1804 JA1802 IC1681 C1884 R1831 C1826 C1817 R1803 C1805 IC1803 C1840 C1841 R1838 R1828 JA1681 CN1803 C1836 JA1801 R1805 C1697 C1837 C1848 C1818 C1816 R1839 R1833 C1825 R1804 R1823 C1681 C1838 R1802 R1827 C1810 C1835 C1823 R1816 C1834 C1682 R1815 C1821 C1683 C1684 C1685 R1814 C1686 C1842 R1829 C1689 C1690 C1845 R1688 R1824 C1839 R1684 R1685 R1686 R1841 C1831 C1885 C1813 F1801 CN1801 C1828 Q1801 Q1803 C1832 Q1804 CN1802 C1827 Q1805 Q1807 C1833 C1891 R1855 R1857 R1813 R1820 X1681 C1850 R1858 R1844 C1808 C1830 C1886 R1886 C1854 R1812 C1852 C1855 IC1802 C1807 L1801 C1856 C1857 R1885 R1859 C1858 R1810 R1860 R1687 R1847 R1846 R1811 C1890 IC1881 R1883 R1884 R1848 R1809 X1801 R1856 R1849 6.D-IN1 8.D-IN2 9.+5V 5.GNDD(SEP) 7.GNDD(SEP) 8.GNDA 16.D-IN(COAX) 19-20.+5V CN1803 9.V+15V 1.SSPEND 2.USB PB 4.DEM STP 5.DEM RST CN1802 17-18.GNDD 2.D-OUT1 6.D-IN(USB) 8.D-IN(RF) 10.D-IN(OPT) (3P) (2P) 2.D-OUT1 4.D-OUT2 3.DEM LCK 1/2 CLK ERR CONTACT SIDE CONTACT SIDE 1.GNDD HCMK-P3X COAXIAL IN ASS'Y 14.D-IN(COAX) 12.D-IN(OPT) 3.GNDD(SEP) 4.D-OUT2 CN1801 7.V-15V 6.GNDA JA1802(2P) 15 1 4 5 8 JA1801(3P) 1 9 10 18 NP 1 80 30 51 31 100 50 81 1 7 8 22 21 28 1 14 2 1 3 4 1 9 1 9 1 20 14 1 7 8 SIDE A SIDE B SIDE A SIDE B G COAXIAL IN ASSY G COAXIAL IN ASSY G (ANP7418-A) (ANP7418-A) IC1804 IC1802 IC1803 Q1807 Q1805 Q1804 Q1804 Q1801 IC1881 IC1681 CN1701 E CN1801 CN1801 CN101 R CN1802 CN1802 CN2406 W CN1803 CN1803 Q1809 Q1802 Q1806 Q1808 IC1682 www. xiaoyu163. com QQ 376315150 9 9 2 8 9 4 2 9 8 TEL 13942296513 9 9 2 8 9 4 2 9 8 0 5 1 5 1 3 6 7 3 Q Q TEL 13942296513 QQ 376315150 892498299 TEL 13942296513 QQ 376315150 892498299 http://www.xiaoyu163.com VSX-45TX 69 5 6 7 8 5 6 7 8 C D F A B E 4.6 VIDEO ASSY CN901 R977 R925 C925 C924 C923 R941 R924 R948 R923 R958 R933 C949 R902 C969 C955 C970 C922 C937 R922 R955 R936 IC933 C960 C962 C973 C971 R982 R962 C948 R932 R964 R931 R901 C934 R934 C963 C974 C919 C965 C931 R919 R978 R903 R992 C954 R938 R937 C953 R916 R963 R965 C921 C958 R956 R957 C968 R961 R976 R960 R980 R959 IC931 C956 R954 R970 C957 C947 R904 R918 R981 R979 C967 R975 R994 R917 C940 R943 R999 R935 R991 C972 R993 C966 HCMK-P3X AWX V+5V VG VG V-5V FVC FVY FV HCMK-P3X 1 15 8002 8001 7962 2279-1 2279-2 SW3 SW4 SW5 SW2 OSD ON OSD IC932 24 13 8 16 9 1 12 1 9 1 8 16 C911 R913 C909 IC902 C913 C981 R905 R947 R940 R921 C916 C915 Q932 R968 R969 Q931 R914 Q901 C964 CN901 C946 R952 R949 C918 D901 D902 R967 C983 C959 C945 R953 R951 IC903 R920 C952 R998 R911 R950 R912 Q933 JA903 JA902 C902 JA901 C938 C944 R971 C943 R939 R973 R972 C951 C903 C904 C933 C941 C936 R974 JA904 C942 R966 C961 C939 R944 C906 R946 IC901 R942 R908 R907 C914 C920 C932 R910 C901 C912 C917 R906 R909 R945 C908 C905 C907 C935 C982 C910 R915 R926 JA905 V-5V VG VG FV FVY FVC SW5 SW4 OSD 2279-1 2279-2 OSD ON SW3 SW2 HCMK-P3X V+5V VIDEO ASS'Y 8 1 7 14 1 15 8 1 5 4 6 1 3 4 9 16 14 1 8 SIDE A SIDE B SIDE A SIDE B H VIDEO ASSY H VIDEO ASSY H (ANP7418-A) (ANP7418-A) IC902 IC903 IC933 IC931 IC932 Q933 Q932 Q931 Q901 IC901 CN2405 W CN901 CN901 www. xiaoyu163. com QQ 376315150 9 9 2 8 9 4 2 9 8 TEL 13942296513 9 9 2 8 9 4 2 9 8 0 5 1 5 1 3 6 7 3 Q Q TEL 13942296513 QQ 376315150 892498299 TEL 13942296513 QQ 376315150 892498299 http://www.xiaoyu163.com VSX-45TX 70 1 2 3 4 1 2 3 4 C D F A B E 4.7 MAIN CONTROL and RS232C ASSYS JA112 JA111 JA113 JA592 JA591 IC101 C117 IC201 Q601 CN101 C127 R126 R125 R127 C125 C126 R201 R202 R203 C201 C202 C203 C131 C132 C133 C134 C135 C136 C137 C138 IC102 C213 IC202 C211 C214 C212 C116 C621 C622 CN102 R137 R138 R135 R136 R143 R142 C205 C204 Q103 Q101 Q102 CN103 IC501 CN601 C602 R601 X501 C501 IC651 C653 C658 C659 C656 R652 R655 R654 R653 R671 R672 C657 C654 C655 R656 X651 R502 IC502 IC503 CN502 C540 C535 R553 R554 R555 R561 R539 R536 R537 R538 R560 R558 R559 R542 R535 R540 R541 R552 R521 R602 R603 R604 R605 R606 C660 C661 R556 C537 R551 C539 C531 C532 C533 R531 R532 R533 R534 R562 R557 C538 C534 C536 R529 CN3 C895 C894 Q652 Q651 Q653 R141 R608 CN201 C115 L651 C139 C140 J602 J603 J101 J601 IC511 R507 R506 CN1 R509 JA114 R545 R546 C118 TUNER 3.TUNER CLK 2.TUNER DI 1.TUNER CE CONTACT SIDE L CH 7734 7740 7737 7741 7744 7747 7745 FC 7730 AWK (FOR MR) 2.GNDA 12.TV/SAT 4.TV/SAT 7.SBR 14.V1/OUT 4.SL 3.FR 2.FL 1.C (PRE OUT) CN103 R CH MAIN CONTROL ASS'Y (AUDIO IN&OUT) 4.GNDU 5.MR MUTE CN201 3.RCH 11.V2/IN 7.MR CK 1.LCH 13.DVD/LD 8.TMUTE 5.SR PRODUCTION CODE DC CN601 CN102 CN101 6.MR DT 8.SW 9.AMUTE 6.SBL 1 15.V2/OUT 3.DVD/LD 2.V1/OUT 5.V2/IN 6.V1/IN 7.GNDA 8.GNDA 9.GNDA 10.V1/IN (EXT IN) 13.V+15 7.GNDA 8.GNDA 9.SL 10.C 11.FL 12.FR 1.V-15 2.SW 3.SBR 4.SBL 5.SR 6.GNDA 18.2596 SW4 19.2596 SW5 1. 12V Trig 2.(USB SSPEND) 3.(USB PB) 4.DEM LCK 5.DEM STP 11.OSD DT 10.OSD RST 9.OSD ON 8.4053 INH 7.4053 A 6.DEM RESET 17.2596 SW3 16.2596 SW2 15.2279 SW2 14.2279 SW1 13.OSD CS 12.OSD CLK 1.V2/OUT 4.TUNER DO 7.TL 6.TG 5.TR 9.STEREO 10.TUNED 11.+10V 12.FM COMP 13.TG(SEPA) A1 1 (4P) (6P) 1 11 12 22 23 33 34 44 1 14 15 28 15 1 4 5 8 1 4 5 8 13 1 9 1 80 81 100 16 1 9 8 16 9 16 9 1 19 D I P C B A 1 7 1 7 8 14 1 3 1 14 1 1 80 81 100 1 10 13 16 9 16 8 16 8 1 2 3 4 7 10 R1932 JA19 CN201 A CN601 CN1404 F CN103 CN1403 F CN102 CN502 CN101 CN201 CN1 W CN2413 W CN1402 F CN1401 F CN2415 W SIDE A J K MAIN CONTROL ASSY K IC101 Q601 Q601 IC651 IC102 IC201 IC503 IC502 IC511 Q1901 Q1931 IC1931 IC1932 IC202 Q651 Q102 Q101 Q103 Q652 www. xiaoyu163. com QQ 376315150 9 9 2 8 9 4 2 9 8 TEL 13942296513 9 9 2 8 9 4 2 9 8 0 5 1 5 1 3 6 7 3 Q Q TEL 13942296513 QQ 376315150 892498299 TEL 13942296513 QQ 376315150 892498299 http://www.xiaoyu163.com VSX-45TX 71 5 6 7 8 5 6 7 8 C D F A B E IC103 IC104 R151 C151 C154 C155 C156 C157 R161 R162 C782 C774 C778 C771 C772 IC704 C777 C781 C773 C742 C734 C731 C738 C732 C737 IC702 C733 C741 C762 C754 C758 C751 C752 IC703 C757 C761 C753 R766 R767 R765 R727 R725 R726 C722 C714 C711 C718 C702 C712 C717 IC701 C701 C713 C721 C725 C727 C726 C765 C766 C767 R746 R747 C747 C746 C745 R745 C785 IC501 CN552 C511 C503 C504 R501 X501 C508 C821 R832 C502 C501 C506 C505 R565 R502 C502 R573 R574 R521 CN3 R531 R532 R533 R534 R529 CN351 CN302 CN2 CN501 CN551 CN301 CN801 C513 IC511 R505 C303 C599 R567 R566 R509 C598 C748 C749 C768 C769 C788 C789 C304 TO DISPLAY TO AMP CN801 7747 7745 FC FOR FLASH 8.SHIELD 7.MRIN 6.V+5.6 5.GNDU 4.232C DET 3.232C CTS 2.232C RXD 1.232C TXD FOR 232C CN551 ODUCTION CODE HCMK-P3X 8.SL GND DC 4.SBL GND 5.SR 1.SBR 2.SBR GND 3.SBL 6.SR GND 19.V+5.6 9.C 18.AMUTE 10.C GND 12.FR GND 13.FL 14.FL GND 15.V-15 16.DCDET 17.OLDET 11.FR 7.SL 20.TEMP 10.MIC 23.GNDU 22.FAN STOP 5.V-15 21.LO FAN 18.OPT 5V 17.OPT 16 OPT GND 14.FV C 13.FV Y 12.F VIDEO 15.232C DET 24.FANDRV 4.V+15 3.SR OUT 6.FV_LCH 2.RMC 7.GNDA 8.FV_RCH 28.GNDU 11. V+5.6 26.AC RY 32.FL AC2 31. FL AC1 30.VF 29.GNDU 9.ST 5.6 1.SR IN 16.DSP2 RST 24.DISP RST 25.1W WUP 1.V-15V 21.DSDM 20.MUTE 19.D_MUTE 18.DSP MODE2 17.DSP2 CS 2.V+15V 3.V+5.6 4.NC 5.ST+5.6 6.WAKE UP 7.TG 8.V+12 9.GNDU 1.OPT 5V 2.OPT 3.OPT GND 4.FV C 15.DSP2HREQ 27.MR IN 5.FV Y 6.F VIDEO 7.FL AC2 8.FL AC1 23.DISP RDY 22.DISP CLK 21.DISP DO 20.DISP DI 19.DISP EN 9.VF 14.DSP DO 3.1394 CK 11.DSP MODE1 12.DSP DI 4.1394 RST 13.DSP CLK 3.DIR DTO 2.DIR CS 1.DIR RST 7.1394 INT 6.1394 DO 5.1394 DI 4.DIR+DAC CLK 10.DSP1 CS 9.DSP1HREQ 8.DSP1 RST 7.DAC+ADC RST 6.DIR ERR 5.DIR+DAC DTI 2.1394 CS 18.2596 SW4 19.2596 SW5 1.GND CN301 DSP(AUDIO) 21.GND 20.ALOUT 19.GND 18.AROUT 17.GND 16.FL 15.GND 14.FR 13.GND 12.C 11.GND 10.SW 9.GND 8.SL 7.GND 6.SR 5.GND 4.SBL 3.GND 2.SBR 1.GND CN501 CONTACT SIDE CONTACT SIDE CONTACT SIDE CONTACT SIDE 28 15 14 1 16 9 8 1 24 13 12 1 13 24 1 12 24 13 12 1 24 13 12 1 1 30 51 80 31 50 81 100 19 1 21 1 9 1 8 1 21 1 1 7 8 14 1 30 51 80 31 50 81 100 1 10 9 1 7 1 10 20 30 32 1 10 20 24 1 2 8 1 4 1 6 5 9 JA1921 IC1932 Q1931 W1907 R1932 W1905 W1903 C1933 CN1902 W1906 Q1901 CN1903 L1901 C1901 CN1901 W1904 C1932 1901 W1901 W1902 IC1931 JA1922 C1903 C1905 C1906 C1904 C1910 +UNREG TYPE +12/ON NC RS-232C RS232C 12VT GND 4 CAUTION REPLACE NO. 491.125, FOR IC1932 MFD. BY LITTELFUSE INC. WITH SAME 1. MR 4. ASSY 1. 8. 232CTXD 232CRXD 232CCTS 232CDET GNDU V+5.6 MRIN SHLD CMK-P3X AWX7966 1 8 1 CN601 For Flash R CN301 CN552 CN4001 O CN801 CN2412 W CN3 CN3006 S CN501 CN2 CN302 CN351 CN2414 W CN2410 W CN551 CN1902 CN2411 W 3 CN2403 VSX-45TX ONLY W CN1903 SIDE A J K RS232C ASSY J ROL ASSY (ANP7418-A) (ANP7420-B) IC511 IC501 IC104 IC103 IC704 IC703 Q1901 31 31 32 IC702 IC701 www. xiaoyu163. com QQ 376315150 9 9 2 8 9 4 2 9 8 TEL 13942296513 9 9 2 8 9 4 2 9 8 0 5 1 5 1 3 6 7 3 Q Q TEL 13942296513 QQ 376315150 892498299 TEL 13942296513 QQ 376315150 892498299 http://www.xiaoyu163.com VSX-45TX 72 1 2 3 4 1 2 3 4 C D F A B E CN552 CN3 CN351 CN302 CN2 CN501 CN551 CN301 CN801 R152 R153 C152 C153 R154 C780 R776 C784 R774 R775 IC714 C783 R773 C779 C740 C744 R734 R736 R735 C743 IC712 R733 C739 C760 R756 C764 R754 R755 IC713 C763 R753 C759 C720 C724 R714 R716 R715 C723 IC711 R713 C719 C787 C786 R786 R785 R787 R511 R512 C512 D511 C510 D822 D832 C831 D501 R504 C509 L501 R503 C507 D821 R821 R831 D831 IC302 D521 D522 D523 D524 R599 R571 R572 R575 R576 R577 C302 R351 R352 R353 R354 R355 R356 R311 R312 R313 R314 R315 R316 R317 R318 R319 R320 R321 R322 R323 R324 R325 R326 R327 R328 R329 R330 R523 R524 R525 R526 R522 R527 R528 Q511 Q501 R598 R331 R357 R578 R580 C515 R579 R513 R358 C514 1 8 8 8 8 1 1 1 1 9 1 9 1 20 10 10 1 1 24 30 20 32 V-15 V+15 GNDA GNDA HCMK-P3X 10 1 1 10 1 7 1 21 1 21 11 20 1 8 9 16 C1935 C1902 C1921 R1904 C1936 C1909 C1907 C1931 C1911 R1931 R1906 R1907 R1905 R1910 R1908 R1909 R1933 D1902 D1901 D1921 Q1932 C1934 IC1901 R1911 R1921 QUE LA N'UTILISER REFERENCE 232CDET +12/ON +UNREG 9 GND 5 6 NC 8. 232CRXD 232CTXD CN1902 1. V+5.6 232CCTS MRIN SHLD 1 GNDU DE CHEZ LITTELFUSE INC. 491.125 IC1932 EN CAS DE REMPLACEMENT DES FUSIBLES IC 1932 ATTENTION 8 1 CN1902 4 1 1 8 9 16 CN301 CN801 CN501 CN351 CN552 CN551 CN2 CN3 CN302 CN1902 VSX-45TX ONLY CN1903 SIDE B J K RS232C ASSY J MAIN CONTROL ASSY K (ANP7420-B) IC714 IC302 Q511 Q501 IC713 IC712 IC711 IC1932 IC1901 Q1932 www. xiaoyu163. com QQ 376315150 9 9 2 8 9 4 2 9 8 TEL 13942296513 9 9 2 8 9 4 2 9 8 0 5 1 5 1 3 6 7 3 Q Q TEL 13942296513 QQ 376315150 892498299 TEL 13942296513 QQ 376315150 892498299 http://www.xiaoyu163.com VSX-45TX 73 5 6 7 8 5 6 7 8 C D F A B E CN101 CN102 CN103 CN601 CN502 CN351 CN201 CN1 C619 C101 R101 R102 C102 C103 R103 C104 R104 C105 C106 C107 R105 C108 R106 C109 C110 C111 R107 C112 R108 C113 R109 C114 R110 R111 R112 R113 R114 R115 R116 R117 R118 R119 R120 R121 R122 R123 R124 C129 C128 R131 R133 R134 R132 R139 R140 R217 R213 R211 R218 R214 R212 R215 R216 R154 R622 R621 C620 C251 R252 R251 D511 D601 R607 C601 C510 D822 D832 C831 D501 D821 R821 R831 D831 C651 C652 C623 R581 R582 R583 R584 R594 R595 R585 R586 R596 R587 R588 R589 R590 R591 R592 R593 R351 R352 R353 R354 R355 R523 R524 R525 R526 C123 Q251 L895 C662 R598 C515 C896 L894 L893 L892 L891 C663 C122 R508 R570 C891 C892 C893 R547 R548 9 1 GNDA GNDU GNDT HCMK-P3X 1 15 1 13 1 13 1 19 1 1 7 1 3 CN601 CN103 CN102 CN101 CN201 CN1 351 CN502 SIDE B J K (ANP7418-A) 20-B) Q251 Q601 1 www. xiaoyu163. com QQ 376315150 9 9 2 8 9 4 2 9 8 TEL 13942296513 9 9 2 8 9 4 2 9 8 0 5 1 5 1 3 6 7 3 Q Q TEL 13942296513 QQ 376315150 892498299 TEL 13942296513 QQ 376315150 892498299 http://www.xiaoyu163.com VSX-45TX 74 1 2 3 4 1 2 3 4 C D F A B E 4.8 MIC & F. OPT IN, MIC AMP and DSP CONNECTION ASSYS J1601 CN1601 CN1602 JA1601 C1603 JA1606 MIC & F.OPT ASS'Y 3.MIC SW 4.OPT 5V 2.OPT G 1.GND SHIELD HCMK-P3X 2.GNDA 3.MIC 1.OPT 1 4 RZ 1 2 3 R1663 R1662 R1661 R1660 R1659 CN1654 IC1653 C1653 C1651 CN1652 R1670 R1669 R1667 R1666 CN1651 CN1653 IC1651 R1676 R1675 R1665 R1664 1394 RST 1394 CK 1394 CS 1394 DI DRET NC DSP CONNECTION ASS'Y 1394 DO DRET D5V HCMK-P3X D5V V1394 V1394 ARET G ARET DRET OPT IN DSP DO DSP CLK DSP DI DSP M1 DSP1 RST DSDM MUTE D_MUTE DSP M2 DSP2 CS DSP2 RST DSP2 HREQ A5V A5V -15V -15V G G +15V +15V G DIR CS DT OUT CLK DT IN DIR ERR AD RST DSP1 HREQ 1394 INT G G NC DIR RST DSP1 CS 1 10 11 20 17 1 50 25 26 1 10 11 20 1 17 1 1 17 CN4751 C4755 C4756 C4757 R4756 KN4751 IC4751 C4751 C4752 CN4752 4.MIC OUT 3.GNDA 2.V-15 1.V+15 2.GNDA 3.MIC IN 1.GND SHIELD MIC AMP ASS'Y HCMK-P3X B1 1 4 1 2 3 SIDE A L M N DSP CONNECTION ASSY N MIC AMP ASSY M MIC & F.OPT IN ASSY L (ANP7418-A) (ANP7418-A) (ANP7418-A) CN2409 W CN1654 CN2408 W CN1653 CN2407 W CN1652 J3008 S CN4752 CN3004 S CN102 R CN1601 CN1602 CN4751 CN1651 VSX-45TX ONLY IC4751 IC1651 IC1653 www. xiaoyu163. com QQ 376315150 9 9 2 8 9 4 2 9 8 TEL 13942296513 9 9 2 8 9 4 2 9 8 0 5 1 5 1 3 6 7 3 Q Q TEL 13942296513 QQ 376315150 892498299 TEL 13942296513 QQ 376315150 892498299 http://www.xiaoyu163.com VSX-45TX 75 5 6 7 8 5 6 7 8 C D F A B E CN1654 CN1652 CN1653 R1657 R1672 R1654 R1653 R1652 R1651 R1658 R1673 R1668 R1674 R1671 R1656 R1655 L1651 L1652 G G 17 DSP M1 DSP DI DSP CLK DSP DO DSP2 HREQ G OPT IN 1 DT OUT 1394 DI 1394 RST 1394 CK 1394 CS DIR CS DIR RST NC NC 1394 INT 1394 DO G G 17 DSP2 CS CLK DT IN DIR ERR AD RST DSP1 RST G +15V AWX8024 1 +15V 17 DSP2 RST ARET V1394 V1394 D5V D5V DRET DRET -15V -15V A5V A5V ARET DRET 1 HCMK-P3X DSP1 CS DSP1 HREQ DSDM MUTE D_MUTE DSP M2 MIC & F.OPT ASS'Y CN1601 CN1602 C1613 C1614 R1609 C1611 C1612 L1603 L1602 C1601 C1602 L1601 R1601 R1607 R1608 C1606 C1607 1.SHIELD 2.GNDA 3.MIC HCMK-P3X 7981 AWX 4 1 1 R4754 CN4751 CN4752 D4751 R4752 R4753 R4755 R4757 R4751 C4754 C4753 C4763 C4764 IC4752 C4765 C4761 C4762 R4761 D4752 C4758 AWX8004 HCMK-P3X 1 3 1 4 5 8 1 4 SIDE B L M N DSP CONNECTION ASSY N MIC AMP ASSY M MIC & F.OPT IN ASSY L (ANP7418-A) (ANP7418-A) (ANP7418-A) CN1654 CN1653 CN1652 CN4752 CN1601 CN1602 CN4751 VSX-45TX ONLY www. xiaoyu163. com QQ 376315150 9 9 2 8 9 4 2 9 8 TEL 13942296513 9 9 2 8 9 4 2 9 8 0 5 1 5 1 3 6 7 3 Q Q TEL 13942296513 QQ 376315150 892498299 TEL 13942296513 QQ 376315150 892498299 http://www.xiaoyu163.com VSX-45TX 76 1 2 3 4 1 2 3 4 C D F A B E 4.9 POWER AMP IN ASSY C4002 R4010 D4001 C4001 R4003 R4002 R4001 Q4001 R4004 R4009 8.F.FANSTOP 1.F.FAN+ 3.F.FANSTOP 2.F.FAN- 1.VH- 7.FANSTOP AWX AWX**** AWX7982 24.SBR 23.GNDSBR 22.SBL 21.GNDSBL 6.FANDRV 5.GNDU 20.SR 19.GNDSR 18.SL 17.GNDSL 16.C 15.GNDC 14.FR 13.GNDFR 12.FL 11.GNDFL 10.V-15 9.DCDET 8.OLDET 7.AMUTE 6.V+5.6 5.TEMP 4.LOFAN 11.V+5V 1.SBL 2.GNDSBL 3.SL 4.GNDSL 5.FL 3.FANSTOP 2.GNDU 6.GNDFL 7.DCDET 1.FANDRV 8.OLDET CN4001 10.TEMP 19.NC(GND) 18.SBR 17.GNDSBR 16.SR 15.GNDSR 14.FR 13.GNDFR 12.C 11.GNDC 10.DCDET 9.OLDET 8.AMUTE 7.NC 6.VH- 5.VH- 4.VHGND 9.AMUTE 12.VH- 13.VH- 14.VHGND 15.VHGND 16.VH+ 17.VH+ (J12) 3.VHGND 2.VH+ 1.VH+ CN4002 CN4003 2.VHGND 4.LOFAN 3.VH+ 9.F.FAN- 10.F.FAN+ CMK-P3X POWER AMP IN ASS'Y WARNING THIS PRODUCT CONTAINS LEAD IN SOLDER AND CERTAIN ELECTRICAL PARTS CONTAIN CHEMICALS WHICH ARE KNOWN TO THE STATE OF CALFORNIA TO CAUSE CANCER, REPRODUCTIVE HARM. HEALTH & SAFETY CODE BIRTH DEFECTS OR OTHER SECTION 25249.6 - PROPOSITION 65 1 24 1 19 1 17 10 1 1 3 1 24 1 19 1 17 1 10 1 3 CN4001 CN4002 CN4003 J12 W4014 W4003 W4012 W4001 W4013 W4008 W4009 W4010 W4007 W4011 W4006 W4005 W4002 W4004 CN4004 W4015 1 2.F.FAN- 3.F.FANSTOP 10.F.FAN+ AWX7982 17.VH+ 12.VH- 15.VHGND 2.VHGND 14.VHGND 10.TEMP 6.FANDRV (J12) CN4003 19.NC(GND) 18.SBR 17.GNDSBR 16.SR 15.GNDSR 14.FR 13.GNDFR 12.C 11.GNDC 10.DCDET 9.OLDET 8.AMUTE 7.NC 6.VH- 5.VH- 4.VHGND 3.VHGND 2.VH+ 1.VH+ CN4002 24.SBR 23.GNDSBR 22.SBL 21.GNDSBL 20.SR 19.GNDSR 18.SL 17.GNDSL 16.C 15.GNDC 14.FR 13.GNDFR 12.FL 11.GNDFL 10.V-15 9.DCDET 8.OLDET 7.AMUTE 6.V+5.6 5.TEMP 4.LOFAN 3.FANSTOP 2.GNDU 1.FANDRV CN4001 4.GNDSL 2.GNDSBL 7.FANSTOP 16.VH+ 13.VH- 7.DCDET 11.V+5V 4.LOFAN 9.AMUTE 8.OLDET 1.VH- 3.SL 5.GNDU 1.SBL 5.FL 6.GNDFL 3.VH+ 8.F.FANSTOP 9.F.FAN- 1.F.FAN+ CMK-P3X 4001 POWER AMP IN ASS'Y 24 1 19 1 17 1 10 1 3 SIDE A SIDE B SIDE A SIDE B O POWER AMP IN ASSY O POWER AMP IN ASSY O (ANP7419-B) CN4054 P J12 FAN MOTOR (FRONT) CN4004 (ANP7419-B) J12 CN4004 CN4401 X CN4003 CN4402 Y CN4002 CN801 K CN4001 CN4003 CN4002 CN4001 Q4001 www. xiaoyu163. com QQ 376315150 9 9 2 8 9 4 2 9 8 TEL 13942296513 9 9 2 8 9 4 2 9 8 0 5 1 5 1 3 6 7 3 Q Q TEL 13942296513 QQ 376315150 892498299 TEL 13942296513 QQ 376315150 892498299 http://www.xiaoyu163.com VSX-45TX 77 5 6 7 8 5 6 7 8 C D F A B E 4.10 FAN DRIVE and FAN CONNECTION ASSYS J4701 CN4702 CN4701 HCMK-P3X 9 1 3 1 R4064 D4051 D4052 D4053 D4054 D4055 D4057 C4053 R4051 R4052 R4053 R4054 R4055 R4056 R4061 R4062 Q4052 Q4053 Q4056 Q4055 R4063 D4059 D4058 1 AWX8135 AWX7976 1.VH- 2.VHG 3.VH+ 4.REGB 5.REGG 6.REGB 7.R.FANSTOP 8.R.FAN- 9.R.FAN+ 9 1 10 IC4702 IC4701 J4701 CN4702 CN4701 9.FAN+ 8.FAN- 7.FANSTOP 5.REG G 6.REG B 4.REG B 3.+VH 2.VHG 1.-VH 5.REG G 6.REG B 4.REG B 3.+VH 2.VHG 1.-VH 3.FANSTOP 2.FAN- 1.FAN+ FAN CONNECTION ASS'Y N'UTILISER QUE LA REFERENCE IC4701 ET IC4702 ATTENTION FOR IC4701 AND IC4702 MFD.BY LITTELFUSE INC. REPLACE WITH SAME TYPE NO.491.200 CAUTION EN CAS DE REMPLACEMENT DES FUSIBLES 491.200,DE CHEZ LITTELFUSE INC. HCMK-P3X 9 1 1 6 1 3 1 2 9 1 2 10 W4055 CN4051 CN4054 C4056 C4055 C4051 C4052 C4054 R4057 R4058 Q4051 Q4054 W4053 W4054 W4056 W4051 W4052 J4701 DRIVE FAN+ 1.VH- 2.VHG 3.VH+ 4.LOFAN 7.FANSTOP 5.GNDU 6.FANDRV 6.REGB 4.REGB 5.REGG 3.VH+ 2.VHG 1.VH- CMK-P3X 7.R.FAN 10.F. 9.F. 8.F. 8.R.FAN- 9.R.FAN+ J12 STOP CN4051 FAN- FANSTOP CN4054 FAN 10 ASSY 1 9 1 E B SIDE A SIDE B SIDE A SIDE B P Q FAN DRIVE ASSY P FAN CONNECTION ASSY Q FAN CONNECTION ASSY Q J4701 (ANP7419-B) (ANP7418-A) (ANP7418-A) J4701 CN4701 CN4702 CN4702 J12 O CN4054 CN4051 FAN DRIVE ASSY P (ANP7419-B) CN4054 CN4051 J2201 AC CN4701 Q4054 Q4052 Q4055 Q4056 Q4051 Q4054 IC4701 IC4702 www. xiaoyu163. com QQ 376315150 9 9 2 8 9 4 2 9 8 TEL 13942296513 9 9 2 8 9 4 2 9 8 0 5 1 5 1 3 6 7 3 Q Q TEL 13942296513 QQ 376315150 892498299 TEL 13942296513 QQ 376315150 892498299 http://www.xiaoyu163.com VSX-45TX 78 1 2 3 4 1 2 3 4 C D F A B E 4.11 DSP ASSY IC701 L571 IC201 L203 C210 C209 R219 R217 R563 R566 IC302 C208 R218 R220 L102 L101 C106 R221 C203 C204 C205 L201 L202 C201 C202 C207 C206 C701 IC301 C323 R324 R718 IC304 CN702 C340 C339 R302 R303 L305 R304 R451 R305 C338 C337 L302 L303 C334 C333 C304 C302 C309 C329 C319 C321 C318 C316 C314 C312 C308 C306 L301 C325 C326 C330 L304 X201 X301 R207 R209 R208 C104 C105 C341 L701 C335 CN101 R327 R326 R325 R330 R329 C343 R224 R702 R210 C211 C212 R227 R350 C346 C345 IC305 C348 L306 CN701 R713 R311 R312 R315 R316 R555 R354 D702 L551 C693 CN102 L907 L906 L904 C901 C902 R911 R912 R913 R905 R908 C303 C301 R101 R102 R104 R103 R706 R707 R716 R717 R301 R306 R307 R308 R309 R310 R729 R341 R328 R335 R506 R715 C698 L541 C324 IC471 C668 R670 R824 R747 IC661 C664 C662 C666 R666 R672 R668 R664 R662 CN601 C906 C907 C909 L451 L471 L401 L402 C681 C682 D681 R691 R692 D682 R689 R690 C667 C648 C647 C628 C627 C608 C607 C665 R667 R665 R669 R671 R661 C661 R663 C663 C626 R628 IC621 R626 R630 R632 R622 C622 R624 C624 C625 R627 R625 R629 R631 R621 C621 R623 C623 C112 R693 R972 R971 C562 R681 R682 C401 C471 R823 D971 Q684 Q683 Q972 Q971 KN931 R213 R504 R561 R565 C315 C551 L521 R318 R231 R343 C310 R351 R724 R353 R344 R323 C307 R431 R360 L501 C678 R737 R334 R322 IC561 R348 R705 C697 C351 R558 R411 R822 R557 R347 R556 R340 R901 R521 IC901 L503 C311 C695 R564 L561 R522 C923 R584 C561 C521 C502 C542 C687 C685 L531 C613 C694 R212 C111 R345 R320 L511 R583 C522 C921 C110 IC521 D721 R361 C352 R313 R331 IC306 C677 C122 R319 R726 C121 C305 R352 R342 R430 C322 R333 C925 R346 R355 R332 C924 C109 R349 DSP2-DAC IECK IERT ARET OUT2 BICK BICK GND ERR DATA TCK GNDD IN5 GND D5G DRDO DRRT CS ADRT CLK GND E88558(S) +15V V1394 GND GND GND +15V -15V -15V JTAG DIN DSD1 DA0 GND DSCK DOUT GNDD TDI LRCK TDO GND LRCK IECS V1394 IEDI A5V D5V FRO D5G GND GND DA1 DA3 GND IN2 D5V LRCK GND GND GNDD AWX DATA3 FLO DATA IECLK 8016 GND D5V ALIN IC701-DSP1 D2CS DA2 DSCK DATA2 DSP1-DSP2 DATA1 1 D1CS TMS DSP 1.8V DSP3.3V 1 GND AD 5V IEDO DRET IEDI D5V D5V IECS IEBCK D1RT D1RQ POWER GND GND DATA0 1 OUT1 IEIT IEMCK DSDI DSD3 IELCK IFDT DSDM ICDT DSD2 IEIT SWO ISDT GND GND IEDO IBDT SPDIF D1MD IN6 ARIN GND MUTE SBRO SBLO GND GND GND ARET D5V GND SRO 3.3V GND DRET GND DGND GND A5V SLO DSDO GND DSD5 D2MD IN3 IN4 GND DSD4 IERST D2RT CO IN1 BUSY BICK DSD6 GND DMUTE MCK MCK 9 8 1 16 1 12 13 24 25 36 37 48 44 23 22 1 144 109 108 73 72 37 36 1 14 8 7 1 10 1 20 1 8 5 4 1 22 1 26 50 1 25 21 1 9 8 1 16 OUT GND IN 1 10 11 20 8 5 4 1 08 01 R710 R711 02 R701 R712 R204 R714 Q702 R769 R723 Q701 R768 R770 D701 R771 SIDE A R DSP ASSY R (ANP7441-A) CN1651 N CN102 CN1802 G CN101 CN701 CN702 CN301 K CN601 IC661 Q972 Q971 IC561 IC901 IC521 IC621 IC471 IC302 IC305 IC301 IC304 • This diagram has four layers. In the two middle layers, mainly Vcc and GND are connected. IC701 IC201 IC306 www. xiaoyu163. com QQ 376315150 9 9 2 8 9 4 2 9 8 TEL 13942296513 9 9 2 8 9 4 2 9 8 0 5 1 5 1 3 6 7 3 Q Q TEL 13942296513 QQ 376315150 892498299 TEL 13942296513 QQ 376315150 892498299 http://www.xiaoyu163.com VSX-45TX 79 5 6 7 8 5 6 7 8 C D F A B E CN702 CN101 CN701 IC101 R708 R201 C696 R559 IC303 R709 R710 R711 C102 C103 R216 C332 C331 R851 R202 C101 C107 R703 R704 R225 R226 R229 R701 R712 R803 R852 R204 R714 R421 C503 C501 IC501 R230 R105 R106 C705 C615 C683 R552 R554 R553 IC401 Q621 R428 R501 IC451 C418 C452 C451 C424 C426 C422 C420 C416 C414 C412 C406 C402 R404 R402 L705 C410 C408 C404 R674 R678 R676 C670 R680 C908 IC681 R683 R685 R687 R686 R688 R684 R675 C669 R679 R677 R673 R656 C650 R660 R658 R654 R655 C649 R659 R657 R653 R636 C630 R640 R638 R634 R635 C629 R639 R637 R633 C610 R616 R620 R618 R614 C609 R615 R619 R617 R613 C646 R648 IC641 R646 R650 R652 R642 C642 R644 C644 C645 R647 R645 R649 R651 R641 C641 R643 C643 R608 C606 C604 IC601 R604 C602 R602 R612 R610 R606 C605 R607 R609 R611 C603 R605 R601 C601 R603 R405 C706 R974 R973 R977 R976 C971 R975 C429 R401 C428 R403 R932 C932 D972 Q973 Q974 C425 C421 C415 C413 C411 C407 C405 C672 C417 C419 Q682 C423 Q681 C403 R409 R418 R410 R419 R420 C611 C671 R503 IC706 R560 C903 R749 R422 R423 Q601 IC541 D101 R755 R505 R562 C614 C689 R772 R433 R551 Q702 R902 C684 R502 C591 L706 R769 R542 R723 R425 IC503 R586 R587 Q701 R214 C427 R694 R773 R541 C541 R582 R590 R588 R510 R429 R732 Q641 IC902 C409 R427 R768 Q661 R770 D701 R774 R903 R756 C612 C313 D102 R978 R513 IC705 R581 R443 R442 R444 R424 R511 R591 D103 R512 L104 D104 L103 R771 R441 L502 C922 L403 R720 a a TDO JTAG TDI TCK SBR L R SW C SL SBL SR TMS E88558(S) 9 8 1 16 1 16 17 32 1 10 11 20 144 109 108 73 72 37 36 1 44 23 22 1 1 10 11 20 OUT GND IN 8 5 4 1 8 4 1 8 5 4 1 5 4 3 1 5 4 3 1 1802 01 CN701 CN702 d. • This diagram has four layers. In the two middle layers, mainly Vcc and GND are connected. SIDE B R DSP ASSY R (ANP7441-A) IC303 IC681 IC601 IC611 IC541 IC902 IC501 IC503 Q682 Q681 Q601 Q621 Q641 Q661 Q974 Q973 IC451 IC401 IC706 IC705 IC101 Q701 Q702 www. xiaoyu163. com QQ 376315150 9 9 2 8 9 4 2 9 8 TEL 13942296513 9 9 2 8 9 4 2 9 8 0 5 1 5 1 3 6 7 3 Q Q TEL 13942296513 QQ 376315150 892498299 TEL 13942296513 QQ 376315150 892498299 http://www.xiaoyu163.com VSX-45TX 80 1 2 3 4 1 2 3 4 C D F A B E 4.12 DISPLAY, VOLUME, MULTI JOG and HEADPHONE ASSYS 1 11 7 1 48 58 62 4 1 3 1 X3000 IC3002 D3001 C3008 W3569 C3012 S3013 S3001 S3004 S3007 S3010 S3014 S3002 S3005 S3008 S3011 S3016 S3017 W3503 W3575 W3566 CN3001 3003 W3522 W3510 W3540 W3563 W3570 W3568 W3562 W3560 W3502 W3541 W3539 W3548 W3527 W3523 W3531 W3525 W3513 W3547 W3530 W3574 W3576 W3544 W3543 W3542 W3524 W3567 W3508 W3545 W3564 W3565 W3504 W3505 W3571 W3561 W3529 W3573 W3526 W3501 W3520 W3521 W3572 W3506 W3546 W3511 W3549 W3512 W3509 CN3 W3528 W3507 CN3007 UGND DIS UGND 1.UCOM5V 4.INPUT/R 5.KEY5 6.P-SW1 7.P-SW2 2.UGND 3.INPUT/L 11.NECK 8.RY_C/S 9.RY_HP 10.RY_A 4.HP_R 5.HP_L 3.UGND 1.P-SW1 2.P-SW2 6.AC_RY 7.RY_SB 2.HP_L 3.HP_R 1.HP_SW U5.6V UGND UGND UGND U5.6V U5.6V U5.6V U5.6V Vf 121.00 125.00 UGND VDDUGND UGND U5.6V J3003 J3000 1 2 7 1 3 1 2 3 4 1 3 KN1951 1951 CN1951 H.P ASS'Y 1.HPR 3.HPSW 2.HPL CONTACT SIDE CMK-P3X CN3451 3452 S3453 S3454 S3455 S3452 S3451 W3453 W3451 W3452 W3455 W3454 MULTI JOG ASS'Y 3.MSW1 2.NC 1.MSW2 1.U+5V 2.UG 3.INPUT/L 4.INPUT/R 5.KEY5 6.MSW1 7.MSW2 1 CODE PRODUCTION 7 1 1 3 1 L CN3007 SIDE A S U V HEADPHONE ASSY V MULTI JOG ASSY U DISPLAY ASSY S (ANP7420-B) (ANP7420-B) IC3002 CN3451 CN1951 CN2002 AG CN3001 J3003 www. xiaoyu163. com QQ 376315150 9 9 2 8 9 4 2 9 8 TEL 13942296513 9 9 2 8 9 4 2 9 8 0 5 1 5 1 3 6 7 3 Q Q TEL 13942296513 QQ 376315150 892498299 TEL 13942296513 QQ 376315150 892498299 http://www.xiaoyu163.com VSX-45TX 81 5 6 7 8 5 6 7 8 C D F A B E 1 32 5 1 7 1 1 4 1 4 1 C3028 CN3006 3002 S3000 S3003 S3006 S3009 S3012 S3001 S3015 C3027 C3026 C3023 C3022 C3021 C3020 C3029 CN3005 V3000 W3577 W3581 W3548 W3518 W3558 W3513 W3547 W3578 W3515 W3580 W3532 3008 W3555 W3538 W3534 W3552 3001 W3537 W3517 W3536 W3553 W3535 W3533 W3556 D3011 C3035 W3559 W3557 W3511 W3579 W3550 W3549 W3551 3512 CN3004 D3000 W3514 W3519 W3516 3.AGND 1.V+15 4.MIC U5.6V -15V ASS'Y DISPLAY +15V 3.F_VIDEO 2.FV_C 1.FV_Y 4.AGND 5.FV_L 6.AGND 7.FV_R 5.KEY4 3.VOL- 4.VOL+ 3.DG 1.D+5V 4.OPT 2.MICSW 2.UGND 1.UCOM+5V 5.6V 2.V-15 5 10 15 20 25 30 GND GND U5.6V 121.00 125.00 U5.6V J3008 J3002 CMK-P3X 32.FL AC2 31.FL AC1 30.VF 29.UGND 28.UGND 27.MR IN 26.AC RY 25.1W W.UP 24.DISP_RST 23.DISP_RDY 22.DISP_CK 21.DISP_DO 20.DISP_DI 19.DISP_CS 18.OPT5V 17.OPT 16.OPTG 15.232C DET 14.FV_C 13.FV_Y 12.F VIDEO 11.U+5.6V 10.MIC 9.ST+5.6V 8.FV_R 7.AGND 6.FV_L 5.V-15 4.V+15 3.SR OUT 2.RMC 1.SR IN 1 5 3 4 CN3401 S3404 S3402 S3403 S3401 W3403 W3402 W3401 CN4611 VOLUME ASS'Y 1.U+5V 2.UG 3.VOL- 4.VOL+ 5.KEY4 +5V 1 5 CN1501 D CN3005 CN1601 L CN3004 S T V SIDE A VOLUME ASSY T E ASSY (ANP7421-A) (ANP7420-B) 7420-B) J3002 CN4752 M J3008 CN501 K CN3006 CN3401 www. xiaoyu163. com QQ 376315150 9 9 2 8 9 4 2 9 8 TEL 13942296513 9 9 2 8 9 4 2 9 8 0 5 1 5 1 3 6 7 3 Q Q TEL 13942296513 QQ 376315150 892498299 TEL 13942296513 QQ 376315150 892498299 http://www.xiaoyu163.com VSX-45TX 82 1 2 3 4 1 2 3 4 C D F A B E CN3006 CN3005 CN3004 J3008 J3002 L3000 D3009 C3001 C3000 R3003 R R3006 R3009 R3012 R3015 R3026 R3062 R3061 R3063 R3060 C3024 R3058 R3059 R3057 R3056 R3055 R3054 R3044 C3025 R3065 R3066 C3036 R3067 R3068 R3064 R3069 C3034 C3033 Q3004 6.FV_L 1 4.MIC 2.V-15 3.AGND 1.V+15 DISPLAY ASS'Y 3.DG 1.D+5V 4.OPT 2.MICSW 7.FV_R 6.AGND 5.FV_L 1.FV_Y 2.FV_C 3.F_VIDEO 4.AGND 2.RMC 7.AGND 8.FV_R 11.U+5.6V 12.F VIDEO 13.FV_Y 14.FV_C 21.DISP_DO 20.DISP_DI 22.DISP_CK 24.DISP_RST 25.1W W.UP 27.MR IN 16.OPTG 26.AC RY 23.DISP_RDY 19.DISP_CS 28.UGND 18.OPT5V 17.OPT 15.232C DET 31.FL AC1 32.FL AC2 29.UGND 30.VF 10.MIC 9.ST+5.6V 4.V+15 3.SR OUT 5.KEY4 4.VOL+ 3.VOL- 2.UGND 1.UCOM+5V 5.V-15 1.SR IN 6 U5.6V U5.6V U5.6V U5.6V U +15V -15V CMK-P3X 1 10 20 30 32 5 1 7 1 1 1 4 4 1 C3402 C3401 R3401 R3402 R3403 R3404 7971 AWX +5V 5.KEY4 4.VOL+ 3.VOL- 2.UG 1.U+5V VOLUME ASS'Y CMK-P3X R1951 ASS'Y R CN3005 CN3004 SIDE B S T V VOLUME ASSY T HEA V DISPLAY ASSY S (ANP7420-B) Q3004 J3002 J3008 CN3006 CN3401 www. xiaoyu163. com QQ 376315150 9 9 2 8 9 4 2 9 8 TEL 13942296513 9 9 2 8 9 4 2 9 8 0 5 1 5 1 3 6 7 3 Q Q TEL 13942296513 QQ 376315150 892498299 TEL 13942296513 QQ 376315150 892498299 http://www.xiaoyu163.com VSX-45TX 83 5 6 7 8 5 6 7 8 C D F A B E CN3001 C CN3007 J3003 C3037 R3099 C3006 R3002 C3002 R3030 C3001 R3001 R3000 R3004 R3011 R3010 R3016 R3005 R3007 R3008 R3013 R3014 R3029 R3026 R3028 R3027 C3009 R3025 R3024 R3023 R3022 R3021 R3020 R3019 R3018 C3004 C3003 C3007 Q3000 R3032 C3010 D3002 R3033 D3006 C3011 R3036 R3037 R3039 D3008 R3038 D3007 R3035 D3005 R3031 D3003 D3004 R3034 R3040 R3043 R3017 R3042 R3041 C3030 IC3001 R3045 Q3002 Q3003 Q3001 R3065 R3066 C3031 R3067 R3068 R3069 C3032 IC3000 1.HP_SW 2.HP_L 5.KEY5 6.P-SW1 4.INPUT/R 3.INPUT/L 7.P-SW2 1.UCOM5V 2.UGND 10.RY_A 8.RY_C/S 2.P-SW2 7.RY_SB 3.HP_R 3.UGND 4.HP_R 5.HP_L 6.AC_RY 9.RY_HP 11.NECK 1.P-SW1 U5.6V U5.6V U5.6V U5.6V U5.6V Vf U5.6V 1 4 5 1 11 1 10 7 1 48 62 58 80 65 64 41 40 25 24 1 3 1 5 8 C1951 C1952 R1951 2.HPL 3.HPSW 1.HPR AWX7980 H.P ASS'Y R 1 3 L R3452 R3451 R3453 R3454 R3455 C3451 C3452 6 5 1 3 1.U+5V 8 1.MSW2 2.NC 3.MSW1 7.MSW2 6.MSW1 5.KEY5 4.INPUT/R 3.INPUT/L 2.UG MULTI JOG ASS'Y 8 7 7 4 6 9 4 5 5 CMK-P3X 4 5 4 6 9 9 7 7 8 8 6 9 AWX 3 3 1 2 0 0 1 2 1 0 2 3 2 1 0 3 CN3007 S U V SIDE B HEADPHONE ASSY V MULTI JOG ASSY U (ANP7421-A) (ANP7420-B) (ANP7420-B) IC3000 Q3003 Q3002 Q3001 IC3001 Q3000 CN3451 CN1951 CN3001 J3003 www. xiaoyu163. com QQ 376315150 9 9 2 8 9 4 2 9 8 TEL 13942296513 9 9 2 8 9 4 2 9 8 0 5 1 5 1 3 6 7 3 Q Q TEL 13942296513 QQ 376315150 892498299 TEL 13942296513 QQ 376315150 892498299 http://www.xiaoyu163.com VSX-45TX 84 1 2 3 4 1 2 3 4 C D F A B E 4.13 REGULATOR and COMPONENT ASSYS 1 14 15 1 4 1 9 1 19 17 1 9 1 2 8 1 7 21 1 3 W2424 W2423 C2415 C2402 C2401 C2429 C2441 C2440 R2403 CN2405 L2402 C2410 C2406 C2416 CN2403 CN2404 CN2413 CN2407 CN2406 IC2402 IC2406 IC2404 IC2405 IC2407 CN2401 W2515 W2498 W2414 W2436 W2417 W2420 W2466 W2469 W2465 W2500 W2468 W2467 W2491 W2462 W2463 W2413 W2473 W2471 W244 W2440 W2477 W2439 W2441 W2474 W2475 W2426 W2425 W2418 W2442 W2445 W2402 W2401 W2438 W2476 W2422 W2470 W2495 W2443 W2437 CN2411 W2499 W2501 W2472 W2419 R2499 W2421 W2415 KN2402 KN2403 W2496 W2497 W2514 W2464 W2435 W2403 W2410 W2407 W2490 W2409 W2412 W2478 W2408 W2404 W2444 W2416 W2411 W2517 W2405 W2406 W2434 W2492 W2493 W2494 W2516 W2510 W2511 W2513 W2512 IC2411 CN2415 Y2401 15.IERT 12VT REPLACE DEMRST DEMSTP DEMLCK NC USBSS 2596SW5 2596SW4 2596SW3 2596SW2 2279SW2 2279SW1 OSDCS OSDCK OSDDT OSDRT OSDON 4053A 4053INH USBSS USBPB DSDP DRST DLCK A-15V A+15V GDA GDA GND GND GND 2279-1 2279-2 OSDON SW2 SW3 SW4 SW5 FVC FVY FV VG VG V+5.6V V-5.6V OSD OSD OSDRT OSDCS OSDDT OSDCK V+5.6V V-5.6V 4053A 4053INH V+5.6V V-5.6V 4053A 4053INH REG G REG B REG B A+15V A-15V ST G ST+5.6V W/UP 16.IECK 17.IECS CMK-P3X V-5.6V AD+5V U+5.6V V-5.6V AD+5V V+5.6V V+5.6V A-15V A-15V ADG VG REGULATOR ASSY AWX 7967 7993 8020 PRODUCTION CODE INC. LITTELFUSE CHEZ DE 491.315 REFERENCE LA QUE N'UTILISER IC2411 FUSIBLES REMPLACEMENT EN CAS ATTENTION DE DES SAME WITH INC. TYPE CAUTION LITTELFUSE FOR NO.491.315 MFD. BY 14.IEDI 13.IEDO 12.IEIT 11.G 10.G 9.NC 8.DRRT 7.DRCS 6.DRDO 5.CLK 4.DATA 3.ERR 2.ADRT 1 D1RT 1.1394INT 2.1394DO 3.1394DI 4.1394RST 5.1394CK 6.1394CS 7.GND BLK CMK-P3X IC2411 NP 1 15 1 4 9 1 1 19 17 1 9 8 1 7 1 21 3 1 CN901 H C N CN CN1652 N CN2407 CN1803 G CN2406 CN1 K CN2415 CN2405 SIDE A W REGULATOR ASSY W IC2402 IC2405 IC2406 IC2404 IC2411 CN2404 CN1903 J CN2403 J4602 CN2401 AA CN351 K CN2411 CN502 K CN2413 IC2407 www. xiaoyu163. com QQ 376315150 9 9 2 8 9 4 2 9 8 TEL 13942296513 9 9 2 8 9 4 2 9 8 0 5 1 5 1 3 6 7 3 Q Q TEL 13942296513 QQ 376315150 892498299 TEL 13942296513 QQ 376315150 892498299 http://www.xiaoyu163.com VSX-45TX 85 5 6 7 8 5 6 7 8 C D F A B E C1021 IC1001 C1019 CN1001 IC1051 C1020 C1022 R1031 JA1003 C1029 R1034 R1033 R1032 C1054 R1054 R1051 R1052 C1063 C1060 Q1003 JA1001 Q1002 Q1001 C1051 C1053 R1061 IC1002 C1028 R1025 R1020 R1015 C1027 X1051 JA1002 C1007 C1008 R1030 C1052 R1008 R1007 R1016 R1017 C1017 R1018 C1018 R1022 R1023 R1021 C1023 R1027 R1028 R1026 C1015 C1016 C1014 C1013 IC1003 OSD RT COMPONENT ASSY 9. OSD OUT V-5V V+5V 4053INH 4053A 1. CN1001 OSD CK OSD DT OSD CS HCMK-P3X 9 8 1 16 1 9 1 13 8 5 24 12 4 1 4 1 5 8 1 2 3 4 1 7 1 9 1 9 1 17 1 17 1 17 1 21 C2443 D2415 C2433 C2411 W2483 C2436 C2412 C2444 L2401 D2416 R2401 W2458 W2486 W2484 Q2401 C2435 2402 L2402 C2442 C2408 C2406 C2405 W2518 CN2414 CN2412 D2417 C2439 C2438 R2402 CN2409 CN2408 CN2407 IC2402 IC2401 IC2403 IC2409 IC2410 KN2401 W2505 W2460 W2457 W2487 W2508 W2447 W2504 W2459 W2433 W2432 W2456 0 W2453 W2448 W2450 W2446 W2452 W2426 W2425 W2427 W2482 W2502 W2445 W2431 W2449 W2454 W2429 W2428 W2480 W2481 W2455 W2485 W2488 W2507 W2509 W2503 KN2402 W2506 W2451 CN2410 W2430 W2489 15.IERT 1.VF +15V +15V G G A5V A5V -15V -15V ARET ARET V1394 V1394 D5V D5V DRET DRET DRET 10L B A-15V A-15V A+15V A+15V T+12V T+12V D+5V D+5V 1394+5V AG TG FL2 FL1 VREG VREG VG DSPREG DSPREG E ST+5.6V TG UG W/UP T+12V NC U+5.6V A+15V A-15V J11 14.IEDI 13.IEDO 12.IEIT 11.G 10.G 9.NC 8.DRRT 7.DRCS 6.DRDO 5.CLK 4.DATA 3.ERR 2.ADRT 1.D1RT 17.NC 16.D1RQ 15.D1CS 14.D1MD 13.DSDI 12.DSCK 11.DSDO 10.D2RQ 9.D2RT 8.D2CS 7.D2MD 6.DACS 5.MUTE 4.DSMD 3.G 2.OPTIN 1.G 1.1394INT 17.DIRDTI 16.DIRERR 15.DACRST 14.DSP1RST 13.DSPHREQ 12.DSP1CS 11.DSPMODE1 10.DSPDI 9.DSPCLK 8.DSPDO 7.DSP2HREQ 6.DSP2RST 5.DSP2CS 4.DSPMODE2 3.DACCS 2.MUTE 1.DSDM 21.DIRRST 20.DIRCS 19.DIRDTO 18.DIRCLK Y2401 FLAC1 FLAC2 FV FVY FVC DG OPT 9.D5V BLK CMK-P3X CMK-P3X 7 1 1 9 1 9 1 17 17 1 1 1 21 1 D I P CN3 K CN2412 CN1654 N CN2409 CN1653 N CN2408 652 I W SIDE A COMPONENT ASSY I (ANP7419-B) (ANP7418-A) IC1002 IC1003 IC1001 IC1051 IC2410 Q2402 Q2401 IC2403 IC2401 IC2402 IC2409 Q1003 Q1002 Q1001 CN1001 J11 AE J11 CN2 K CN2414 CN302 K CN2410 CN351 CN2411 www. xiaoyu163. com QQ 376315150 9 9 2 8 9 4 2 9 8 TEL 13942296513 9 9 2 8 9 4 2 9 8 0 5 1 5 1 3 6 7 3 Q Q TEL 13942296513 QQ 376315150 892498299 TEL 13942296513 QQ 376315150 892498299 http://www.xiaoyu163.com VSX-45TX 86 1 2 3 4 1 2 3 4 C D F A B E CN1001 R1001 C1024 C1025 D1052 C1026 L1053 R1053 C1062 C1061 C1058 C1057 C1056 C1059 L1052 D1051 L1051 C1001 R1055 C1002 R1002 C1003 R1003 C1006 R1006 C1005 R1005 C1004 R1004 C1055 Q1051 1 9 V+5V OUT Cr V-5V IN-1 IN-2 Cr OSD OUT Cr OSD RT OSD CS OSD DT Cb Cb Cb OSD CK 4053A 4053INH Y Y Y 1. 9. HCMK-P3X C2403 D2423 D2422 D2420 D2421 D2408 D2407 D2410 D2409 C2404 C2407 C2413 C2431 C2432 C2430 C2434 D2405 D2406 C2424 C2437 R2405 C2445 C2447 R2498 R2407 R2406 C2453 R2410 1 7 1 9 1 9 1 17 1 17 1 17 1 1 21 CN2412 CN2409 CN2408 CN2407 SIDE B I W COMPONENT ASSY I REGULATOR ASSY W (ANP7419-B) (ANP7418-A) Q1051 CN1001 J11 CN2412 CN2414 CN2410 CN2411 www. xiaoyu163. com QQ 376315150 9 9 2 8 9 4 2 9 8 TEL 13942296513 9 9 2 8 9 4 2 9 8 0 5 1 5 1 3 6 7 3 Q Q TEL 13942296513 QQ 376315150 892498299 TEL 13942296513 QQ 376315150 892498299 http://www.xiaoyu163.com VSX-45TX 87 5 6 7 8 5 6 7 8 C D F A B E D2401 D2411 D2403 D2402 D2404 D2418 D2419 C2409 C2413 C2414 C2428 D2413 D2414 R2497 C2455 C2447 C2446 D2424 C2451 C2456 C2452 15 1 1 1 1 9 1 19 17 1 9 7 1 1 3 2407 CN2406 CN2415 CN2405 W SIDE B CN2404 CN2403 CN2401 CN2411 CN2413 www. xiaoyu163. com QQ 376315150 9 9 2 8 9 4 2 9 8 TEL 13942296513 9 9 2 8 9 4 2 9 8 0 5 1 5 1 3 6 7 3 Q Q TEL 13942296513 QQ 376315150 892498299 TEL 13942296513 QQ 376315150 892498299 http://www.xiaoyu163.com VSX-45TX 88 1 2 3 4 1 2 3 4 C D F A B E 4.14 POWER AMP L and POWER AMP C ASSYS 3 1 17 1 10 1 NP 10 1 NP 3 1 1 1 1 1 W3036 W3011 R4319 W3013 W3023 W3014 W3024 C4304 W3015 CN4403 W3033 C4301 IC4303 IC4302 IC4203 IC4202 W3058 W3059 W3066 W3061 W3057 W3040 W3070 W3065 W3068 W3060 W3064 C4209 W3063 W3062 W3067 W3069 CN4401 C4203 W3042 W3056 W3055 W3038 IC4301 C4314 R4219 W3041 IC4201 C4214 C4208 W3022 W3012 W3037 W3034 W3008 W3010 W3017 W3021 W3009 W3020 W3025 W3035 C4201 C4311 C4309 C4406 C4305 C4303 C4210 C4211 C4204 KN4402 W3016 W3027 C4205 W3026 C4308 C4310 POWER AMP-L ASS'Y Y3 Y3 J4301 J4302 J4201 J4303 GRY PPL -VL -VL -VL P SL SBL P +VL A B 1.VH+ 2.VH+ 3.VHG 4.VHG 5.VH- 6.VH- 7.+5V 8.TEMP 10.OL DET N N 11.DC DET 12.AGFL 13.FL 14.AGSL 15.SL 16.AGSBL 17.SBL 9.AMUTE PBD002A PBD002A PBD001A PBD001A -VH +VH +VH +VH -VH CMK-P3X CMK-P3X CMK-P3X CMK-P3X THERMISTOR O CN4403 SIDE A X POWER AMP-L ASSY X CN4003 CN4401 AA CN4603 Y3 IC4202 IC4203 IC4302 IC4303 IC4201 IC4301 www. xiaoyu163. com QQ 376315150 9 9 2 8 9 4 2 9 8 TEL 13942296513 9 9 2 8 9 4 2 9 8 0 5 1 5 1 3 6 7 3 Q Q TEL 13942296513 QQ 376315150 892498299 TEL 13942296513 QQ 376315150 892498299 http://www.xiaoyu163.com VSX-45TX 89 5 6 7 8 5 6 7 8 C D F A B E 10 1 10 1 10 1 NP CN4455 C4455 C4454 IC4451 R4469 CN4453 C4464 W3150 W3148 W3147 W3145 W3149 W3144 W3146 C4459 C4453 C4458 C4451 C4460 C4461 YEL C AWX7986 POWER AMP-C ASS'Y Y1 1.CG2 2.CS 3.CS 4.CS 5.DCDET 6.OLDET 7.CG1 8.AMUTE 9.AGC 10.C 10.CG2 9.DC 8.CS 7.CS 6.CS 5.CG1 4.VH- 3.VHG 2.VH+ 1.AMPG CMK-P3X 10 1 NP 10 1 1 1 1 1 W3039 W3004 W3018 W3030 IC4101 W3019 W3031 C4111 W3005 C4110 C4109 C4108 W3003 IC4102 IC4103 W3033 C4402 C4401 R4119 IC4453 W3006 C4114 IC4202 W3007 W3046 W3054 W3050 W3047 W3051 W3049 W3043 W3045 W3044 W3052 W3048 W3053 W3032 W3040 W3056 W3055 W3028 CN4456 W3034 W3008 W3020 W3029 C4101 C4105 C4104 C4103 KN4401 W3001 W3002 Y2 AWX7984 Production code Y5 J4301 J4201 J4102 J4101 ORG FL -VL -VL RED P +VL A A A BLU BLK B B 1.AMPG 2.VH+ 3.VHG 4.VH- 5.CG1 6.CS 7.CS 8.CS 9.DC 10.CG2 N N -VL Y5 Y5 PBD002A PBD002A PBD001A PBD001A +VH -VH CMK-P3X CMK-P3X CMK-P3X CMK-P3X CMK-P3X CN4455 CN4456 X Z SIDE A POWER AMP-C ASSY Z (ANP7421-A) (ANP7421-A) CN4602 Y1 AA AA CN4601 Y2 AA CN4605 Y5 CN4454 Y CN4453 IC4451 IC4101 IC4453 IC4102 IC4103 IC4202 www. xiaoyu163. com QQ 376315150 9 9 2 8 9 4 2 9 8 TEL 13942296513 9 9 2 8 9 4 2 9 8 0 5 1 5 1 3 6 7 3 Q Q TEL 13942296513 QQ 376315150 892498299 TEL 13942296513 QQ 376315150 892498299 http://www.xiaoyu163.com VSX-45TX 90 1 2 3 4 1 2 3 4 C D F A B E CN4455 CN4453 YEL Y1 R4460 D4451 R4466 R4464 D4457 R4465 R4455 R4453 R4472 R4467 C4452 D4454 D4455 R4456 R4471 C4463 Q4452 C4462 D4453 C4456 R4463 R4461 D4452 R4458 R4468 R4462 C4466 C4457 R4470 D4456 R4451 R4452 R4454 C4465 R4459 R4457 Q4451 CMK-P3X 10 1 1 10 10 1 Y2 Y5 ORG RED BLU BLK Y5 Y5 CN4456 D4102 R4121 D4105 R4120 R4118 R4117 R4116 C4115 C4102 R4104 R4115 R4114 D4106 R4111 R4110 R4109 R4108 R4103 R4122 C4106 R4113 D4107 R4105 R4107 R4106 C4113 D4104 D4103 D4101 C4107 R4102 R4101 C4112 R4473 R4112 Q4101 C4116 Q4102 R4482 R4132 R4131 R4231 D4201 D4202 C4215 R4222 D4204 D4203 R4207 C4216 10.CG2 9.DC 8.CS 7.CS 6.CS 5.CG1 4.VH- 3.VHG 2.VH+ 1.AMPG +VH -VH -VH 1 10 10 1 CN4455 CN4456 SIDE B X Z POWER AMP-L ASSY X POWER AMP-C ASSY Z (ANP7421-A) CN4453 Q4452 Q4451 Q4102 Q4101 www. xiaoyu163. com QQ 376315150 9 9 2 8 9 4 2 9 8 TEL 13942296513 9 9 2 8 9 4 2 9 8 0 5 1 5 1 3 6 7 3 Q Q TEL 13942296513 QQ 376315150 892498299 TEL 13942296513 QQ 376315150 892498299 http://www.xiaoyu163.com VSX-45TX 91 5 6 7 8 5 6 7 8 C D F A B E Y3 Y3 GRY PPL CN4403 CN4401 C4313 D4304 R4312 D4301 R4321 R4331 R4332 R4231 R4232 R4302 D4302 C4312 R4320 R4317 Q4301 Q4401 Q4402 R4301 R4305 R4322 R4303 C4302 R4304 R4401 D4303 Q4302 D4307 R4318 D4201 R4308 R4212 R4311 D4306 R4314 R4315 R4316 R4310 D4202 C4213 C4307 R4205 C4316 R4201 R4203 R4204 C4315 R4202 C4202 Q4201 C4306 R4306 R4307 D4305 R4313 R4309 C4215 C4212 R4222 R4217 R4216 R4215 R4214 R4220 D4206 D4204 R4221 R4218 D4207 D4203 R4210 R4213 R4207 R4209 D4205 C4206 R4206 R4211 R4208 C4207 Q4202 R4325 R4324 R4323 16.AGSBL 15.SL 14.AGSL 13.FL 12.AGFL 11.DC DET 10.OL DET 9.AMUTE 5.VH- 7.+5V 6.VH- 4.VHG 2.VH+ 3.VHG 1.VH+ 8.TEMP 17.SBL -VH +VH +VH -VH +VH 1 3 17 1 1 10 1 10 CN4403 X SIDE B (ANP7421-A) CN4401 Q4402 Q4201 Q4401 Q4202 Q4302 Q4301 www. xiaoyu163. com QQ 376315150 9 9 2 8 9 4 2 9 8 TEL 13942296513 9 9 2 8 9 4 2 9 8 0 5 1 5 1 3 6 7 3 Q Q TEL 13942296513 QQ 376315150 892498299 TEL 13942296513 QQ 376315150 892498299 http://www.xiaoyu163.com VSX-45TX 92 1 2 3 4 1 2 3 4 C D F A B E 4.15 POWER AMP R ASSY NP 10 10 1 NP 10 1 1 1 1 1 W3101 C4264 R4169 W3131 W3078 W3080 W3082 W3079 W3125 W3110 W3076 W3114 IC4251 IC4151 KN4404 W3112 W3130 W3113 C4164 W3127 IC4452 W3107 W3075 IC4253 W3077 IC4153 W3074 IC4152 W3071 W3073 W3083 W3084 W3085 W3072 C4403 C4404 W3081 CN4454 W3115 W3132 W3133 W3103 W3102 W3100 W3129 W3108 W3109 W3099 C4154 C4259 C4158 C4159 C4161 C4160 C4255 C4153 C4151 C4155 W3126 W3116 W3181 W3111 W3128 AWX7985 J4351 Y6 Y6 Y1 J4151 J4251 GRN RED -VL FR +VL +VL +VL POWER AMP-R BLU BLK 10.C 9.AGC 8.AMUTE A A A B 7.CG1 6.OL DET 5.DC DET 4.CS 3.CS 2.CS 1.CG2 P B P N N ASS'Y J4352 Y6 PBD002A PBD002A PBD001A PBD001A -VH +VH -VH CMK-P3X CMK-P3X CMK-P3X CMK-P3X CMK-P3X Z SIDE A Y POWER AMP-R ASSY Y AA CN4453 CN4454 CN4602 Y1 AA CN4606 Y6 IC4151 IC4153 IC4152 IC4253 IC4452 www. xiaoyu163. com QQ 376315150 9 9 2 8 9 4 2 9 8 TEL 13942296513 9 9 2 8 9 4 2 9 8 0 5 1 5 1 3 6 7 3 Q Q TEL 13942296513 QQ 376315150 892498299 TEL 13942296513 QQ 376315150 892498299 http://www.xiaoyu163.com VSX-45TX 93 5 6 7 8 5 6 7 8 C D F A B E 10 1 NP NP 10 1 19 1 1 1 1 1 R4369 IC4351 W3120 W3122 C4264 C4364 R4269 W3105 IC4251 W3124 W3135 W3119 W3142 C4353 W3136 W3140 IC4353 IC4352 IC4253 IC4252 W3104 W3139 W3143 W3098 W3096 W3097 W3092 W3093 W3094 W3095 W3091 W3083 W3084 W3085 W3086 W3089 W3088 W3090 W3087 W3106 KN4403 W3141 W3121 W3138 W3137 W3133 W3103 W310 CN4402 W3123 W3118 W3117 C4258 C4259 C4260 C4261 C4355 C4354 C4360 C4361 C4359 C4351 C4405 C4251 C4358 C4255 C4254 C4253 W3116 W31 5 J4351 Y4 Y4 WHT BRW -VL SR L L +VL SBR A B P P N N 19.VH+ 18.VH+ 8.C 9.AGC 10.DC DET 11.OL DET J4451 J4353 J4352 1.NC 2.SBR 3.AGSBR 4.SR 5.AGSR 6.FR 12.AMUTE 13.NC 14.VH- 15.VH- 16.VHG 17.VHG 7.AGFR PBD002A PBD002A PBD001A PBD001A +VH -VH +VH -VH CMK-P3X CMK-P3X CMK-P3X CMK-P3X Y SIDE A (ANP7421-A) IC4253 IC4252 IC4353 IC4352 IC4251 IC4351 AA CN4604 Y4 O CN4002 CN4402 www. xiaoyu163. com QQ 376315150 9 9 2 8 9 4 2 9 8 TEL 13942296513 9 9 2 8 9 4 2 9 8 0 5 1 5 1 3 6 7 3 Q Q TEL 13942296513 QQ 376315150 892498299 TEL 13942296513 QQ 376315150 892498299 http://www.xiaoyu163.com VSX-45TX 94 1 2 3 4 1 2 3 4 C D F A B E Y4 Y4 WHT BRW CN4402 R4362 Q4403 Q4404 C4357 D4353 Q4352 Q4252 D4254 D4257 D4354 D4357 R4351 R4368 D4251 R4255 R4355 R4268 R4371 R4271 C4366 D4253 D4351 D4256 C4266 C4263 C4257 R4251 R4272 R4372 R4253 R4353 R4358 C4352 C4262 C4363 R4254 C4365 R4252 R4354 C4265 R4258 R4262 C4252 Q4251 R4352 R4402 C4356 R4261 R4361 D4252 D4352 C4362 D4356 R4370 R4364 R4256 C4256 R4270 R4367 R4356 R4365 R4264 R4259 R4357 R4257 R4366 R4478 R4267 R4263 D4355 R4360 Q4351 R4363 R4260 R4359 R4382 R4381 R4282 R4281 R4477 19.VH+ 18.VH+ 17.VHG 16.VHG 14.VH- 15.VH- 13.NC 12.AMUTE 11.OL DET 10.DC DET 9.AGC 1.NC 8.C 7.AGFR 6.FR 2.SBR 5.AGSR 3.AGSBR 4.SR +VH -VH +VH -VH 1 10 1 10 19 1 SIDE B Y POWER AMP-R ASSY Y Q4351 Q4403 Q4252 Q4404 Q4251 Q4352 CN4402 www. xiaoyu163. com QQ 376315150 9 9 2 8 9 4 2 9 8 TEL 13942296513 9 9 2 8 9 4 2 9 8 0 5 1 5 1 3 6 7 3 Q Q TEL 13942296513 QQ 376315150 892498299 TEL 13942296513 QQ 376315150 892498299 http://www.xiaoyu163.com VSX-45TX 95 5 6 7 8 5 6 7 8 C D F A B E Y6 Y1 GRN RED BLK Y6 CN4454 R4476 Q4252 D4151 C4163 D4257 C4162 R4268 D4256 R4152 D4155 Q4152 R4160 R4163 R4157 R4159 C4156 R4156 R4161 R4158 C4157 C4166 Q4151 C4152 C4165 R4154 D4157 D4154 R4153 R4172 R4151 R4155 R4170 R4171 D4156 R4165 R4166 R4164 R4264 R4265 D4255 R4266 R4257 R4162 R4168 D4153 D4152 R4167 R4181 R4182 R4282 R4481 R4474 R4475 10.C 9.AGC 8.AMUTE 7.CG1 6.OL DET 5.DC DET 4.CS 3.CS 2.CS 1.CG2 -VH +VH -VH 1 10 10 1 Y SIDE B (ANP7421-A) CN4454 Q4252 Q4151 Q4152 www. xiaoyu163. com QQ 376315150 9 9 2 8 9 4 2 9 8 TEL 13942296513 9 9 2 8 9 4 2 9 8 0 5 1 5 1 3 6 7 3 Q Q TEL 13942296513 QQ 376315150 892498299 TEL 13942296513 QQ 376315150 892498299 http://www.xiaoyu163.com VSX-45TX 96 1 2 3 4 1 2 3 4 C D F A B E 4.16 SP/PS ASSY 1 2 1 2 1 2 1 2 3 5 7 8 1 2 3 1 2 3 1 6 1 8 1 5 1 5 1 2 3 5 7 10 1 2 9 CN4602 W4642 L4609 L4608 W4634 W4644 W4633 W4616 W4615 W4612 W4622 W4613 W4604 W4625 W4610 W4605 W4611 C4631 C4627 C4625 C4629 C4630 C4626 CN4604 C4628 R4621 CN4603 CN4612 RY4601 RY4604 RY4605 RY4602 L4601 L4602 L4607 L4604 L4605 L4603 L4606 CN4605 CN4606 4601 4602 C4621 C4622 RY4603 C4602 C4609 C4608 C4601 C4607 C4614 C4610 C4603 C4605 C4612 C4604 C4611 C4613 C4606 W4643 Y13 R4611 R4602 R4612 R4613 R4607 R4604 R4601 R4614 R4606 R4603 R4605 R4622 R4615 R4616 R4623 R4624 R4627 R4625 R4626 W4621 CN4610 CN4613 W4606 R4632 R4628 R4631 R4630 R4629 W4630 W4623 W4607 CN4601 W4641 W4646 W4638 W4637 W4629 W4620 W4619 W4603 W4601 W4608 W4602 W4627 W4609 W4628 W4618 W4635 W4631 W4632 W4639 W4636 W4640 W4645 W4626 W4624 W4614 C4624 C4623 W4617 BLUE YELLOW NC FL C FR SBR SR SBL SL J4602 J9 Y12 Y11 Y8 Y13 -15V +15V -15V -15V -15V +15V -15V -15V 4.STG 3.ST+5.6V 5.W UP 5.RY SB 4.RY C/S 2.RY A 3.RY H.P. 1.NECK 1.H.P.L 2.H.P.R 5.-15V 4.+15V 6.STG 1.REG B 7.ST+5.6V 8.W UP 3.REG B 2.REG G 6.GG 5.-15V 4.NECK 1.REG B 2.REG G 3.REG B OPEN SIDE RED WHITE SP/PS ASS'Y OPEN SIDE Bond Bond BLK BLK BLK RED BLU TO REG ASS'Y TO TRANS 2-1 ASS'Y CMK-P3X 1 2 1 2 1 2 1 3 1 3 1 6 1 8 1 5 1 5 1 2 SIDE A AA SP/PS ASSY AA (ANP7420-B) CN2003 CN4610 Y3 X CN4603 Y2 X CN4601 Y4 Y CN4604 Y11 AB Y11 Y8 AC Y8 Y12 AB Y12 J9 AC AG CN2004 CN4613 AG J9 Y5 X CN4605 CN2401 W J4602 Y6 Y CN4606 Y1 Y Y1 Z CN4602 CN4606 www. xiaoyu163. com QQ 376315150 9 9 2 8 9 4 2 9 8 TEL 13942296513 9 9 2 8 9 4 2 9 8 0 5 1 5 1 3 6 7 3 Q Q TEL 13942296513 QQ 376315150 892498299 TEL 13942296513 QQ 376315150 892498299 http://www.xiaoyu163.com VSX-45TX 97 5 6 7 8 5 6 7 8 C D F A B E Q4602 Q4601 Q4603 D4606 D4604 D4602 D4609 D4601 D4608 D4610 D4603 D4607 D4605 R4635 R4637 R4641 R4640 R4638 R4639 5.-15V 4.+15V 8.W UP 3.REG B AWX 0 1 2 1.REG B 2.REG G 6.STG 5.-15V 1.REG B 4.NECK HP.L NECK RY H.P. RY A RY C/S RY SB 3.REG B 2.REG G 7.ST+5.6V SP/PS ASS'Y STG ST+5.6V W UP HP.R 2 3 5 2 1 0 0 0 5 4 4 4 3 3 5 5 3 6 6 9 6 4 8 2 9 9 6 7 9 7 7 7 8 8 8 1 1 6.GG 2 1 2 1 2 1 1 3 1 3 1 6 1 8 1 5 1 5 2 1 1 B 8 C 2 B C 2401 SIDE B AA SP/PS ASSY AA (ANP7420-B) Q4603 Q4602 Q4601 CN4610 CN4601 CN4604 CN4603 CN4613 CN4605 J4602 J9 CN4606 CN4602 www. xiaoyu163. com QQ 376315150 9 9 2 8 9 4 2 9 8 TEL 13942296513 9 9 2 8 9 4 2 9 8 0 5 1 5 1 3 6 7 3 Q Q TEL 13942296513 QQ 376315150 892498299 TEL 13942296513 QQ 376315150 892498299 http://www.xiaoyu163.com VSX-45TX 98 1 2 3 4 1 2 3 4 C D F A B E 4.17 DIODE, TRANS 2-1 and VH TR ASSYS 1 6 1 2 3 4 1 2 3 4 1 6 1 6 1 6 D2241 D2242 Y9 Y12 Y11 Y10 W2252 W2253 W2246 W2244 W2254 W2255 W2241 W2257 W2249 W2256 W2258 W2259 W2243 W2251 W2247 W2242 W2250 W2248 W2245 DIODE ASS'Y BRN GRY RED BLU CMK-P3X R2206 R2201 2203 2202 2201 C2206 C2205 C2203 C2202 Y8 IC2201 IC2202 C2201 C2208 C2207 W2202 C2204 H2204 H2202 H2203 H2201 R2204 C2209 R2205 W2205 W2204 W2203 W2201 W2206 W2207 C2210 C2212 C2211 REFERENCE 4913.15 DE CHEZ -FUSE INC. FU4 FU5 J2201 Y10 Y9 TRANS2-1 1.-VH 5.REG G 6.REG B 3.+VH 6.GG 5.-15V 4.NECK 3.REG B 2.REG G 1.REG B 4.REG B 2.VHG 6.+C 1.-C 2.-B 3.-VH 5.+B 4.+VH ATTENTION EN CAS DE REMPLACEMENT DES FUSIBLES IC2201 ET IC2202 N'UTILISER QUE LA LITTEL- TO FAN BLK BRN GRY J9 J10 TO VH TR ASS'Y TO SP/PS CONNECTION CN2231 Q2232 Q2231 J10 1.+C 6.-C 5.-B 4.-VH 2.+B 3.+VH VH TR ASS'Y CMK-P3X 1 6 -B -C -E +E +C +B 1 6 1 6 1 6 NP NP NP NP SIDE A AB AC AD TRANS 2-1 ASSY AC VH TR ASSY AD DIODE ASSY AB (ANP7420-B) (ANP7420-B) (ANP7420-B) Y11 CN2231 TRANS 1 ASSY T1 POWER TRANSFORMER AF TRANS 2-2 ASSY AE Y8 J9 AA Y8 AA J9 J10 Y11 Y9 Y10 AA Y12 Y12 AA CN4701 Q J2201 IC2202 IC2201 Q2231 Q2232 www. xiaoyu163. com QQ 376315150 9 9 2 8 9 4 2 9 8 TEL 13942296513 9 9 2 8 9 4 2 9 8 0 5 1 5 1 3 6 7 3 Q Q TEL 13942296513 QQ 376315150 892498299 TEL 13942296513 QQ 376315150 892498299 http://www.xiaoyu163.com VSX-45TX 99 5 6 7 8 5 6 7 8 C D F A B E 8038 AWX 8017 R2231 R2232 C2232 C2231 D2231 D2232 +C -C -B +VH +B -VH AWX8018 VH TR ASS'Y D2209 D2211 D2210 D2212 R2203 Q2201 Q2202 D2206 D2208 D2204 D2201 D2202 R2208 R2207 D2207 D2203 D2205 R2202 FU4 FU5 FUSE INC. IC2202 MFD. 1 6 REG B -VH REG G +VH REGG VLa VLG TRANS2-1 REGb REG B GG -15V NECK 4.-VH 1.+C 3.+VH 5.-B 2.+B 6.-C VHG REGa VLb VHb VHG VHa REG G REG B REG B RISK OF FIRE REPLACE FUSE AS MARKED IC2202 IC2201 AND BY LITTEL- IC2201 CAUTION REPLACE WITH SAME TYPE NO.4913.15 FOR 6 CMK-P3X 8 9 7 9 7 8 0 2 2 1 0 AWX 3 8 7 7 6 9 8 4 6 9 4 5 5 1 2 3 0 0 1 2 3 1 3 5 5 4 4 6 1 6 1 6 6 1 - + 20-B) 01 2 SIDE B AB AC AD TRANS 2-1 ASSY AC VH TR ASSY AD DIODE ASSY AB (ANP7420-B) (ANP7420-B) (ANP7420-B) CN2231 J2201 J9 J10 IC2202 Q2201 Q2202 IC2201 www. xiaoyu163. com QQ 376315150 9 9 2 8 9 4 2 9 8 TEL 13942296513 9 9 2 8 9 4 2 9 8 0 5 1 5 1 3 6 7 3 Q Q TEL 13942296513 QQ 376315150 892498299 TEL 13942296513 QQ 376315150 892498299 http://www.xiaoyu163.com VSX-45TX 100 1 2 3 4 1 2 3 4 C D F A B E 4.18 TRANS 2-1, TRANS 1 and PRIMARY ASSYS 1 7 1 10 11 1 1 4 5 9 1 2 5 1 2 5 PRIMARY BRN GRY CMK-P3X TRANS1 ASSY AWX7969 Y14 Y15 W2253 W2252 2251 C2251 C2252 C2253 R2251 R2252 IC2251 IC2252 IC2253 W2251 QUE N'UTILISER 4.DSPREG 3.DSPREG 1.FL2 2.FL1 5.VREG 6.VG 7.VREG DE INC. REFERENCE LA 491005, LITTELFUSE ET IC2252 FUSIBLES IC2253 N'UTILISER REMPLACEMENT IC2251 ATTENTION CHEZ AWX7970 TRANS 2-2 ASSY DE DES J11 LA REFERENCE 4913.15 EN CAS QUE J2004 CN2005 2004 W2016 W2026 W2009 W2022 W2021 KN2001 W2015 2003 J2003 W2018 C2003 C2002 W2019 L2002 L2003 W2004 CN2002 W2008 CN2001 T2001 H2001 H2002 H2003 H2004 H2005 H2006 C2001 W2027 RY2001 R2001 L2001 W2010 W2023 W2017 R2002 W2013 J21 C2009 W2003 W2012 J22 C2008 W2024 W2001 W2006 W2005 W2011 W2007 W2002 J23 W2014 C2004 CN2004 CN2003 J2002 IC2001 W2025 Q2001 W2020 J2001 Y14 Y15 FU1 FU2 FU3 HP L 7988 /F 11 RY C/S RY HP RY A STG NECK W UP HP R RY SB HP L RY SB CONTACT SIDE HP R RY C/S SECONDARY PRIMARY 7999 7998 PRIMARY PRIMARY 7987 SECONDARY 7994 7968 AWX N ST+5.6V MSW2 1 RY HP NECK RY A L REPLACE FUSE BRN GRY RISK OF FIRE - AS MARKED. UG MSW1 RY AC ASSY CMK-P3X 125mm 121mm BRN BLK WHT /NK /F /F /NK ORG BRN 7 1 TUBE SIDE 1 5 1 5 SIDE A AE AF AG TRANS 1 ASSY AF PRIMARY ASSY AG TRANS 2-2 ASSY AE (ANP7419-B) LIVE NEUTRAL (ANP7419-B) (ANP7419-B) CN4613 CN2004 CN2002 T1 POWER TRANSFORMER AA CN4610 CN2003 AA J11 CN3001 S J11 W CN2001 AC IN IC2251 IC2252 IC2253 Q2001 IC2001 CN2001 www. xiaoyu163. com QQ 376315150 9 9 2 8 9 4 2 9 8 TEL 13942296513 9 9 2 8 9 4 2 9 8 0 5 1 5 1 3 6 7 3 Q Q TEL 13942296513 QQ 376315150 892498299 TEL 13942296513 QQ 376315150 892498299 http://www.xiaoyu163.com VSX-45TX 101 5 6 7 8 5 6 7 8 C D F A B E CMK-P3X PRIMARY TRANS1 ASSY AWX7969 C2010 D2002 R2006 R2005 R2004 R2003 C2011 C2012 D2005 C2007 C2005 C2006 D2001 D2003 D2004 SECONDARY SECONDARY PRIMARY N L CAUTION ASSY TRANS 2-2 CMK-P3X WITH REPLACE SAME TYPE NO.491005 FOR IC2253, 4913.15 FOR IC2251 AND IC2252 MFD. BY LITTELFUSE INC. 7 1 10 1 11 1 - + 1 5 1 5 SY AC IN 001 2001 SIDE B AE AF AG TRANS 1 ASSY AF PRIMARY ASSY AG TRANS 2-2 ASSY AE (ANP7419-B) (ANP7419-B) (ANP7419-B) CN2004 CN2002 CN2003 CN2001 www. xiaoyu163. com QQ 376315150 9 9 2 8 9 4 2 9 8 TEL 13942296513 9 9 2 8 9 4 2 9 8 0 5 1 5 1 3 6 7 3 Q Q TEL 13942296513 QQ 376315150 892498299 TEL 13942296513 QQ 376315150 892498299 http://www.xiaoyu163.com VSX-45TX 102 1 2 3 4 1 2 3 4 C D F A B E 5. PCB PARTS LIST • LIST OF WHOLE PCB ASSEMBLIES Parts marked by "NSP" are generally unavailable because they are not in our Master Spare Parts List. The mark found on some component parts indicates the importance of the safety factor of the part. Therefore, when replacing, be sure to use parts of identical designation. When ordering resistors, first convert resistance values into code form as shown in the following examples. Ex.1 When there are 2 effective digits (any digit apart from 0), such as 560 ohm and 47k ohm (tolerance is shown by J=5%, and K=10%). Ex.2 When there are 3 effective digits (such as in high precision metal film resistors). 5 6 1 4 7 3 R 5 0 1 R 0 5 6 2 1 NOTES: 560 Ω 47k Ω 0.5 Ω 1 Ω RD1/4PU J RD1/4PU J RN2H K RS1P K 56 x 10 1 47 x 10 3 R50 1R0 561 473 5.62k Ω RN1/4PC F 562 x 10 1 5621 Mark Symbol and Description VSX-45TX/ KUXJI/CA VSX-43TX/ KUXJI/CA 1..FM/AM TUNER MODULE AXQ7231 AXQ7231 NSP 1..REGULATOR ASSY AWK7731 AWK7731 2..7.1 CH I/O ASSY AWX7973 AWX7973 2..POWER AMP IN ASSY AWX7982 AWX7982 2..FAN DRIVE ASSY AWX7976 AWX7976 2..REGULATOR ASSY AWX7967 AWX7967 2..TRANS 2-2 ASSY AWX7970 AWX7970 2..TRANS 1 ASSY AWX7969 AWX7969 2..PRIMARY ASSY AWX7968 AWX7968 NSP 1..COMPLEX ASSY AWK7732 AWK7742 2..V-AUDIO IN ASSY AWX7964 AWX7991 2..FRONT IN ASSY AWX7977 AWX7977 2..OPTICAL IN ASSY AWX7978 AWX7978 2..INPUT CONNECT ASSY AWX7974 AWX8041 2..RS232C ASSY AWX7966 Not used 2..VOLUME ASSY AWX7971 AWX7971 2..MULTI JOG ASSY AWX7972 AWX7972 2..HEADPHONE ASSY AWX7980 AWX7980 2..SP/PS ASSY AWX7975 AWX8037 2..DIODE ASSY AWX8017 AWX8038 2..TRANS 2-1 ASSY AWX7979 AWX7979 2..VH TR ASSY AWX8018 AWX8018 NSP 1..MAIN ASSY AWK7730 AWK7740 2..COAXIAL IN ASSY AWX7965 AWX8013 2..VIDEO ASSY AWX7962 AWX8002 2..COMPONENT ASSY AWX7963 AWX8021 2..MAIN CONTROL ASSY AWX7961 AWX8000 2..MIC & F.OPT IN ASSY AWX7981 Not used 2..MIC AMP ASSY AWX8004 Not used 2..DSP CONNECTION ASSY AWX8024 AWX8024 2..FAN CONNECTION ASSY AWX8005 AWX8005 NSP 1..POWER AMP ASSY AWK7733 AWK7743 2..DISPLAY ASSY AWX7983 AWX8011 2..POWER AMP-L ASSY AWX7984 AWX7984 2..POWER AMP-R ASSY AWX7985 AWX7985 2..POWER AMP-C ASSY AWX7986 AWX7986 1..DSP ASSY AWX8016 AWX8016 www. xiaoyu163. com QQ 376315150 9 9 2 8 9 4 2 9 8 TEL 13942296513 9 9 2 8 9 4 2 9 8 0 5 1 5 1 3 6 7 3 Q Q TEL 13942296513 QQ 376315150 892498299 TEL 13942296513 QQ 376315150 892498299 http://www.xiaoyu163.com VSX-45TX 103 5 6 7 8 5 6 7 8 C D F A B E • CONTRAST OF PCB ASSEMBLIES AWX7964 and AWX7991 are constructed the same except for the following : AWX7974 and AWX8041 are constructed the same except for the following : AWX7965 and AWX8013 are constructed the same except for the following : AWX7962 and AWX8002 are constructed the same except for the following : CV-AUDIO IN ASSY Mark Symbol and Description AWX7964 AWX7991 Q1201, Q1202 2SC2878 Not used R1221-R1224 RS1/16S102J Not used R1225, R1226 RS1/16S473J Not used CN1202 4P PIN JACK Not used AKB7015 CN1205 6P PIN JACK AKB7009 Not used FINPUT CONNECT ASSY Mark Symbol and Description AWX7974 AWX8041 IC1401 M62429FP Not used D1401 UDZS5.1B Not used C1401-C1405 CEAT100M50 Not used C1406, C1407 CCSQCH101J50 Not used R1401, R1402 RS1/16S103J Not used R1403, R1404 RS1/16S102J Not used R1405 RS3LMF391J Not used CN1402 7P SOCKET AKP7067 Not used GCOAXIAL IN ASSY Mark Symbol and Description AWX7965 AWX8013 IC1681 PCM2902EG Not used IC1682 TC7SET08F Not used C1680, C1697 CKSRYB103K50 Not used C1681 CEAT470M16 Not used C1683-C1686, C1689, C1690, C1698 CKSRYB104K16 Not used C1687 CCSRCH220J50 Not used C1688 CCSRCH180J50 Not used R1681 RS1/16S152J Not used R1682, R1683 RS1/16S220J Not used R1686 RS1/16S105J Not used R1687 RS1/16S470J Not used R1689 RS1/16S222J Not used R1690 RS1/16S101J Not used X1681 CRYSTAL RESONATOR (12.0MHz) ASS7047 Not used JA1681 USB CONNECTOR DKN1237 Not used HVIDEO ASSY Mark Symbol and Description AWX7962 AWX8002 IC902 NJM2279M Not used IC903 TC4W53FU Not used IC933 BU4053BCF Not used Q901 2SA933S Not used D902 DAN202K Not used C909, C910, C918 CEAT101M16 Not used C911-C913, C915, C916, C921, C957, C958 CKSRYB473K50 Not used C914 CCSRCH470J50 Not used C919 CCSRCH150J50 Not used C920 CEAT470M25 Not used www. xiaoyu163. com QQ 376315150 9 9 2 8 9 4 2 9 8 TEL 13942296513 9 9 2 8 9 4 2 9 8 0 5 1 5 1 3 6 7 3 Q Q TEL 13942296513 QQ 376315150 892498299 TEL 13942296513 QQ 376315150 892498299 http://www.xiaoyu163.com VSX-45TX 104 1 2 3 4 1 2 3 4 C D F A B E AWX7963 and AWX8021 are constructed the same except for the following : AWX7961 and AWX8000 are constructed the same except for the following : C922 CCSRCH181J50 Not used R911-R913, R926, R959, R960, R961 RS1/16S102J Not used R914 RS1/16S101J Not used R915, R921, R955, R956, R958 Not used RS1/16S0R0J R916 RS1/16S104J Not used R917 RS1/16S153J Not used R918 RS1/16S103J Not used R919 RS1/16S101J Not used R920 RD1/2VM221J Not used R922, R998 RS1/16S750J Not used R954 RS1/16S0R0J Not used JA905 1P PIN JACK VKB1122 Not used ICOMPONENT ASSY Mark Symbol and Description AWX7962 AWX8002 Mark Symbol and Description AWX7963 AWX8021 IC1051 PDC084A Not used Q1051 DTC124EK Not used D1051, D1052 1SS355 Not used L1051, L1052 LCYA100J2520 Not used L1053 LCYA330J2520 Not used C1051, C1053, C1063 CEAT101M16 Not used C1052, C1054, C1061, C1062 CKSRYB473K50 Not used C1055 CCSRCH150J50 Not used C1056 CCSRCH180J50 Not used C1057, C1058 CCSRCH240J50 Not used C1059 CCSRCH470J50 Not used C1060 CCSRCH101J50 Not used R1051, R1052, R1054 RS1/16S102J Not used R1053 RS1/16S471J Not used R1061 RS1/16S103J Not used X1051 CRYSTAL RESONATOR (14.32MHz) ASS1056 Not used KMAIN CONTROL ASSY Mark Symbol and Description AWX7961 AWX8000 IC201 TC9164AF Not used IC202 NJM4558MD Not used Q101, Q102 2SC3326 Not used Q103, Q251 DTA124EK Not used C139, C140 CCSRCH470J50 Not used C201-C203 CCSRCH101J50 Not used C204, C205, C213, C214, C251 CKSRYB103K50 Not used C211, C212 CEAT1R0M50 Not used R135, R136 RS1/16S912J RS1/16S0R0J R137, R138, R217, R218, R251 RS1/16S102J Not used R141, R142 RS1/16S472J Not used R143, R252 RS1/16S473J Not used R161, R162 Not used RS1/16S0R0J R201-R203, R215, R216 RS1/16S471J Not used R213, R214 RS1/16S474J Not used R523, R524 Not used RS1/16S473J CN201 7P PLUG AKP7056 Not used CN551 KR CONNECTOR B8B-PH-K-S Not used PCB BINDER VEF1040 Not used www. xiaoyu163. com QQ 376315150 9 9 2 8 9 4 2 9 8 TEL 13942296513 9 9 2 8 9 4 2 9 8 0 5 1 5 1 3 6 7 3 Q Q TEL 13942296513 QQ 376315150 892498299 TEL 13942296513 QQ 376315150 892498299 http://www.xiaoyu163.com VSX-45TX 105 5 6 7 8 5 6 7 8 C D F A B E AWX7983 and AWX8011 are constructed the same except for the following : AWX7975 and AWX8037 are constructed the same except for the following : AWX8017 and AWX8038 are constructed the same except for the following : • PARTS LIST FOR VSX-45TX SDISPLAY ASSY Mark Symbol and Description AWX7983 AWX8011 IC3001 TC7W53FU Not used Q3000 FMA1A Not used Q3001 DTC124EK Not used D3002-D3005 1SS355 Not used C3010 CKSRYB153K50 Not used R3031, R3034 RS1/16S103J Not used R3032 RS1/16S392J Not used R3033 RS1/16S223J Not used R3099 Not used RS1/16S473J 4P CABLE HOLDER 51048-0400 Not used J3008 JUMPER WIRE 04P D20PYY0415E Not used a SP/PS ASSY Mark Symbol and Description AWX7975 AWX8037 L4608, L4609 RTF1167 Not used RY4601-RY4605 ASR7014 ASR7026 > C4621, C4622 ACH7169 ACH7170 C4623 CEAT101M50 Not used R4628-R4632 RD1/2VM331J RD1/2VM471J b DIODE ASSY Mark Symbol and Description AWX8017 AWX8038 > D2241, D2242 LN6SB60-4003 D5SBA20(B) Mark No. Description Part No. OTHERS Y15 BOARD IN JUMPER ADX7418 Y14 BOARD IN JUMPER ADX7419 J11 JUMPER WIRE 7P D20PYY0745E COMPLEX ASSY OTHERS Y8 BOARD IN JUMPER ADX7284 Y9 BOARD IN JUMPER ADX7285 Y10 BOARD IN JUMPER ADX7286 Y11 BOARD IN JUMPER ADX7287 Y12 BOARD IN JUMPER ADX7288 J9 JUMPER WIRE 6P D20PYY0615E AFM/AM TUNER MODULE SEMICONDUCTORS IC201 BA1451F IC202 LC72131MD Q201,Q204,Q205 2SC2412K Q202 DTA124ES Q203 DTC124EK D201 1SS133 D202 MTZJ5.1C COILS AND FILTERS L201 FL COIL ATE7003 F202 FM CERAMIC FILTER ATF-107 F201 FM CERAMIC FILTER ATF-119 F203 AM CERAMIC FILTER ATF7026 CAPACITORS C206 CCSRCH100D50 C212,C213,C226,C233-C235 CCSRCH101J50 C240 CCSRCH101J50 C231,C232 CCSRCH150J50 C223 CEAT100M50 C229 CEAT101M10 C224 CEAT1R0M50 C227 CEAT220M25 C241 CEAT2R2M50 C243 CEAT330M16 C228 CEAT3R3M50 C237 CEAT470M10 C211 CEJA1R0M50 C210 CEJA470M16 C204,C238,C602 CKSRYB102K50 Mark No. Description Part No. www. xiaoyu163. com QQ 376315150 9 9 2 8 9 4 2 9 8 TEL 13942296513 9 9 2 8 9 4 2 9 8 0 5 1 5 1 3 6 7 3 Q Q TEL 13942296513 QQ 376315150 892498299 TEL 13942296513 QQ 376315150 892498299 http://www.xiaoyu163.com VSX-45TX 106 1 2 3 4 1 2 3 4 C D F A B E C101,C102,C208,C220,C239 CKSRYB103K50 C242,C601 CKSRYB103K50 C216,C217,C225 CKSRYB153K50 C201,C205,C209,C214,C230 CKSRYB223K50 C236,C603 CKSRYB223K50 C221 CKSRYB224K10 C202,C222 CKSRYB473K16 C215 CKSRYB681K50 RESISTORS R211 RD1/4PU221J R221 RD1/4PU222J R233 RD1/4PU391J R243 RS1/10S0R0J R103 RS1/10S331J R104 RS1/10S391J Other Resistors RS1/16S###J OTHERS CN201 13P FFC CONNECTOR 52044-1345 BN201 4P ANTENNA TERMINAL AKA7003 SHIELD CASE T ANK7072 SHIELD CASE B ANK7073 X201 CRYSTAL RESONATOR ASS1093 (7.2MHz) B7.1 CH I/O ASSY SEMICONDUCTORS IC1301-IC1304 UPC4570G2 Q1351,Q1352,Q1361,Q1362 HN1C03F Q1371,Q1372,Q1381,Q1382 HN1C03F CAPACITORS C1301-C1304,C1307,C1308 CCSRCH101J50 C1311-C1314,C1317,C1318 CCSRCH101J50 C1321-C1324,C1327,C1328 CCSRCH101J50 C1331-C1334,C1337,C1338 CCSRCH101J50 C1351,C1352,C1361,C1362 CCSRCH331J50 C1371,C1372,C1381,C1382 CCSRCH331J50 C1309,C1310,C1319,C1320 CEAT100M50 C1329,C1330,C1339,C1340 CEAT100M50 C1305,C1306,C1315,C1316 CEAT4R7M50 C1325,C1326,C1335,C1336 CEAT4R7M50 C1341-C1348,C1391-C1394 CKSRYB103K50 RESISTORS All Resistors RS1/16S###J OTHERS CN1301-CN1304 4P PIN JACK AKB7015 CN1306 5P SOCKET AKP7066 CN1307,CN1308 9P SOCKET AKP7068 CV-AUDIO IN ASSY SEMICONDUCTORS Q1201,Q1202 2SC2878 CAPACITORS C1201-C1212 CCSRCH221J50 C1213-C1215 CKSRYB103K50 Mark No. Description Part No. RESISTORS All Resistors RS1/16S###J OTHERS CN1205 6P PIN JACK AKB7009 CN1201,CN1203 4P PIN JACK AKB7015 CN1204 17P SOCKET AKP7072 DFRONT IN ASSY COILS AND FILTERS L1501-L1504 CHIP BEAD VTL1077 CAPACITORS C1507-C1509 CCSRCH101J50 C1501,C1502 CCSRCH221J50 C1505 CKSRYB102K50 C1504,C1506 CKSRYB103K50 C1503 CKSRYB472K50 C1510 CKSRYB473K50 RESISTORS All Resistors RS1/16S###J OTHERS CN1501 7P FFC CONNECTOR 52044-0745 JA1501 FRONT INPUT AKX7016 KN1501 EARTH METAL FITTING VNF1084 EOPTICAL IN ASSY COILS AND FILTERS F1701 CHIP BEAD DTF1064 CAPACITORS C1706 CEAT470M16 C1701-C1705 CKSRYF104Z16 RESISTORS All Resistors RS1/16S###J OTHERS CN1701 9P FFC CONNECTOR 52045-0945 JA1701,JA1702 OPTICAL LINK IN GP1FA502RZ JA1703,JA1704 OPTICAL LINK OUT GP1FA502TZ FINPUT CONNECT ASSY SEMICONDUCTORS IC1401 M62429FP IC1451 UPC4570G2 D1401 UDZS5.1B CAPACITORS C1406,C1407 CCSQCH101J50 C1401-C1405,C1451,C1452 CEAT100M50 C1454,C1455 CKSRYB103K50 C1453 CKSRYB472K50 RESISTORS R1405 RS3LMF391J Other Resistors RS1/16S###J OTHERS Mark No. Description Part No. www. xiaoyu163. com QQ 376315150 9 9 2 8 9 4 2 9 8 TEL 13942296513 9 9 2 8 9 4 2 9 8 0 5 1 5 1 3 6 7 3 Q Q TEL 13942296513 QQ 376315150 892498299 TEL 13942296513 QQ 376315150 892498299 http://www.xiaoyu163.com VSX-45TX 107 5 6 7 8 5 6 7 8 C D F A B E CN1407 5P PLUG AKP7055 CN1406,CN1408 9P PLUG AKP7057 CN1405 17P PLUG AKP7061 CN1402 7P SOCKET AKP7067 CN1404 9P SOCKET AKP7068 CN1403 13P SOCKET AKP7070 CN1401 15P SOCKET AKP7071 GCOAXIAL IN ASSY SEMICONDUCTORS IC1681 PCM2902EG IC1881 TC74HCU04AF IC1682 TC7SET08F COILS AND FILTERS F1881 CHIP BEAD DTF1064 CAPACITORS C1688 CCSRCH180J50 C1687 CCSRCH220J50 C1885,C1886 CCSRCH470J50 C1887 CCSRCH471J50 C1681 CEAT470M16 C1890 CEAT470M25 C1680,C1697,C1857,C1858 CKSRYB103K50 C1883,C1884,C1888,C1897 CKSRYB103K50 C1683-C1686,C1689,C1690,C1698 CKSRYB104K16 RESISTORS All Resistors RS1/16S###J OTHERS X1681 CRYSTAL RESONATOR ASS7047 (12.0MHz) CN1801 19P FFC CONNECTOR 52045-0945 JA1801 2P PIN JACK AKB7131 CN1803 9P SOCKET AKP7068 JA1681 USB CONNECTOR DKN1237 CN1802 20P FFC CONNECTOR VKN1196 HVIDEO ASSY SEMICONDUCTORS IC933 BU4053BCF IC902 NJM2279M IC901,IC931 NJM2296M IC932 NJM2596M IC903 TC4W53FU Q901,Q931,Q932 2SA933S Q933 IMZ1A D901,D902 DAN202K CAPACITORS C981-C983 CCSRCH101J50 C919,C960,C963 CCSRCH150J50 C922-C925,C969-C974 CCSRCH181J50 C955 CCSRCH330J50 C914 CCSRCH470J50 C901-C904,C932,C935,C938 CEAT101M10 C941 CEAT101M10 C905,C906,C909,C910,C918 CEAT101M16 C945,C946,C951,C952,C959 CEAT101M16 Mark No. Description Part No. C933,C936,C939,C942 CEAT1R0M50 C920,C961,C964 CEAT470M25 C943 CKSRYB103K50 C931,C934,C937,C940,C944 CKSRYB104K16 C966-C968 CKSRYB104K16 C907,C908,C911-C913 CKSRYB473K50 C915,C916,C921,C947,C948 CKSRYB473K50 C953,C954,C957,C958,C962 CKSRYB473K50 C965 CKSRYB473K50 RESISTORS R920,R966 RD1/2VM221J R969 RD1/2VM471J Other Resistors RS1/16S###J OTHERS JA904 COMB. JACK (S+1P) AKB7146 JA901-JA903 COMB. JACK (2S+2P) AKB7147 CN901 15P SOCKET AKP7071 JA905 1P PIN JACK VKB1122 ICOMPONENT ASSY SEMICONDUCTORS IC1051 PDC084A IC1001 TC74HC4053AF IC1002,IC1003 TK15450M Q1051 DTC124EK D1051,D1052 1SS355 COILS AND FILTERS L1051,L1052 LCYA100J2520 L1053 LCYA330J2520 CAPACITORS C1060 CCSRCH101J50 C1055 CCSRCH150J50 C1056 CCSRCH180J50 C1057,C1058 CCSRCH240J50 C1024-C1026,C1059 CCSRCH470J50 C1017,C1018,C1023,C1029 CCSRCK2R0C50 C1013,C1014,C1019,C1020 CEAT101M16 C1027,C1028,C1051,C1053,C1063 CEAT101M16 C1007,C1008,C1015,C1016 CKSRYB103K50 C1021,C1022 CKSRYB103K50 C1052,C1054,C1061,C1062 CKSRYB473K50 RESISTORS All Resistors RS1/16S###J OTHERS X1051 CRYSTAL RESONATOR ASS1056 (14.32MHz) CN1001 9P SOCKET AKP7068 JA1001-JA1003 3P PIN JACK VKB1150 JRS232C ASSY SEMICONDUCTORS > IC1932 AEK7020 > IC1931 BA12T IC1901 SP232AEN Q1931 2SB1237X Q1901 2SC1740S Mark No. Description Part No. www. xiaoyu163. com QQ 376315150 9 9 2 8 9 4 2 9 8 TEL 13942296513 9 9 2 8 9 4 2 9 8 0 5 1 5 1 3 6 7 3 Q Q TEL 13942296513 QQ 376315150 892498299 TEL 13942296513 QQ 376315150 892498299 http://www.xiaoyu163.com VSX-45TX 108 1 2 3 4 1 2 3 4 C D F A B E Q1932 DTC124EK D1901,D1902,D1921 1SS355 COILS AND FILTERS L1901 LAU1R0J CAPACITORS C1901 CEAT101M16 C1903-C1906 CEAT1R0M50 C1932,C1933 CEHAT100M50 C1902,C1907,C1911,C1921,C1931 CKSRYB103K50 C1934-C1936 CKSRYB103K50 C1909 CKSRYB331K50 RESISTORS R1932 RS3LMF470J Other Resistors RS1/16S###J OTHERS JA1921 MULTI-ROOM JACK AKN7014 CN1901 D-SUB SOCKET AKP1213 CN1902 KR CONNECTOR B8B-PH-K CN1903 4P SOCKET KP200TA4L JA1922 REMOTE CONTROL JACK RKN1004 SCREW TERMINAL VNE1948 KMAIN CONTROL ASSY SEMICONDUCTORS IC502,IC503 BU4094BCF IC202 NJM4558MD IC501 PD5770B8 IC511 TC74VHC08FT IC302 TC74VHCT244AFT IC103 TC9163AF IC201 TC9164AF IC104 TC9215AF IC101 TC9274F-019 IC701-IC704 TC94A07F IC102,IC711-IC714 UPC4570G2 Q601 2SC1740S Q101,Q102 2SC3326 Q103,Q251,Q511 DTA124EK Q501 DTC143EK D501,D511,D521-D524 1SS355 D821,D822,D831,D832 1SS355 D601 UDZ11B COILS AND FILTERS L501 LCYA2R2J2520 L891-L895 CHIP SOLID INDUCTOR QTL1013 CAPACITORS C508 ACH7132 C719,C720,C739,C740 CCSRCH100D50 C759,C760,C779,C780 CCSRCH100D50 C125-C127,C151-C153 CCSRCH101J50 C201-C203,C725-C727 CCSRCH101J50 C745-C747,C765-C767 CCSRCH101J50 C785-C787 CCSRCH101J50 C139,C140,C662 CCSRCH470J50 C131,C132,C621,C622 CEAT100M50 Mark No. Description Part No. C701,C702,C713,C714 CEAT100M50 C733,C734,C753,C754 CEAT100M50 C773,C774 CEAT100M50 C303,C304,C602 CEAT101M16 C211,C212 CEAT1R0M50 C506,C513 CEAT221M10 C505 CEAT2R2M50 C503 CEAT331M10 C717,C718,C721,C722 CEAT470M25 C737,C738,C741,C742 CEAT470M25 C757,C758,C761,C762 CEAT470M25 C777,C778,C781,C782 CEAT470M25 C133,C134 CEAT470M50 C511 CEAT471M10 C748,C749,C768,C769 CEV100M16 C788,C789 CEV100M16 C510 CKSQYF105Z16 C601 CKSQYF225Z16 C128,C129,C137,C138 CKSRYB103K50 C155-C157,C204,C205 CKSRYB103K50 C213,C214,C251,C302,C502 CKSRYB103K50 C507,C509,C514,C515,C535 CKSRYB103K50 C540,C598,C711,C712 CKSRYB103K50 C723,C724,C731,C732 CKSRYB103K50 C743,C744,C751,C752 CKSRYB103K50 C763,C764,C771,C772 CKSRYB103K50 C783,C784,C891,C892,C894 CKSRYB103K50 C512 CKSRYB472K50 C154,C599,C821,C831 CKSRYB473K50 RESISTORS All Resistors RS1/16S###J OTHERS X501 CERAMIC RESONATOR ASS7032 (15.7MHz) CN552 10P FFC CONNECTOR 52045-1045 CN601 13P FFC CONNECTOR 52045-1345 CN801 24P FFC CONNECTOR 52045-2445 CN501 32P FFC CONNECTOR 52045-3245 CN201 7P PLUG AKP7056 CN103 9P PLUG AKP7057 CN102 13P PLUG AKP7059 CN101 15P PLUG AKP7060 CN351 7P SOCKET AKP7067 CN2,CN3 9P SOCKET AKP7068 CN502 19P SOCKET AKP7073 CN302 21P SOCKET AKP7074 CN551 KR CONNECTOR B8B-PH-K CN1 3P PLUG KM250NA3L JA591 REMOTE CONTROL JACK RKN1004 JA592 REMOTE CONTROL JACK RKN1026 PCB BINDER VEF1040 JA111-JA113 4P PIN JACK VKB1132 CN301 21P FFC CONNECTOR VKN1197 LMIC & F.OPT IN ASSY COILS AND FILTERS L1601 CHIP FERRITE BEAD ATL7002 Mark No. Description Part No. www. xiaoyu163. com QQ 376315150 9 9 2 8 9 4 2 9 8 TEL 13942296513 9 9 2 8 9 4 2 9 8 0 5 1 5 1 3 6 7 3 Q Q TEL 13942296513 QQ 376315150 892498299 TEL 13942296513 QQ 376315150 892498299 http://www.xiaoyu163.com VSX-45TX 109 5 6 7 8 5 6 7 8 C D F A B E L1602,L1603 QTL1013 CHIP SOLID INDUCTOR CAPACITORS C1601,C1606 CCSRCH471J50 C1603 CEAL470M16 C1611 CKSRYB102K50 C1602,C1612,C1614 CKSRYB103K50 RESISTORS All Resistors RS1/16S###J OTHERS CN1601 4P FFC CONNECTOR 52044-0445 J1601 CORD WITH PLUG ADX7417 JA1601 OPTICAL LINK IN GP1FA502RZ JA1606 REMOTE CONTROL JACK RKN1004 CN1602 KR CONNECTOR S3B-PH-K MMIC AMP ASSY SEMICONDUCTORS > IC4751 NJM78L05A IC4752 UPC4570G2 D4751,D4752 UDZS5.1B CAPACITORS C4753 CCSRCH101J50 C4754 CCSRCH330J50 C4751,C4752,C4755-C4757 CEAT100M50 C4758,C4762-C4765 CKSRYB473K50 RESISTORS R4756 RD1/4MUF471J Other Resistors RS1/16S###J OTHERS CN4752 4P JUMPER CONNECTOR 52147-0410 CN4751 KR CONNECTOR B3B-PH-K PCB BINDER VEF1040 KN4751 EARTH METAL FITTING VNF1084 NDSP CONNECTION ASSY SEMICONDUCTORS IC1651 TC74LVX244FT COILS AND FILTERS L1651 QTL1013 CAPACITORS C1651 CKSRYB103K50 RESISTORS All Resistors RS1/16S###J OTHERS CN1652-CN1654 17P SOCKET AKP7072 CN1651 B TO B CONNECTOR 50P AKP7177 OPOWER AMP IN ASSY SEMICONDUCTORS Q4001 2SC2412K D4001 1SS355 Mark No. Description Part No. CAPACITORS C4002 CKSRYB104K16 C4001 CKSRYB223K50 RESISTORS All Resistors RS1/16S###J OTHERS 10P CABLE HOLDER 51048-1000 CN4001 24P FFC CONNECTOR 52044-2445 CN4003 17P PLUG AKP7061 CN4002 19P PLUG AKP7062 J12 JUMPER WIRE 10P D20PYY1010E CN4004 3P L TYPE PLUG KM250MA3L PFAN DRIVE ASSY SEMICONDUCTORS Q4056 2SA1037K Q4051 2SC4793 Q4054 2SD1859X Q4052 DTA124EK Q4055 DTC114EK Q4053 DTC124EK > D4051,D4052 1SR154-400 D4059 1SS355 D4054,D4055 UDZ12B D4053 UDZ27B D4057 UDZS5.1B CAPACITORS C4054 CEAT101M16 C4052 CEAT1R0M50 C4055,C4056 CEAT221M63 C4051 CEAT471M35 C4053 CKSRYB103K50 RESISTORS R4057,R4058 RS3LMF331J Other Resistors RS1/16S###J OTHERS CN4051 9P JUMPER CONNECTOR 52147-0910 CN4054 10P JUMPER CONNECTOR 52147-1010 QFAN CONNECTION ASSY SEMICONDUCTORS > IC4701,IC4702 AEK7023 OTHERS 9P CABLE HOLDER 51048-0900 CN4701 6P JUMPER CONNECTOR 52147-0610 J4701 JUMPER WIRE 9P D20PYY0915E CN4702 3P PLUG KM250MA3 RDSP ASSY SEMICONDUCTORS IC201 AK4114VQ IC561 AK4382AVT IC501,IC521,IC541 AK4383VT IC101 AK5380VT IC301,IC401 DSPC56367PV150 Mark No. Description Part No. www. xiaoyu163. com QQ 376315150 9 9 2 8 9 4 2 9 8 TEL 13942296513 9 9 2 8 9 4 2 9 8 0 5 1 5 1 3 6 7 3 Q Q TEL 13942296513 QQ 376315150 892498299 TEL 13942296513 QQ 376315150 892498299 http://www.xiaoyu163.com VSX-45TX 110 1 2 3 4 1 2 3 4 C D F A B E IC302,IC451 IS61LV6416-12T IC303 IS63LV1024-12T > IC901 NJM2391DL1-33 IC601,IC621,IC641,IC661,IC681 NJM4565MD > IC902 NJU7223DL1-18 IC471 PD8100A IC701 TC74VHC157FT IC304 TC74VHCU04FT IC503,IC705,IC706 TC7SH04FU IC305 TC7WH125FU Q681,Q682 2SK208 Q683,Q701,Q971,Q972,Q974 UN5112 Q684,Q702,Q973 UN5212 Q601,Q621,Q641,Q661 XP4506 D681,D682,D721 1SS355 D702 DAN202K D701,D971,D972 DAP202K D101-D104 RB501V-40 COILS AND FILTERS L301-L304,L401,L402,L451 ATL7002 CHIP FERRITE BEAD L471,L904,L906,L907 ATL7002 CHIP FERRITE BEAD L101-L104,L201-L203 QTL1013 CHIP SOLID INDUCTOR L305,L306,L501,L503,L511 QTL1013 CHIP SOLID INDUCTOR L521,L531,L541,L551,L561 QTL1013 CHIP SOLID INDUCTOR L571,L701,L705,L706 QTL1013 CHIP SOLID INDUCTOR L403 CHIP BEAD VTL1072 L502 CHIP BEAD VTL1077 CAPACITORS C339,C340 CCSRCH100D50 C202 CCSRCH150J50 C623,C625,C643-C646 CCSRCH151J50 C663-C666 CCSRCH151J50 C201 CCSRCH220J50 C204,C206,C209,C301,C302 CCSRCH471J50 C304,C306,C308,C309,C312 CCSRCH471J50 C314,C316,C318,C319 CCSRCH471J50 C321,C322,C325,C326 CCSRCH471J50 C329,C330,C332,C333,C335 CCSRCH471J50 C337,C345,C346,C402 CCSRCH471J50 C404-C408,C410-C418 CCSRCH471J50 C420-C422,C424-C426,C451 CCSRCH471J50 C471 CCSRCH471J50 C603-C606 CCSRCH820J50 C111,C112,C502,C522,C542 CEV100M16 C562,C607,C608,C627,C628 CEV100M16 C647,C648,C667,C668 CEV100M16 C681,C682 CEV100M16 C104,C105,C551,C907,C909 CEV101M16 C106 CEV2R2M50 C901,C902 CEV330M25 C210,C341,C401 CEV470M6R3 C212,C614,C624,C626 CKSRYB102K50 C683-C685,C689,C693,C695 CKSRYB102K50 Mark No. Description Part No. C925 CKSRYB102K50 C343,C429,C677,C678,C924 CKSRYB103K50 C101-C103,C205,C207,C208 CKSRYB104K16 C211,C305,C307,C310,C311 CKSRYB104K16 C313,C315,C324,C331,C334 CKSRYB104K16 C338,C348,C352,C409,C419 CKSRYB104K16 C423,C427,C452,C501,C503 CKSRYB104K16 C521,C541,C561,C591,C630 CKSRYB104K16 C701,C705,C706,C906,C908 CKSRYB104K16 C303,C403 CKSRYB105K6R3 C109,C110,C622 CKSRYB222K50 C601,C602,C609,C610 CKSRYB332K50 C621,C641,C642,C661,C662 CKSRYB392K50 C629,C649,C650,C669,C670 CKSRYB472K50 C971 CKSRYB472K50 C923 CKSRYB473K16 C203 CKSRYB474K10 C323,C428 CKSRYB563K16 C107,C611-C613,C615 CKSRYF104Z25 C671,C672,C694,C696-C698 CKSRYF104Z25 RESISTORS R851 RAB4C101J R204,R225,R226,R229,R701 RAB4C104J R712 RAB4C104J R221 RS1/16S1802F Other Resistors RS1/16S###J OTHERS CN102 B TO B CONNECTOR 50P AKP7176 X201 CRYSTAL RESONATOR ASS7025 (24MHz) X301 CRYSTAL RESONATOR ASS7040 (33MHz) CN702 10P FFC CONNECTOR VKN1414 CN101 20P FFC CONNECTOR VKN1424 CN601 21P FFC CONNECTOR VKN1425 CN701 22P FFC CONNECTOR VKN1426 KN931 EARTH METAL FITTING VNF1109 SDISPLAY ASSY SEMICONDUCTORS IC3000 PD5771A IC3002 RPM7140-H4 IC3001 TC7W53FU Q3003 2SA1037K Q3001,Q3002 DTC124EK Q3000 FMA1A Q3004 HN1C01FU D3002-D3008 1SS355 D3001 BR5064X D3009 DAN202K D3000 MAA5064X COILS AND FILTERS L3000 CHIP FERRITE BEAD ATL7002 SWITCHES AND RELAYS S3000-S3017 ASG7013 CAPACITORS Mark No. Description Part No. www. xiaoyu163. com QQ 376315150 9 9 2 8 9 4 2 9 8 TEL 13942296513 9 9 2 8 9 4 2 9 8 0 5 1 5 1 3 6 7 3 Q Q TEL 13942296513 QQ 376315150 892498299 TEL 13942296513 QQ 376315150 892498299 http://www.xiaoyu163.com VSX-45TX 111 5 6 7 8 5 6 7 8 C D F A B E C3003,C3004,C3007,C3024,C3025 CCSRCH101J50 C3020,C3021,C3026,C3027 CEJQ100M16 C3028,C3029 CEJQ101M10 C3008,C3012,C3035 CEJQ101M6R3 C3022,C3023 CEJQ330M25 C3000-C3002 CKSRYB102K50 C3009,C3011,C3032-C3034 CKSRYB103K50 C3036,C3037 CKSRYB103K50 C3006,C3031 CKSRYB104K16 C3010 CKSRYB153K50 C3030 CKSRYF104Z50 RESISTORS All Resistors RS1/16S###J OTHERS X3000 CERAMIC RESONATOR ASS7042 (4.19MHz) 4P CABLE HOLDER 51048-0400 5P CABLE HOLDER 51048-0500 7P CABLE HOLDER 51048-0700 CN3007 3P FFC CONNECTOR 52045-0345 CN3004 4P FFC CONNECTOR 52045-0445 CN3005 7P FFC CONNECTOR 52045-0745 CN3001 11P FFC CONNECTOR 52045-1145 CN3006 32P FFC CONNECTOR 52045-3245 V3000 FL TUBE AAV7087 J3008 JUMPER WIRE 4P D20PYY0415E J3002 JUMPER WIRE 5P D20PYY0510E J3003 JUMPER WIRE 7P D20PYY0715E FL HOLDER VNF1085 TVOLUME ASSY SWITCHES AND RELAYS S3402-S3404 ASG7013 S3401 ASX7037 CAPACITORS C3401,C3402 CKSRYB103K50 RESISTORS All Resistors RS1/16S###J OTHERS CN3401 5P JUMPER CONNECTOR 52147-0510 UMULTI JOG ASSY SWITCHES AND RELAYS S3452-S3455 ASG7013 S3451 ASX7038 CAPACITORS C3451,C3452 CKSRYB103K50 RESISTORS All Resistors RS1/16S###J OTHERS CN3451 7P JUMPER CONNECTOR 52147-0710 Mark No. Description Part No. VHEADPHONE ASSY CAPACITORS C1951,C1952 CKSRYB392K50 RESISTORS All Resistors RS1/16S###J OTHERS CN1951 3P FFC CONNECTOR 52045-0345 PHONE JACK AKN7029 KN1951 EARTH METAL FITTING VNF1084 WREGULATOR ASSY SEMICONDUCTORS IC2411 AEK7003 > IC2409 NJM78L05A > IC2404 NJM78M05FA > IC2403 NJM78M12FA > IC2401 NJM78M15FA > IC2405,IC2407 NJM78M56FA > IC2406 NJM79M05FA > IC2402 NJM79M15FA > Q2401 2SA1803 > D2401-D2404,D2407-D2410 1SR154-400 > D2418,D2419 1SR154-400 D2411 1SS355 > D2415 D3SBA20(B) D2405,D2406,D2413,D2414 RB501V-40 D2421,D2422 UDZ15B D2420 UDZS10B D2423,D2424 UDZS6.2B CAPACITORS C2446 CCSRCH101J50 C2440 CEANP470M35 C2443 CEAT101M10 C2415,C2416 CEAT101M16 C2408 CEAT101M25 C2405,C2406,C2410,C2429 CEAT221M35 C2411,C2412 CEAT222M16 C2435 CEAT2R2M50 C2401,C2402 CEAT332M35 C2442 CEAT470M50 C2441 CEAT470M63 C2436,C2439 CEAT471M16 C2433 CEAT472M16 C2451,C2452 CKSRYB102K50 C2403,C2404,C2407,C2409 CKSRYB103K50 C2413,C2414,C2428,C2434,C2453 CKSRYB103K50 C2424 CKSRYB473K50 C2444 CQMBA104J50 RESISTORS R2403 RD1/4MUF121J R2401 RD1/4MUF470J Other Resistors RS1/16S###J OTHERS 7P CABLE HOLDER 51048-0700 CN2401 8P JUMPER CONNECTOR 52147-0810 Y2401 BOARD IN JUMPER ADX7420 Mark No. Description Part No. www. xiaoyu163. com QQ 376315150 9 9 2 8 9 4 2 9 8 TEL 13942296513 9 9 2 8 9 4 2 9 8 0 5 1 5 1 3 6 7 3 Q Q TEL 13942296513 QQ 376315150 892498299 TEL 13942296513 QQ 376315150 892498299 http://www.xiaoyu163.com VSX-45TX 112 1 2 3 4 1 2 3 4 C D F A B E CN2411 7P PLUG AKP7056 CN2404,CN2406,CN2412,CN2414 AKP7057 9P PLUG CN2405 15P PLUG AKP7060 CN2407-CN2409 17P PLUG AKP7061 CN2413 19P PLUG AKP7062 CN2410 21P PLUG AKP7063 CN2403 4P PLUG KM200TA4 CN2415 3P SOCKET KP250NA3 KN2401-KN2403 VNF1084 EARTH METAL FITTING XPOWER AMP-L ASSY SEMICONDUCTORS > IC4101,IC4201,IC4301 PA9009A > IC4102,IC4202,IC4302 PBD001A > IC4103,IC4203,IC4303,IC4453 PBD002A Q4102,Q4202,Q4302 2SA1255 Q4101,Q4201,Q4301 2SC3326 D4102,D4104-D4107,D4202 1SS355 D4204-D4207,D4302,D4304-D4307 1SS355 D4101,D4103,D4201,D4203,D4301 UDZS10B D4303 UDZS10B CAPACITORS C4106,C4107,C4206,C4207 ACG7041 C4306,C4307 ACG7041 C4102,C4202,C4302 CCSRCH331J50 C4112,C4113,C4212,C4213 CCSRCH6R0D50 C4312,C4313 CCSRCH6R0D50 C4114,C4214,C4314 CEANPR22M50 C4103,C4203,C4303 CEAT331M10 C4401,C4402 CEAT331M63 C4108,C4109,C4208,C4209 CEAT470M16 C4308,C4309 CEAT470M16 C4104,C4105,C4204,C4205 CEAT470M63 C4304,C4305 CEAT470M63 C4110,C4111,C4210,C4211 CEHAT100M2A C4310,C4311 CEHAT100M2A C4101,C4201,C4301 CEHAT100M50 RESISTORS > R4131,R4132,R4231,R4232 (0.1W) ACN7107 > R4331,R4332,R4482 (0.1W) ACN7107 > R4119,R4219,R4319 (0.22W/5W) ACN7111 Other Resistors RS1/16S###J OTHERS Y1 LEAD WITH HOUSING ADX7398 Y3 LEAD WITH HOUSING ADX7399 Y5 LEAD WITH HOUSING ADX7404 CN4401 17P SOCKET AKP7072 CN4403 3P L TYPE PLUG KM250MA3 CN4456 10P PLUG KM250NA10L KN4401,KN4402 VNF1084 EARTH METAL FITTING YPOWER AMP-R ASSY SEMICONDUCTORS > IC4151,IC4251,IC4351 PA9009A > IC4152,IC4252,IC4352,IC4452 PBD001A Mark No. Description Part No. > IC4153,IC4253,IC4353 PBD002A Q4152,Q4252,Q4352 2SA1255 Q4403,Q4404 2SC2412K Q4151,Q4251,Q4351 2SC3326 D4152,D4154-D4157,D4252 1SS355 D4254-D4257,D4352,D4354-D4357 1SS355 D4151,D4153,D4251,D4253,D4351 UDZS10B D4353 UDZS10B CAPACITORS C4156,C4157,C4256,C4257 ACG7041 C4356,C4357 ACG7041 C4152,C4252,C4352 CCSRCH331J50 C4162,C4163,C4262,C4263 CCSRCH6R0D50 C4362,C4363 CCSRCH6R0D50 C4164,C4264,C4364 CEANPR22M50 C4153,C4253,C4353,C4405 CEAT331M10 C4403,C4404 CEAT331M63 C4158,C4159,C4258,C4259 CEAT470M16 C4358,C4359 CEAT470M16 C4154,C4155,C4254,C4255 CEAT470M63 C4354,C4355 CEAT470M63 C4160,C4161,C4260,C4261 CEHAT100M2A C4360,C4361 CEHAT100M2A C4151,C4251,C4351 CEHAT100M50 RESISTORS > R4181,R4182,R4281,R4282 (0.1W) ACN7107 > R4381,R4382,R4481 (0.1W) ACN7107 > R4169,R4269,R4369 (0.22W/5W) ACN7111 Other Resistors RS1/16S###J OTHERS Y1 LEAD WITH HOUSING ADX7397 Y4 LEAD WITH HOUSING ADX7400 Y6 LEAD WITH HOUSING ADX7404 CN4402 19P SOCKET AKP7073 CN4454 10P PLUG KM250NA10L KN4403,KN4404 VNF1084 EARTH METAL FITTING ZPOWER AMP-C ASSY SEMICONDUCTORS > IC4451 PA9009A Q4452 2SA1255 Q4451 2SC3326 D4452,D4454-D4457 1SS355 D4451,D4453 UDZS10B CAPACITORS C4456,C4457 ACG7041 C4452 CCSRCH331J50 C4462,C4463 CCSRCH6R0D50 C4464 CEANPR22M50 C4453 CEAT331M10 C4458,C4459 CEAT470M16 C4454,C4455 CEAT470M63 C4460,C4461 CEHAT100M2A C4451 CEHAT100M50 RESISTORS > R4469 (0.22W/5W) ACN7111 Other Resistors RS1/16S###J Mark No. Description Part No. www. xiaoyu163. com QQ 376315150 9 9 2 8 9 4 2 9 8 TEL 13942296513 9 9 2 8 9 4 2 9 8 0 5 1 5 1 3 6 7 3 Q Q TEL 13942296513 QQ 376315150 892498299 TEL 13942296513 QQ 376315150 892498299 http://www.xiaoyu163.com VSX-45TX 113 5 6 7 8 5 6 7 8 C D F A B E OTHERS CN4453,CN4455 10P SOCKET KP250NA10 a SP/PS ASSY SEMICONDUCTORS Q4602,Q4603 RN1903 Q4601 RN4903 D4601-D4610 1SS355 COILS AND FILTERS L4601-L4607 AF CHOKE COIL ATH1053 L4608,L4609 NOISE FILTER RTF1167 SWITCHES AND RELAYS RY4601-RY4605 ASR7014 CAPACITORS > C4621,C4622 ACH7169 C4623 CEAT101M50 C4601-C4607 CFTYA104J50 C4625-C4631 CQMBA103J50 RESISTORS > R4621-R4627 RD1/2LMF4R7J R4628-R4632 RD1/2VM331J R4615,R4616 RD1/4MUF473J > R4601-R4607 RS1LMF4R7J > R4611,R4612 RS2LMF331J Other Resistors RS1/16S###J OTHERS 6P CABLE HOLDER 51048-0600 8P CABLE HOLDER 51048-0800 Y13 BOARD IN JUMPER ADX7291 CN4611 8P SPEAKER TERMINAL AKE7074 CN4612 6P SPEAKER TERMINAL AKE7075 J4602 JUMPER WIRE 8P D20PYY0830E CN4610,CN4613 5P PLUG KM200TA5 b DIODE ASSY SEMICONDUCTORS > D2241,D2242 LN6SB60-4003 c TRANS 2-1 ASSY SEMICONDUCTORS > IC2201,IC2202 AEK7016 Q2202 RN4903 Q2201 UN521L > D2201 S1WB(A)60SD D2202 UDZ16B D2207,D2208 UDZS22B D2203-D2206,D2209-D2212 UDZS9.1B CAPACITORS > C2202,C2203 ACH1237 C2207,C2208 ACH7173 C2209,C2210 CEAT101M63 C2211,C2212 CEAT221M63 Mark No. Description Part No. RESISTORS > R2205,R2206 RS1LMF332J Other Resistors RS1/16S###J OTHERS 6P CABLE HOLDER 51048-0600 6P CABLE HOLDER 51052-0600 H2201-H2204 FUSE CLIP AKR1004 J2201 JUMPER WIRE6P D20PYY0615E J10 JUMPER WIRE D25PYY0607E d VH TR ASSY SEMICONDUCTORS > Q2232 2SA1837 > Q2231 2SC4793 > D2231,D2232 1SR154-400 RESISTORS All Resistors RS1/16S###J OTHERS CN2231 6P L TYPE CONNECTOR KPD6L e TRANS 2-2 ASSY SEMICONDUCTORS > IC2251,IC2252 AEK7016 > IC2253 AEK7019 CAPACITORS C2251-C2253 CQMBA104J50 RESISTORS > R2252 RD1/4MUF100J OTHERS 7P CABLE HOLDER 51048-0700 f TRANS 1 ASSY TRANS 1 Assy has no service parts. g PRIMARY ASSY SEMICONDUCTORS > IC2001 NJM78M56FA Q2001 KRC101M D2002,D2004,D2005 1SS355 > D2001 S1WB(A)60SD D2003 UDZS5.1B COILS AND FILTERS > L2001 LINE FILTER ATF7018 L2002,L2003 FERRITE BEAD VTH1013 TRANSFORMERS > T2001 ATT7043 SWITCHES AND RELAYS > RY2001 ASR7025 CAPACITORS > C2001,C2002 ACE7013 > C2003 ACG7033 Mark No. Description Part No. www. xiaoyu163. com QQ 376315150 9 9 2 8 9 4 2 9 8 TEL 13942296513 9 9 2 8 9 4 2 9 8 0 5 1 5 1 3 6 7 3 Q Q TEL 13942296513 QQ 376315150 892498299 TEL 13942296513 QQ 376315150 892498299 http://www.xiaoyu163.com VSX-45TX 114 1 2 3 4 1 2 3 4 C D F A B E C2008 CEAT102M25 C2009 CEAT221M25 C2005-C2007,C2011,C2012 CKSRYB103K50 C2004 CQMA103J50 RESISTORS > R2001 (2.2MW, 1/2W) RCN1080 R2002 RD1/2VM101J Other Resistors RS1/16S###J OTHERS CN2002 11P FFC CONNECTOR 52045-1145 > 2004 1P AC OUTLET AKP1033 H2001,H2002 FUSE CLIP AKR7001 CN2003,CN2004 5P SOCKET KP200TA5L > CN2001 AC CORD SOCKET RKP1751 SCREW TERMINAL VNE1948 KN2001 EARTH METAL FITTING VNF1084 Mark No. Description Part No. www. xiaoyu163. com QQ 376315150 9 9 2 8 9 4 2 9 8 TEL 13942296513 9 9 2 8 9 4 2 9 8 0 5 1 5 1 3 6 7 3 Q Q TEL 13942296513 QQ 376315150 892498299 TEL 13942296513 QQ 376315150 892498299 http://www.xiaoyu163.com VSX-45TX 115 5 6 7 8 5 6 7 8 C D F A B E 6. ADJUSTMENT MPX SG FM SG PRODUCT DC Voltmeter L201 IC201 pin 21 pin 23 FM/AM TUNER MODULE A SIDE B Step No. Adjustment Title ANT. Input level and signal condition Adjustment Input Level (dBµV) Adjust point Contents Frequency (MHz) Modulation 1 T-METER Adjustment 98 OFF 80 L201 Adjust L201 so that the DC voltage between Pin 21 and Pin 23 of IC201 (Test point Vtm) gets within 0 ± 50mV. AM Tuner Section • There is no adjustment in the AM tuner. FM75Ω antenna terminal Fig.1 Adjustment Wiring Diagram Fig.2 Adjustment Point FM Tuner Section • Set the mode selector to FM BAND. • Connect the wiring as shown in Fig. 1. www. xiaoyu163. com QQ 376315150 9 9 2 8 9 4 2 9 8 TEL 13942296513 9 9 2 8 9 4 2 9 8 0 5 1 5 1 3 6 7 3 Q Q TEL 13942296513 QQ 376315150 892498299 TEL 13942296513 QQ 376315150 892498299 http://www.xiaoyu163.com VSX-45TX 116 1 2 3 4 1 2 3 4 C D F A B E 7. GENERAL INFORMATION 7.1 DIAGNOSIS 7.1.1 PROTECTION CIRCUIT CONTROL SPECIFICATION TEMPIN (V) Temperature (°C) Fan Remarks More than 4.10 3.83 to 4.09 2.91 to 3.82 2.58 to 2.90 Less than 2.52 More than 125 110 to 125 80 to 110 70 to 80 Less than 70 ON ON ON Leading hold OFF Mute ON & speaker relay OFF : The warning indication "OVERHEAT" Leading hold Mute OFF & speaker relay ON : Normal mode TEMPIN (V) Temperature (°C) Fan Remarks More than 3.58 3.30 to 3.57 2.91 to 3.29 2.53 to 2.90 Less than 2.52 More than 100 90 to 100 80 to 90 70 to 80 Less than 70 ON ON ON Leading hold OFF Mute ON & speaker relay OFF : The warning indication "OVERHEAT" Leading hold Mute OFF & speaker relay ON : Normal mode Microcomputer-related ports FAN_DRIVE (Expansion IC) : For Fan on/off TEMP_IN (pin 94) Input port (A/D) : To detect temperature FAN_STOP (pin 95) Input port : To detect Fan forced stop OL_DET (pin 73) Input port : To detect overloading at the amplifier (Interrupt port) DC_DET (pin 63) Input port : For DC detection The following control processes are activated immediately before the relay system is turned on upon power-on. The time is 4.8 seconds after power-on. (Control of the relay system is enabled 5.2 seconds after power-on.) Only DC detection is enabled 2 seconds after power-on to activate it before other protection functions. 1 Thermal and Fan detection, and Fan control 1) Thermal detection and Fan control Valid with American and Japanese models only. 2) Fan detection If the fan is forcibly stopped, the FAN_DET port becomes "L" Detecting "L" the microcomputer performs the following operations: 1. System muting on 2. Protection relays off The warning indication "FAN STOP" appears (flashing) on the FL display. If this status continues for more than 3 seconds, the power is turned off (for Standby mode). If the port becomes "H" within 3 seconds, the unit resets automatically. FAN_DET port performs the chattering check for 7 msec. In addition, there is the case that detection delays for maximum 20 msec because performs monitor of FAN_DET port with a main loop. 2 Overload detection (abnormality detection) If the speaker terminals are short-circuited or low-load driving is detected, the OL_DET port becomes "L" Detecting "L" edge interrupt in an interrupt process, the microcomputer performs the following operations: 1. System muting on 2. Speaker relay off (Control with the display microcomputer) 3. Power off (Standby mode) 3 DC detection (defect detection) Only DC detection is enabled 2 seconds after power-on. If there is a fault in the power amplifier or a high-level signal lower than5 Hz is input, the DC_DET port becomes "L" Detecting "L" the microcomputer performs the following operations: 1. System muting on 2. Speaker relay off (Control with the display microcomputer) The warning indication "AMP ERR" appears on the FL display. If this status continues for more than 3 seconds, the power is turned off (for Standby mode) and flashes the standby LED. Do not accept the key input afterward. (Flash it always till turns the primary side off.) If the port becomes "L" within 3 seconds, the unit resets automatically. DC_DET port performs the chattering check for 1 msec. In addition, there is the case that detection delays for maximum 20 msec because performs monitor of DC_DET port with a main loop. Even if turns the primary side off and turns on once again, standby LED flashes as it is. If detects DC once and turned the power off, do not accept the key input afterward. However, power on is possible when the following key was pressed to be able to key input in the protection line and service. 1. Test mode (remote control code : A55F) 2. When the STEREO/DIRECT key and SIGNAL SELECT key are both held pressed for 2 seconds. (Be effective when turned the power off by DC detection regarding 2.) Valid with European and other general-area models only. * By poor contact of Thermistor and alien substance mixture, there are the following cases displayed FL. Become STBY after having done flushing with "THDCT NG" for three seconds. By opening of thermistor junction or energization in very cold place (less than -15°C),TEMP line becomes high impedance. And when TEMP port became equal to or less than 0.1V. www. xiaoyu163. com QQ 376315150 9 9 2 8 9 4 2 9 8 TEL 13942296513 9 9 2 8 9 4 2 9 8 0 5 1 5 1 3 6 7 3 Q Q TEL 13942296513 QQ 376315150 892498299 TEL 13942296513 QQ 376315150 892498299 http://www.xiaoyu163.com VSX-45TX 117 5 6 7 8 5 6 7 8 C D F A B E PROTECT CHECK DC 003 PROTECT CHECK OVERLOAD 002 PROTECT CHECK FANTOP 000 PROTECT CHECK TEMP 000 4 Diagnostic mode This mode is only for servicing and checking the circuit design, and not open to users. When the STEREO/DIRECT key and TONE + key are both held pressed for 2 seconds in Standby mode, the power is turned on, and the number of times of each defect or Speaker relay off by abnormality detection is sequentially displayed on the FL display. Displayed items: • DC detection • Overload detection • Fan detection • Temperature detection Hold the STEREO/DIRECT key and TONE + key pressed for 2 seconds in Standby mode. When the MULTI CH IN key and TONE − key are both held pressed for 2 seconds in standby mode, all clear the counter for detection. Protection Process List Item Purpose Detection Method Process Warning Indication Remarks DC detection To detect amplifier damage (defect status) A process to protect speakers (for protection of connected external devices) Detects when the DC_DET port becomes "L". Turns muting on and speaker relay off, then turns off the power after 3 seconds. Flashing "AMP ERR" for 3 seconds. Flash the standby LED after the power off. Once detected and turned the power off, input a key never again. AMP overload To detect overloading (abnormal status) With low- load driving or a short circuit of the speaker terminals (for protection of the amplifier) Detects when the AMP_OL port becomes "L" (checks by interrupt). Turns muting on and speaker relay off, and immediately turns off the power. None Fan control Protection function against a temperature rise at the heat sink HY, F : Detect temperature more than 100°C. KU, J : Detect temperature more than 125°C. Turns muting on and speaker relay off. Rotate the fan Continue flasing with "OVERHEAT" HY, F : Detect temperature of 90 to 100°C. KU, J : Detect temperature of 110 to 125°C. Rotate the fan Mute, relay and warning indications is leading hold. HY, F : Detect temperature of 80 to 90°C. KU, J : Detect temperature of 80 to 110°C. Rotate the fan Mute off & relay on (normal mode) Detect temperature of 70 to 80°C. Fan is leading hold A condition except the above. Stop the fan Fan stop To know that the rotating fan is forcibly stopped Detects when the FAN_DET port becomes "L". Turns muting on and speaker relay off, then turns off the power after 3 seconds. Flashing "FAN STOP" for 3 seconds If the FAN_DET port becomes "H" within 3 seconds, the unit resets automatically. After the power off, the key input is possible once again. www. xiaoyu163. com QQ 376315150 9 9 2 8 9 4 2 9 8 TEL 13942296513 9 9 2 8 9 4 2 9 8 0 5 1 5 1 3 6 7 3 Q Q TEL 13942296513 QQ 376315150 892498299 TEL 13942296513 QQ 376315150 892498299 http://www.xiaoyu163.com VSX-45TX 118 1 2 3 4 1 2 3 4 C D F A B E 7.1.2 DIAGNOSTICS OF AMPLIFIER SECTION When DC detection worked (STBY IND. flashes for a long time) in the protection circuit of foregoing section (or there is not the speaker output, probably only 1CH), failure (damage) of the power amplifier section is considered. Because this receiver cannot diagnose the amplifier section by an electricity state by structure, please diagnose it in the following steps. Caution: When release the STBY (flashes) state before repair, Because there is the case that the damage progresses when turns the power on once again, please be careful. • According to a symptom, perform the following confirmation beforehand. 1. Are not Fuse and IC protector opening it? 2-a. When can turn on electricity, confirm that supply voltage of the point that can measure is appropriate. 2-b. Furthermore, confirm that voltage ((in a no signal) DC and the appropriate signal output) between GND and R4621- 4627 (Either of the amplifier side and the speaker terminal side is possible) (Or remove either of CN4601-4604). And limit failure CH. If was able to limit failure CH, diagnose the CH in the following steps. • Use the tester basically and check that each part is not damaged (resistance value / open / short circuit). About parts with damaged possibility, explain FL ch to an example in order. 1. R4131, 4132 (ACN7107: 0.1 Ω, 1W chip drain resistor) IC 4102, 4103 (PBD001A: Nch, PBD002A: Pch output POWER MOS Tr.) 2. R4119 (ACN7111: 0.22 Ω .5W ×2 cement source resistor) R4117, 4118 (RS1/16S471J: 470 Ω chip resistor for protection circuit) D4101, 4103 (UDZS10B: 10V Zener diode for current limiting) D4102, 4104 (1SS355: Small signal diodes same as above) R4110, 4111 (RS1/16S560J: 56 Ω chip gate resistor) R4106, 4107 (RS1/16S101J:100 Ω chip IC4101 power filter resistor) 3. IC4101 (PA9009A: Power amplifier with output current bias Voltage step HIC) IC4701, 4702 (AEK7023: 200mA IC protector /FAN CONNECTION Assy) 4. Q2231, 2232 (2SC4793,2SA1837 TO-220 Tr. /VH TR Assy) www. xiaoyu163. com QQ 376315150 9 9 2 8 9 4 2 9 8 TEL 13942296513 9 9 2 8 9 4 2 9 8 0 5 1 5 1 3 6 7 3 Q Q TEL 13942296513 QQ 376315150 892498299 TEL 13942296513 QQ 376315150 892498299 http://www.xiaoyu163.com VSX-45TX 119 5 6 7 8 5 6 7 8 C D F A B E 7.1.3 TROUBLE SHOOTING • When a sound is not out in the surround mode with the digital signal input. • Suppose CR to be poor contact and that is not damaged. • This shows failure analysis of DSP Assy. Step 1 Step 3 Step 2 CN101 CN601 Is FFC inserted tight ? Insert it tight Is FFC inserted tight ? No Insert it tight No Yes CN102 Is connector inserted tight ? IC201 Confirm the poor contact of lead wire of CN101-pin 16. Check the COXIAL IN Assy or OPTICAL IN Assy and so on. Coax1 (pin 44) No Yes Confirm the poor contact of lead wire of CN101-pin 14. Check the COXIAL IN Assy or OPTICAL IN Assy and so on. Coax2 (pin 46) No Yes Confirm the poor contact of lead wire of CN101-pin 12. Check the COXIAL IN Assy or OPTICAL IN Assy and so on. Opt in1 (pin 48) No Yes Confirm the poor contact of lead wire of CN101-pin 10. Check the COXIAL IN Assy or OPTICAL IN Assy and so on. Opt in2 (pin 1) No Yes Confirm the poor contact of lead wire of CN101-pin 8. Check the COXIAL IN Assy or OPTICAL IN Assy and so on. RF Demodulator (pin 3) No Yes Confirm the poor contact of lead wire of CN101-pin 6. Check the COXIAL IN Assy or OPTICAL IN Assy and so on. USB (pin 5) No Yes Insert it tight No Yes IC901 Is there the input of 5V ? Check CN102 Is 3.3V outputting it ? No Replace IC901 No Yes IC902 Is 1.8V outputting it ? Replace IC902 No Yes Is SPDIF signal coming ? (be different with Function) A Yes End Yes End www. xiaoyu163. com QQ 376315150 9 9 2 8 9 4 2 9 8 TEL 13942296513 9 9 2 8 9 4 2 9 8 0 5 1 5 1 3 6 7 3 Q Q TEL 13942296513 QQ 376315150 892498299 TEL 13942296513 QQ 376315150 892498299 http://www.xiaoyu163.com VSX-45TX 120 1 2 3 4 1 2 3 4 C D F A B E IC701 End pin 1 Is input signal L ? Check IC401 (Go to Step 7) No Replace IC401 No Yes pins 2-4 Same signal waveform ? Replace IC701 No Yes pins 5-7 Same signal waveform ? Replace IC701 No Yes pins 11-9 Same signal waveform ? Replace IC701 No Yes pins 14-12 Same signal waveform ? Replace IC701 No Is outputting it ? Confirm the poor contact of lead wire of CN102-pin 18. Check the DSP CONNECTION Assy or REGULATOR Assy and so on. Check the DSP CONNECTION Assy or REGULATOR Assy. Front Opt in (pin 42) No Yes Yes Yes Confirm the poor contact of lead wire of CN102-pin 21. MCK (pin 23) LRCK (pin 24) Pin 31 Is input signal H ? Yes Pin 10 Is input signal L ? Replace IC201 or X201 Replace IC201 No Pin 29 Is oscillating it ? No Is outputting it ? No No No Yes Replace IC201 Is outputting it ? No Yes SDTO (pin 25) Replace IC201 Is outputting it ? No BCK (pin 26) Yes End Yes A Step 4 www. xiaoyu163. com QQ 376315150 9 9 2 8 9 4 2 9 8 TEL 13942296513 9 9 2 8 9 4 2 9 8 0 5 1 5 1 3 6 7 3 Q Q TEL 13942296513 QQ 376315150 892498299 TEL 13942296513 QQ 376315150 892498299 http://www.xiaoyu163.com VSX-45TX 121 5 6 7 8 5 6 7 8 C D F A B E Is not there poor contact of lead wire of IC301 or IC302 or IC303 ? IC304 End End End pin 8 Is 33MHz outputting it ? Replace IC304 or X301 Replace IC304 or X301 No Yes pin 10 Is 33MHz outputting it ? No Yes Step 5 IC301 pin 4 Is outputtingit ? No Yes Replace IC301 or IC302 or IC303 No Is not there poor contact of lead wire of IC301 or IC302 or IC303 ? pin 5 Is outputtingit ? No Yes Replace IC301 or IC302 or IC303 No Is not there poor contact of lead wire of IC301 or IC302 or IC303 ? pin 6 Is outputtingit ? No Yes Replace IC301 or IC302 or IC303 No Is not there poor contact of lead wire of IC301 or IC302 or IC303 ? pin 7 Is outputtingit ? No Yes Replace IC301 or IC302 or IC303 No Step 6 Is not there poor contact of lead wire of IC401 or IC451 ? IC401 pin 4 Is outputtingit ? No Yes Replace IC401 or IC451 Replace IC401 or IC451 Replace IC401 or IC451 No Is not there poor contact of lead wire of IC401 or IC451 ? pin 5 Is outputtingit ? No Yes No Is not there poor contact of lead wire of IC401 or IC451 ? pin 6 Is outputtingit ? No Yes No Step 7 www. xiaoyu163. com QQ 376315150 9 9 2 8 9 4 2 9 8 TEL 13942296513 9 9 2 8 9 4 2 9 8 0 5 1 5 1 3 6 7 3 Q Q TEL 13942296513 QQ 376315150 892498299 TEL 13942296513 QQ 376315150 892498299 http://www.xiaoyu163.com VSX-45TX 122 1 2 3 4 1 2 3 4 C D F A B E Is not there poor contact of lead wire of CN102- pin 13 ? IC503 End pin 4 Is outputtingit ? Replace IC503 Replace IC501 No Yes Step 8 IC501 pin 5 Is input signal H ? IC521 No Yes Check DSP CONNECTION Assy or REGULATOR Assy and so on. No pin 14 Is a signal outputting it ? No Yes Replace IC501 pin 16 Is a signal outputting it ? No Yes Replace IC521 IC541 pin 14 Is a signal outputting it ? No Yes Replace IC521 pin 16 Is a signal outputting it ? No Yes Replace IC541 IC561 pin 14 Is a signal outputting it ? No Yes Replace IC541 pin 16 Is a signal outputting it ? No Yes Replace IC561 End pin 14 Is a signal outputting it ? No Yes Replace IC561 pin 16 Is a signal outputting it ? No Yes Step 9 www. xiaoyu163. com QQ 376315150 9 9 2 8 9 4 2 9 8 TEL 13942296513 9 9 2 8 9 4 2 9 8 0 5 1 5 1 3 6 7 3 Q Q TEL 13942296513 QQ 376315150 892498299 TEL 13942296513 QQ 376315150 892498299 http://www.xiaoyu163.com VSX-45TX 123 5 6 7 8 5 6 7 8 C D F A B E Replace IC601 Replace IC601 IC601 IC621 No Yes pin 1 Is a signal outputting it ? pin 7 Is a signal outputting it ? No Yes Replace IC681 pin 7 Is a signal outputting it ? No Yes Replace IC621 IC641 pin 1 Is a signal outputting it ? No Yes Replace IC621 pin 7 Is a signal outputting it ? No Yes Replace IC641 End pin 1 Is a signal outputting it ? No Yes Replace IC641 pin 7 Is a signal outputting it ? No Yes Step 10 Replace IC681 Replace IC681 IC681 IC621 No Yes pin 1 Is a signal outputting it ? pin 7 Is a signal outputting it ? No Yes Replace IC621 IC641 pin 1 Is a signal outputting it ? No Yes Replace IC621 pin 7 Is a signal outputting it ? No Yes Replace IC641 End pin 1 Is a signal outputting it ? No Yes Replace IC641 pin 7 Is a signal outputting it ? No Yes IC661 Replace IC661 pin 1 Is a signal outputting it ? No Yes Replace IC661 pin 7 Is a signal outputting it ? No Yes Step 11 www. xiaoyu163. com QQ 376315150 9 9 2 8 9 4 2 9 8 TEL 13942296513 9 9 2 8 9 4 2 9 8 0 5 1 5 1 3 6 7 3 Q Q TEL 13942296513 QQ 376315150 892498299 TEL 13942296513 QQ 376315150 892498299 http://www.xiaoyu163.com VSX-45TX 124 1 2 3 4 1 2 3 4 C D F A B E 7.1.4 DISASSEMBLY 1 Remove the bonnet case (screws × 23) 2 Remove the heat sink block (screws × 10, connectors × 8) Bonnet and Heat Sink Block 1 ×2 2 ×2 2 2 ×2 2 ×2 2 2 POWER IN ASSY O POWER AMP-L ASSY X POWER AMP-C ASSY Z POWER AMP-R ASSY Y 2 www. xiaoyu163. com QQ 376315150 9 9 2 8 9 4 2 9 8 TEL 13942296513 9 9 2 8 9 4 2 9 8 0 5 1 5 1 3 6 7 3 Q Q TEL 13942296513 QQ 376315150 892498299 TEL 13942296513 QQ 376315150 892498299 http://www.xiaoyu163.com VSX-45TX 125 5 6 7 8 5 6 7 8 C D F A B E 1 Remove the DSP shield 45B (screws × 13) 2 Remove the DSP ASSY (screws × 4, connectors × 4) CN301 CN102 CN101 DSP Block 2 1 Remove six screws 3 Remove two screws 2 Remove two screws 4 Remove the front panel block Front Panel Block 3 1 1 1 1 1 1 1 1 1 1 1 MIC AMP ASSY VSX-45TX Only VSX-45TX Only M DSP CONNECTION ASSY N DSP ASSY R COAXIAL IN ASSY G MULTI JOG ASSY U VOLUME ASSY T FRONT IN ASSY D HEADPHONE ASSY V MIC & F.OPT IN ASSY L DISPLAY ASSY S DSP Shield 45B 2 2 2 2 1 1 1 1 2 2 1 2 3 3 4 2 ×31 2 2 Top View www. xiaoyu163. com QQ 376315150 9 9 2 8 9 4 2 9 8 TEL 13942296513 9 9 2 8 9 4 2 9 8 0 5 1 5 1 3 6 7 3 Q Q TEL 13942296513 QQ 376315150 892498299 TEL 13942296513 QQ 376315150 892498299 http://www.xiaoyu163.com VSX-45TX 126 1 2 3 4 1 2 3 4 C D F A B E 1 Remove 14 screws 2 Remove 13 screws 3 Remove the locking card spacer Rear Panel Block 4 1 1 1 1 1 1 1 2 2 2 ×2 ×5 ×7 ×2 1 Rear Panel REGULATOR ASSY Under Base 2 2 2 2 REGULATOR ASSY TO TRANS 2-2 ASSY W COAXIAL ASSY G DSP CONNECTION ASSY N MAIN CONTROL ASSY K RS232C ASSY J INPUT CONNECT ASSY F COMPONENT ASSY I 7.1 CH I/O ASSY B VIDEO ASSY H V-AUDIO IN ASSY C FAN DRIVE ASSY P FAN CONNECTION ASSY Q OPTICAL IN ASSY E SP/PS ASSY FM/AM TUNER MODULE A AA TRANS 2-1 ASSY AC DIODE ASSY AB TRANS 2-2 ASSY AE TRANS 1 ASSY AF PRIMARY ASSY AG VH TR ASSY AD VSX-45TX Only 3 Cutting Pliers Locking Card Spacer www. xiaoyu163. com QQ 376315150 9 9 2 8 9 4 2 9 8 TEL 13942296513 9 9 2 8 9 4 2 9 8 0 5 1 5 1 3 6 7 3 Q Q TEL 13942296513 QQ 376315150 892498299 TEL 13942296513 QQ 376315150 892498299 http://www.xiaoyu163.com VSX-45TX 127 5 6 7 8 5 6 7 8 C D F A B E 7.2 PARTS 7.2.1 IC Pin Function No. Pin Name I/O Function 1 SCK1 I Microcomputer communication clock 2 SS Microcomputer communication chip select I 3 HREQ O Microcomputer communication request 4 SDO0 O Digital audio data (Front L/R) 5 SDO1 O Digital audio data (Surround L/R) 6 SDO2 O Digital audio data (Center/Subwoofer) 7 SDO3 O Digital audio data (Front L/R) 8 VCCS − Interface power supply (3.3V) 9 GNDS − Interface GND 10 SDI1 I Digital audio data (Front L/R) 11 SDI0 I Digital audio data (Surround L/R) 12 FST O Digital audio LR clock 13 FSR I Digital audio LR clock 14 SCKT O Digital audio Bit clock 15 SCKR I Digital audio Bit clock 16 HCKT I Digital audio master clock 17 HCKR I Digital audio master clock 18 VCCQL − Quiet core power supply (1.8V) 19 GNDQ − Quiet GND 20 VCCQH − Quiet external power supply (3.3V) 21 HDS I Host data strobe 22 HRW I Host write data 23 HACK I Host acknowledge 24 HOREQ O Host request 25 VCCS − Interface power supply (3.3V) 26 GNDS − Interface GND 27 ADO O Digital audio data output 28 ACI I Digital audio master clock input 29 TIO0 I Timer input 30 HCS I Host chip select 31 HA9 O General-purpose port 32 HA8 O DSP master switch 33 HAS O General-purpose port 34 HAD7 O General-purpose port 35 HAD6 O General-purpose port 36 HAD5 O General-purpose port 37 HAD4 O General-purpose port 38 VCCH − Host power supply (3.3V) 39 GNDH − Host GND 40 HAD3 O General-purpose port 41 HAD2 O General-purpose port 42 HAD1 O General-purpose port 43 HAD0 O General-purpose port 44 RESET I Reset 45 VCCP − PLL power supply (1.8V) 46 PCAP I PLL capacitor connection pin 47 GNDP − PLL GND 48 SDI0_1 I Digital audio data (Surroundback L/R) • The information shown in the list is basic information and may not correspond exactly to that shown in the schematic diagrams. PDSPC56367PV150, PD5770A8, PD5771A, BU4094BCF, PCM2902EG List of IC DSPC56367PV150 (DSP ASSY: IC301) • DSP Microcomputer www. xiaoyu163. com QQ 376315150 9 9 2 8 9 4 2 9 8 TEL 13942296513 9 9 2 8 9 4 2 9 8 0 5 1 5 1 3 6 7 3 Q Q TEL 13942296513 QQ 376315150 892498299 TEL 13942296513 QQ 376315150 892498299 http://www.xiaoyu163.com VSX-45TX 128 1 2 3 4 1 2 3 4 C D F A B E No. Pin Name I/O Function 49 VCCQH − Quiet external power supply (3.3V) 50 FST_1 I Digital audio LR clock 51 AA2 O External memory chip select 52 CAS O Column address 53 SCKT_1 I Digital audio Bit clock 54 GNDQ − Quiet GND 55 EXTAL I External clock input 56 VCCQL − Quiet core power supply (1.8V) 57 VCCC − Bus control power supply (3.3V) 58 GNDC − Bus control GND 59 FSR_1 O Digital audio LR clock 60 SCKR_1 O Digital audio Bit clock 61 PINIT I PLL initial pin 62 TA I Transfer acknowledge 63 BR O Bus request 64 BB I Bus busy 65 VCCC − Bus control power supply (3.3V) 66 GNDC − Bus control GND 67 WR O External memory read enable 68 RD O External memory write enable 69 AA1 O Address control (Not used) 70 AA0 O Address control (Not used) 71 BG O Bus control 72 A0 O External memory address 73 A1 O External memory address 74 VCCA − Address bus power supply (3.3V) 75 GNDA − Address bus GND 76 A2 O External memory address 77 A3 O External memory address 78 A4 O External memory address 79 A5 O External memory address 80 VCCA − Address bus power supply (3.3V) 81 GNDA − Address bus GND 82 A6 O External memory address 83 A7 O External memory address 84 A8 O External memory address 85 A9 O External memory address 86 VCCA − Address bus power supply (3.3V) 87 GNDA − Address bus GND 88 A10 O External memory address 89 A11 O External memory address 90 GNDQ − Quiet GND 91 VCCQL − Quiet core power supply (1.8V) 92 A12 O External memory address 93 A13 O External memory address 94 A14 O External memory address 95 VCCQH − Quiet external power supply (3.3V) 96 GNDA − Address bus GND www. xiaoyu163. com QQ 376315150 9 9 2 8 9 4 2 9 8 TEL 13942296513 9 9 2 8 9 4 2 9 8 0 5 1 5 1 3 6 7 3 Q Q TEL 13942296513 QQ 376315150 892498299 TEL 13942296513 QQ 376315150 892498299 http://www.xiaoyu163.com VSX-45TX 129 5 6 7 8 5 6 7 8 C D F A B E No. Pin Name I/O Function 97 A15 O External memory address 98 A16 O External memory address 99 A17 O External memory address 100 D0 I/O External memory data 101 D1 I/O External memory data 102 D2 I/O External memory data 103 VCCD − Data bus power supply (3.3V) 104 GNDD − Data bus GND 105 D3 I/O External memory data 106 D4 I/O External memory data 107 D5 I/O External memory data 108 D6 I/O External memory data 109 D7 I/O External memory data 110 D8 I/O External memory data 111 VCCD − Data bus power supply (3.3V) 112 GNDD − Data bus GND 113 D9 I/O External memory data 114 D10 I/O External memory data 115 D11 I/O External memory data 116 D12 I/O External memory data 117 D13 I/O External memory data 118 D14 I/O External memory data 119 VCCD − Data bus power supply (3.3V) 120 GNDD − Data bus GND 121 D15 I/O External memory data 122 D16 I/O External memory data 123 D17 I/O External memory data 124 D18 I/O External memory data 125 D19 I/O External memory data 126 VCCQL − Quiet core power supply (1.8V) 127 GNDQ − Quiet GND 128 D20 I/O External memory data 129 VCCD − Data bus power supply (3.3V) 130 GNDD − Data bus GND 131 D21 I/O External memory data 132 D22 I/O External memory data 133 D23 I/O External memory data 134 MODD I Mode select D 135 MODC I Mode select C 136 MODB I Mode select B 137 MODA I Mode select A 138 SDI1_1 I Digital audio data (Center/Subwoofer) 139 TDO O JTAG data output 140 TDI I JTAG data input 141 TCK I JTAG test clock 142 TMS I JTAG mode select 143 MOSI I Microcomputer communication data input 144 MISO O Microcomputer communication data output www. xiaoyu163. com QQ 376315150 9 9 2 8 9 4 2 9 8 TEL 13942296513 9 9 2 8 9 4 2 9 8 0 5 1 5 1 3 6 7 3 Q Q TEL 13942296513 QQ 376315150 892498299 TEL 13942296513 QQ 376315150 892498299 http://www.xiaoyu163.com VSX-45TX 130 1 2 3 4 1 2 3 4 C D F A B E Pin Function No. Pin Name I/O Function 1 SCK1 I Microcomputer communication clock 2 SS Microcomputer communication chip select I 3 HREQ O Microcomputer communication request 4 SDO0 O Digital audio data (Front L/R) 5 SDO1 O Digital audio data (Surround L/R) 6 SDO2 O Digital audio data (Center/Subwoofer) 7 SDO3 O Digital audio data (Front L/R) 8 VCCS − Interface power supply (3.3V) 9 GNDS − Interface GND 10 SDI1 I Digital audio data (Front L/R) 11 SDI0 I Digital audio data (Surround L/R) 12 FST O Digital audio LR clock 13 FSR I Digital audio LR clock 14 SCKT O Digital audio Bit clock 15 SCKR I Digital audio Bit clock 16 HCKT I Digital audio master clock 17 HCKR I Digital audio master clock 18 VCCQL − Quiet core power supply (1.8V) 19 GNDQ − Quiet GND 20 VCCQH − Quiet external power supply (3.3V) 21 HDS I Host data strobe 22 HRW I Host write data 23 HACK I Host acknowledge 24 HOREQ O Host request 25 VCCS − Interface power supply (3.3V) 26 GNDS − Interface GND 27 ADO O Digital audio data output 28 ACI I Digital audio master clock input 29 TIO0 I Timer input 30 HCS I Host chip select 31 HA9 O General-purpose port 32 HA8 O General-purpose port 33 HAS O General-purpose port 34 HAD7 O General-purpose port 35 HAD6 O General-purpose port 36 HAD5 O General-purpose port 37 HAD4 O General-purpose port 38 VCCH − Host power supply (3.3V) 39 GNDH − Host GND 40 HAD3 O DVD-A switch 41 HAD2 O DIR oscillation stop 42 HAD1 O LSSN modxe (LFE addition) 43 HAD0 O Analog mode 44 RESET I Reset 45 VCCP − PLL power supply (1.8V) 46 PCAP I PLL capacitor connection pin 47 GNDP − PLL GND 48 SDI0_1 I Digital audio data (Surroundback L/R) DSPC56367PV150 (DSP ASSY: IC401) • DSP Microcomputer www. xiaoyu163. com QQ 376315150 9 9 2 8 9 4 2 9 8 TEL 13942296513 9 9 2 8 9 4 2 9 8 0 5 1 5 1 3 6 7 3 Q Q TEL 13942296513 QQ 376315150 892498299 TEL 13942296513 QQ 376315150 892498299 http://www.xiaoyu163.com VSX-45TX 131 5 6 7 8 5 6 7 8 C D F A B E No. Pin Name I/O Function 49 VCCQH − Quiet external power supply (3.3V) 50 FST_1 I Digital audio LR clock 51 AA2 O External memory chip select 52 CAS O Column address 53 SCKT_1 I Digital audio Bit clock 54 GNDQ − Quiet GND 55 EXTAL I External clock input 56 VCCQL − Quiet core power supply (1.8V) 57 VCCC − Bass control power supply (3.3V) 58 GNDC − Bass control GND 59 FSR_1 O Digital audio LR clock 60 SCKR_1 O Digital audio Bit clock 61 PINIT I PLL initial pin 62 TA I Transfer acknowledge 63 BR O Bus request 64 BB I Bus busy 65 VCCC − Bus control power supply (3.3V) 66 GNDC − Bus control GND 67 WR O External memory read enable 68 RD O External memory write enable 69 AA1 O Address control (Not used) 70 AA0 O Address control (Not used) 71 BG O Bus control 72 A0 O External memory address 73 A1 O External memory address 74 VCCA − Address bus power supply (3.3V) 75 GNDA − Address bus GND 76 A2 O External memory address 77 A3 O External memory address 78 A4 O External memory address 79 A5 O External memory address 80 VCCA − Address bus power supply (3.3V) 81 GNDA − Address bus GND 82 A6 O External memory address 83 A7 O External memory address 84 A8 O External memory address 85 A9 O External memory address 86 VCCA − Address bus power supply (3.3V) 87 GNDA − Address bus GND 88 A10 O External memory address 89 A11 O External memory address 90 GNDQ − Quiet GND 91 VCCQL − Quiet core power supply (1.8V) 92 A12 O External memory address 93 A13 O External memory address 94 A14 O External memory address 95 VCCQH − Quiet external power supply (3.3V) 96 GNDA − Address bus GND www. xiaoyu163. com QQ 376315150 9 9 2 8 9 4 2 9 8 TEL 13942296513 9 9 2 8 9 4 2 9 8 0 5 1 5 1 3 6 7 3 Q Q TEL 13942296513 QQ 376315150 892498299 TEL 13942296513 QQ 376315150 892498299 http://www.xiaoyu163.com VSX-45TX 132 1 2 3 4 1 2 3 4 C D F A B E No. Pin Name I/O Function 97 A15 O External memory address 98 A16 O External memory address 99 A17 O External memory address 100 D0 I/O External memory data 101 D1 I/O External memory data 102 D2 I/O External memory data 103 VCCD − Data bus power supply (3.3V) 104 GNDD − Data bus GND 105 D3 I/O External memory data 106 D4 I/O External memory data 107 D5 I/O External memory data 108 D6 I/O External memory data 109 D7 I/O External memory data 110 D8 I/O External memory data 111 VCCD − Data bus power supply (3.3V) 112 GNDD − Data bus GND 113 D9 I/O External memory data 114 D10 I/O External memory data 115 D11 I/O External memory data 116 D12 I/O External memory data 117 D13 I/O External memory data 118 D14 I/O External memory data 119 VCCD − Data bus power supply (3.3V) 120 GNDD − Data bus GND 121 D15 I/O External memory data 122 D16 I/O External memory data 123 D17 I/O External memory data 124 D18 I/O External memory data 125 D19 I/O External memory data 126 VCCQL − Quiet core power supply (1.8V) 127 GNDQ − Quiet GND 128 D20 I/O External memory data 129 VCCD − Data bus power supply (3.3V) 130 GNDD − Data bus GND 131 D21 I/O External memory data 132 D22 I/O External memory data 133 D23 I/O External memory data 134 MODD I Mode select D 135 MODC I Mode select C 136 MODB I Mode select B 137 MODA I Mode select A 138 SDI1_1 I Digital audio data (Center/Subwoofer) 139 TDO O JTAG data output 140 TDI I JTAG data input 141 TCK I JTAG test clock 142 TMS I JTAG mode select 143 MOSI I Microcomputer communication data input 144 MISO O Microcomputer communication data output www. xiaoyu163. com QQ 376315150 9 9 2 8 9 4 2 9 8 TEL 13942296513 9 9 2 8 9 4 2 9 8 0 5 1 5 1 3 6 7 3 Q Q TEL 13942296513 QQ 376315150 892498299 TEL 13942296513 QQ 376315150 892498299 http://www.xiaoyu163.com VSX-45TX 133 5 6 7 8 5 6 7 8 C D F A B E Pin Assignment (Top view) PD5770B8 (MAIN CONTROL ASSY: IC501) • Main Microcomputer 1 12VTRIGGER P96 2 NC P95 3 1394 RST P94 4 1394 CS P93 5 1394 DI P92 6 1394 DO P91 7 1394 CK P90 8 GND BYTE 9 GND CMVSS 10 NC P87 11 NC P86 12 XRESET XRESET 13 XOUT XOUT 14 GND VSS 15 XIN XIN 16 5V VCC 17 NMI P85 18 WAKEUP P84 19 1394 INT P83 20 1W WUP P82 21 NC P81 22 DISP EN P80 23 OSD RST P77 24 OSD CS P76 25 OSD CONT P75 26 DISP RST P74 27 DISP RDY OSD/DISP CLK P73 28 P72 29 DISP DO P71 30 OSD/DISP DI P70 31 232C RXD P67 32 232C TXD P66 33 JIG CLK P65 34 232C CTS P64 35 DSP DI P63 36 DSP DO DSP CLK DSP1 RST DSP2 RST DSP1 SS DSP2 SS DSP MODE1 DSP MODE2 DIR DI DIR DO P62 37 P61 38 P60 39 P57 40 P56 41 P55 42 P54 43 P53 44 P52 45 P51 46 DIR CS P50 47 DIR CK P47 48 DIR ERR P46 49 DIR RST P45 50 DECO MUTE P44 100 P97 NC 99 AVCC 5V 98 VREF 5V 97 P100 NC 96 AVSS GND 95 P101 94 P102 TEMP-IN FAN STOP 93 P103 WATT-IN 92 P104 91 P105 SIMUKE1 90 P106 DEM LOCK 89 P107 88 P00 NC NC SIMUKE2 87 P01 NC 86 P02 NC 85 P03 EXP ST 84 P04 EXP OE 83 P05 EXP CLK 82 P06 EXP DT 81 P07 TUNED 80 P10 STEREO 79 P11 TMUTE 78 P12 RDS FM+ 77 P13 RDS DT 76 P14 T-DI 75 P15 RDS CLK 74 P16 T-DO 73 P17 OL DET 72 P20 T-CE 71 P21 T-CLK 70 P22 TC9274DT 69 P23 TC9274CK 68 P24 TC9274ST 67 P25 MR MUTE 66 P26 AMUTE 65 P27 RY AC DC PROT 64 VSS GND 63 P30 62 VCC 5V 61 P31 NC 60 P32 furniture 59 P33 DSP HREQ2 58 P34 DSP HREQ1 57 P35 EVR DT 56 P36 EVR CLK 55 P37 EVR CS 54 P40 M62429 CLK 53 M62429 DT 52 P42 P41 DSP MUTE 51 P43 DAC RST www. xiaoyu163. com QQ 376315150 9 9 2 8 9 4 2 9 8 TEL 13942296513 9 9 2 8 9 4 2 9 8 0 5 1 5 1 3 6 7 3 Q Q TEL 13942296513 QQ 376315150 892498299 TEL 13942296513 QQ 376315150 892498299 http://www.xiaoyu163.com VSX-45TX 134 1 2 3 4 1 2 3 4 C D F A B E Pin Function No. Pin Name I/O Pin Function Active 1 12VTRIGGER O "H" at O 2 – O NC "L" fixed. 3 1394 RST O Standby for 1394 (Not used) "L" fixed. 4 1394 CS O Standby for 1394 (Not used) "L" fixed. 5 1394 DI O Standby for 1394 (Not used) "L" fixed. 6 1394 DO I Standby for 1394 (Not used) Standby with the circuit. 7 1394 CK O Standby for 1394 (Not used) "L" fixed. 8 GND − Ground 9 CNVSS − 5.1kΩ pulldown 10 – O L" fixed 11 – O L" fixed 12 XRESET − Reset 13 XOUT − Oscillator 14 GND − Ground 15 XIN − Oscillator 16 5V − 5V power supply 17 NMI I Cannot use it as usual input port (100kΩ pullup) 18 WAKEUP I Wakeup H 19 1394 INT I Standby for 1394 (Not used) Standby with the circuit. 20 1W WUP I Wakeup signal at standby (from the display microcomputer) (pulldown) H 21 – O L" fixed 22 DISP EN O Communication enabling signal to the display microcomputer H 23 OSD RST O OSD-IC reset signal L: reset, H: release reset 24 OSD CS O OSD-IC chip select signal H 25 OSD CONT. O At data transfer to the OSD-IC: "H" 26 DISP RST O Display microcomputer reset signal L: reset, H: release reset (pulldown) 27 DISP RDY I Communication enabling signal from the display microcomputer H 28 OSD/DISP CLK O Communication clock signal with the OSD-IC/display microcomputer 29 DISP DO I Communication data in signal with the display microcomputer (N ch open drain) 30 OSD/DISP DI O Communication data out signal with the OSD-IC/display microcomputer (N ch open drain: pullup) 31 232C RXD O For 232C rewriting (data output) 32 232C TXD I For 232C rewriting (data input) 33 CLK O Not used 34 232C CTS O For 232C rewriting (communication enabling) 35 DSP DI O Communication data out signal with the DSP1 microcomputer 36 DSP DO I Communication data in signal with the DSP2 microcomputer 37 DSP CLK O Communication clock signal with the DSP microcomputer 38 DSP1 RST O DSP1 microcomputer reset signal L: reset, H: release reset 39 DSP2 RST O DSP2 microcomputer reset signal L: reset, H: release reset 40 DSP1 SS O Slave select signal to DSP1 microcomputer L 41 DSP2 SS O Slave select signal to DSP2 microcomputer L 42 DSP MODE1 O Mode selection of DSP1 microcomputer (ROM/RAM) H: ROM mode, L: RAM (PPP) mode H 43 DSP MODE2 O Mode selection of DSP2 microcomputer (ROM/RAM) H: ROM mode, L: RAM (PPP) mode H 44 DIR DI O Communication data out signal with the DIR 45 DIR DO I Communication data in signal with the DIR/DAC 46 DIR CS O Communication chip select signal with the DIR/DAC 47 DIR CK O Communication clock signal with the DIR/DAC 48 DIR ERR I Lock/Unlock signal 49 DIR RST O DIR reset signal 50 DECO MUTE I Boot success detecting port of 1st DSP www. xiaoyu163. com QQ 376315150 9 9 2 8 9 4 2 9 8 TEL 13942296513 9 9 2 8 9 4 2 9 8 0 5 1 5 1 3 6 7 3 Q Q TEL 13942296513 QQ 376315150 892498299 TEL 13942296513 QQ 376315150 892498299 http://www.xiaoyu163.com VSX-45TX 135 5 6 7 8 5 6 7 8 C D F A B E No. Pin Name I/O Pin Function Active 51 DAC RST O DAC/AD reset 52 DSP MUTE O DSP Assy mute 53 M62429 DT O Data signal for multi room volume IC control 54 M62429 CLK O Clock signal for multi room volume IC control 55 EVR CS O Chip select signal for erectronic volume 56 EVR CLK O Clock signal for erectronic volume 57 EVR DT O Data signal for erectronic volume 58 DSP HREQ1 I Error detection signal of DSP1 microcomputer 59 DSP HREQ2 I Error detection signal of DSP2 microcomputer 60 furniture O Furniture control signal 61 – O L" fixed 62 5V − 5V power supply 63 DC PROT I DC detection L: Detection L 64 GND − Ground 65 RC-AC O AC relay ON/OFF H H 66 AMUTE O System mute L: Mute ON L 67 MRMUTE O Multi room mute L: Mute ON L 68 tc9274f-st O Function SW control (STEREO) 69 tc9274f-ck O Function SW control (CLOCK) 70 tc9274f-dt O Function SW control (DATA) 71 TUNER CLK O Clock signal of tuner control 72 TUNER CE O Chip select signal of tuner control 73 OL DET I Amp. overload detection L: Detection L 74 TUNER DO I Data input signal of tuner control (pullup) 75 RDS CLK O L" fixed 76 TUNER DI I Data output signal of tuner control 77 RDS DT O L" fixed 78 RDS FM+ O L" fixed 79 TMUTE O Tuner mute H 80 STEREO I L: STEREO (pullup) L 81 TUNED I L: TUNED (pullup) L 82 EXP DT O Data signal of expansion IC control 83 EXP CLK O Clock signal of expansion IC control 84 EXP OE O Output enable signal of expansion IC control 85 EXP ST O Chip clock signal of expansion IC control 86 – O NC 87 – O NC 88 – O NC 89 – O NC 90 DEM LOCK I Not used 91 SIMUKE1 I Destination read 1 92 SIMUKE2 I Destination read 2 93 WATT-IN I Wattage detection Level detection with AD A/D 94 TEMP-IN I Temperature detection Level detection with AD A/D 95 FAN STOP I Fan forced stop detection H 96 AVSS − Connect to VSS 97 – O NC L 98 VREF − Connect to VCC 99 AVCC − Connect to VCC 100 – O NC www. xiaoyu163. com QQ 376315150 9 9 2 8 9 4 2 9 8 TEL 13942296513 9 9 2 8 9 4 2 9 8 0 5 1 5 1 3 6 7 3 Q Q TEL 13942296513 QQ 376315150 892498299 TEL 13942296513 QQ 376315150 892498299 http://www.xiaoyu163.com VSX-45TX 136 1 2 3 4 1 2 3 4 C D F A B E Pin Assignment (Top view) PD5771A (DISPLAY ASSY: IC3000) • Display Microcomputer 1 KEY5 P75/AN5 2 MR SW P74/AN4 3 KEY1 P73/AN3 4 KEY2 P72/AN2 5 KEY3 P71/AN1 6 KEY4 P70/AN0 HP IN 7 1W W.UP P61/CNTR0/CNTR2 8 P60/CNTR1 9 SR IN XRESET P47/INT2 10 XRESET 11 P91/XCOUT 12 P90/XCIN 13 GND VSS 14 XIN XIN 15 XOUT XOUT 16 VDD VCC 17 CHECKER P46/T2OUT 18 P45/T1OUT 19 P44/PWM1 20 P43/BUZO1 21 P42/INT3 22 232C DET P41/INT1 23 MR IN MIC SW P40/INT0 24 P87/PWMO/FLD39 25 P86/RTP1/FLD38 26 P85/RTP0/FLD37 27 P84/FLD36 28 GND VEE 29 NC P83/FLD35 30 NC NC NC NC NC NC NC NC NC NC P82/FLD34 31 P81/FLD33 32 P80/FLD32 33 P37/FLD31 34 P36/FLD30 35 P35/FLD29 36 P34/FLD28 37 P33/FLD27 38 P32/FLD26 39 P31/FLD25 40 NC P30/FLD24 80 P67/AN6 79 P77/AN7 78 P62/SRDY1/AN8 77 P63/AN9 76 P64/INT4/SBUSY/AN10 CS 75 P65/SSTB/AN11 74 AREF VDD 73 AVSS GND 72 P50/SIN1 71 P51/SOUT1 FL_DO 70 P52/SCLK11 FL_CLK 69 P53/SCLK12 68 P54/RXD DI FL_LAT FL_BK 67 P55/TXD DO 66 P56/SCLK21 CLK 65 P57/SRDY2/SCLK22 RDY 64 P20/BUZ02/FLD00 NECK 63 P21/FLD01 62 P22/FLD02 RY-A 61 P23/FLD03 RY-HP 60 P24/FLD04 59 P25/FLD05 RY-C/S 58 P26/FLD06 RY-SB 57 P27/FLD07 56 P00/FLD08 VOL_+ 55 P01/FLD09 VOL_– 54 P02/FLD10 53 P03/FLD11 52 P04/FLD12 INPUT_L 51 P05/FLD13 INPUT_R 50 P06/FLD14 NC 49 P07/FLD15 NC 48 P10/FLD16 NC 47 P11/FLD17 46 P12/FLD18 NC NC 45 P13/FLD19 NC 44 P14/FLD20 NC 43 P15/FLD21 1394 42 P16/FLD22 MCACC 41 P17/FLD23 STBY www. xiaoyu163. com QQ 376315150 9 9 2 8 9 4 2 9 8 TEL 13942296513 9 9 2 8 9 4 2 9 8 0 5 1 5 1 3 6 7 3 Q Q TEL 13942296513 QQ 376315150 892498299 TEL 13942296513 QQ 376315150 892498299 http://www.xiaoyu163.com VSX-45TX 137 5 6 7 8 5 6 7 8 C D F A B E Pin Function No. Pin Name I/O Pin Function No. Pin Name I/O Pin Function 1 KEY5 I KEY AD input 41 STANDBY O Standby LED 2 MR SW O Multi room input Pioneer/others L: Pioneer 42 MCACC O MCACC LED 3 KEY1 I KEY AD input 43 1394 O 1394 LED 4 KEY2 44 NC O Non connection 5 KEY3 45 NC 6 KEY4 46 NC 7 1W WUP O 1W correspondence main wakeup 47 NC 8 HP I Headphone detection (active: H) 48 NC 9 SR IN I Remote control input of main room 49 NC 10 RESET − Reset input from the main microcomputer 50 NC 11 NC O Non connection 51 INPUT_R I Input selector RIGHT 12 NC 52 INPUT_L I Input selector LEFT 13 Vss − Ground 53 NC O Non connection Non connection 14 XIN − Oscillator 54 NC O 15 XOUT − Oscillator 55 VOL_– I Volume – 16 Vcc − Power supply 5V 56 VOL_+ I Volume + 17 CHECKER I Checker mode detection (10kΩ pulldown) 57 NC O Non connection 18 NC O Non connection 58 RY-SB O Surround back/SP-B relay ON/OFF (active: H) 19 NC 59 RY-C/S O C/S relay ON/OFF (active: H) 20 NC 60 NC O Non connection 21 MIC SW I MIC detection 61 RY-HP O Headphone relay ON/OFF (active: H) 22 232C DET I 232C signal input detection 62 RY-A O Speaker A relay ON/OFF (active: H) 23 MR IN I Remote control input of sub room (active: H) 63 NC O Non connection 24 NC O Non connection 64 NECK O 6/8Ω switch L: 6Ω, H: 8Ω, Initial: 8Ω 25 NC O Non connection 65 RDY O Communication ready with main UCOM 26 NC 66 CLK O Communication clock with main UCOM 27 NC 67 DO O Communication data out with main UCOM 28 VEE − Ground 68 DI I Communication data in with main UCOM 29 NC O Non connection 69 FL_LAT O FL DRV LAT 30 NC 70 FL_CLK O FL DRV CLK 31 NC 71 FL_DO O FL DRV DATA 32 NC 72 FL_BK O FL DRV BK 33 NC 73 AVSS − Ground 34 NC 74 VREF − 5V reference voltage 35 NC 75 NC O Non connection 36 NC 76 CS I Communication CS with main UCOM 37 NC 77 NC O Non connection 38 NC 78 NC 39 NC 79 NC 40 NC 80 NC www. xiaoyu163. com QQ 376315150 9 9 2 8 9 4 2 9 8 TEL 13942296513 9 9 2 8 9 4 2 9 8 0 5 1 5 1 3 6 7 3 Q Q TEL 13942296513 QQ 376315150 892498299 TEL 13942296513 QQ 376315150 892498299 http://www.xiaoyu163.com VSX-45TX 138 1 2 3 4 1 2 3 4 C D F A B E Pin Function BU4094BCF (MAIN CONTROL ASSY: IC502) • Expansion IC Pin Function BU4094BCF (MAIN CONTROL ASSY: IC503) • Expansion IC No. Pin Name Pin Function Active 1 OSD ON ON at OSD on H 2 TC9215_C34 Switch the DSP/DIRECT/MULTI CH IN of surround signal H: Multi ch input path 3 PHONO GAIN "H" at PHONO equalizer ON H 4 DSDM For SACD "L" fixed 5 TC74HC4053_INH Select the Component/D4 input (2 inputs → 1 output) 6 TC74HC4053_A 7 FAN DRIVE ON when rotates the FAN H 8 LOFAN Not used "H" fixed No. Pin Name Pin Function Active 1 DEM_STP Demodulator oscillation OFF/ON H 2 DEM_RST Demodulator reset L: RESET L 3 NJM2279_SW1 NJM2279 video control of sub room system 4 NJM2279_SW2 H 5 NJM2596_SW2 NJM2596 video control of main system H 6 NJM2596_SW3 H 7 NJM2596_SW4 H 8 NJM2596_SW5 www. xiaoyu163. com QQ 376315150 9 9 2 8 9 4 2 9 8 TEL 13942296513 9 9 2 8 9 4 2 9 8 0 5 1 5 1 3 6 7 3 Q Q TEL 13942296513 QQ 376315150 892498299 TEL 13942296513 QQ 376315150 892498299 http://www.xiaoyu163.com VSX-45TX 139 5 6 7 8 5 6 7 8 C D F A B E Pin Function Pin Assignment (Top view) PCM2902EG (COAXIAL IN ASSY: IC1681) • USB Codec IC No. Pin Name I/O Pin Function 1 D+ I/O USB differential input/output plus(1) 2 D– I/O USB differential input/output minus(1) 3 VBUS I Connect to USB power (VBUS) 4 DGNDU − Digital ground for USB transceiver 5 HID0 I HID key state input (mute), active high(3) 6 HID1 I HID key state input (volume up), active high(3) 7 HID2 I HID key state input (volume down), active high(3) 8 SEL0 I Must be set to high(6) 9 SEL1 I Must be set to high(6) 10 VCCCI − − − − − − − − − − Internal analog power supply for codec(4) 11 AGNDC Analog ground for codec 12 VINL I ADC analog input for L-channel 13 VINR I ADC analog input for R-channel 14 VCOM Common for ADC/DAC (VCCCI/2) (4) 15 VOUTR O DAC Analog output for R-channel 16 VOUTL O DAC analog output for L-channel 17 VCCP1I Internal analog power supply for PLL(4) 18 AGNDP Analog ground for PLL 19 VCCP2I Internal analog power supply for PLL(4) 20 XTO O Crystal oscillator output 21 XTI I Crystal oscillator input(2) 22 AGNDX Analog ground for oscillator 23 VCCXI Internal analog power supply for oscillator(4) 24 DIN I S/PDIF input(5) 25 DOUT O S/PDIF output 26 DGND Digital ground 27 VDDI Internal digital power supply(4) 28 SSPND O Suspend flag, active low (Low: suspend, High: operational) (1) LV-TTL level (2) 3.3-V CMOS level input (3) 3.3-V CMOS level input with internal pulldown. This pin informs the PC of serviceable control signals such as mute, volume up, or volume down, which has no connection with the internal DAC or ADC directly. See the volume control and mute control section. (4) Connect a decouple capacitor to GND (5) 3.3-V CMOS level input with internal pulldown, 5 V tolerant (6) TTL Schmitt trigger, 5 V tolerant 28 27 26 25 24 23 22 21 20 19 18 17 16 15 1 2 3 4 5 6 7 8 9 10 11 12 13 14 D+ D- VBUS DGNDU HID0 HID1 HID2 SEL0 SEL1 VCCCI AGNDC VINL VINR VCOM SSPND VDDI DGND DOUT DIN VCCXI AGNDX XTI XTO VCCP2I AGNDP VCCP1I VOUTL VOUTR www. xiaoyu163. com QQ 376315150 9 9 2 8 9 4 2 9 8 TEL 13942296513 9 9 2 8 9 4 2 9 8 0 5 1 5 1 3 6 7 3 Q Q TEL 13942296513 QQ 376315150 892498299 TEL 13942296513 QQ 376315150 892498299 http://www.xiaoyu163.com VSX-45TX 140 1 2 3 4 1 2 3 4 C D F A B E Flow of USB Input Data Personal Computer USB terminal USB input SPDIF data SPDIF data USB CODEC PCM2902EG D + D – Dout TC7SET08F VSX-45TX USB block 12MHz For DIR input protection DSP block IC201 DIR AK4114VQ Vbus GND USB cable USB AUDIO data About PCM2902EG • With codec of USB BUS POWERED, power is supplied from Vbus of USB, and work. (work with a power supply of VSX-45TX irrelatively.) • Be USB codec, but analog I/O and digital (SPDIF) input are not using in VSX-45TX. • When only connects to PC and receiver (VSX-45TX) is turned on, the output of TC7SET08F outputs. Music playback (A music file of MP3, etc.) Help of Non-failure Decision Symptom when a sound is not output (Symptom is different by each OS) • Confirm a driver whether PC is recognizing it. (With a device manager). • Is a switch of sound sourse performed properly? (Control Panel, Sound or Multimedia) • Is volume control of PC adjusted? • How is other PC? • In the state that does not change PC setting, is sound output in other VSX-45TX? • When uses CD-ROM and playback a music CD, and a sound is not output, is digital playback of CD-ROM checked? When contain noise • There is a bug in early USB AUDIO driver of WINDOWS XP, and contain noise once for several minutes. (Correspond with WINDOWS UPDATE.) • An affinity problem with chip set • Adaptation problem with chip set (refer to next item) • Performance issue of PC. (Release resident software as measures.) • Noise when using the other software during music playback. (Do not guarantee or do not use the other software) • Do contain the same noise even if changes the PC? Reference Confirmation item of the USB part with Function checker. Supply a power supply (+5V: pin 3, GND: pin 4) of IC1681 (PCM2902EG), and connect D+ (pin1) to GND. Confirm that X1681 (ASS7047) starts oscillating. Adaptation Problem with Chip Set PCM2902EG caution of operation Operating environment and findings of PCM2902EG Evaluation PC: Libretto PAL2060 TNML made by Toshiba (1) CPU: Crusoe 600MHz made by Transmeta Use chip set: Transmeta N/B (North Bridge) M1533 (South Bridge) made by ALi OS: Windows ME (2) CPU: Cerelon 566MHz made by Intel Use chip set: Aladdin Pro 5 (North Bridge) and M1533 (South Bridge) made by ALi OS: Windows ME (3) CPU: K6-2 400MHz made by AMD Use chip set: Aladdin 5 (North Bridge) and M1543 (South Bridge) made by ALi OS: Windows ME When contain noise by a problem of the chip set side, there is a problem in the PC side because even other USB audio equipment contains noise. Therefore, do not recommend use in the condition and environment as mentioned above. Support OS Windows 98 / 98SE / ME Windows 2000 Professional Windows XP Home / Professional www. xiaoyu163. com QQ 376315150 9 9 2 8 9 4 2 9 8 TEL 13942296513 9 9 2 8 9 4 2 9 8 0 5 1 5 1 3 6 7 3 Q Q TEL 13942296513 QQ 376315150 892498299 TEL 13942296513 QQ 376315150 892498299 http://www.xiaoyu163.com VSX-45TX 141 5 6 7 8 5 6 7 8 C D F A B E 7.2.2 DISPLAY • Pin Assignment • Grid Assignment • Segment Designation (14G to 1G) (Lower stage) (Upper stage) (14G to 6G, 2G, 1G) 1-1B 2-1B 3-1B 4-1B 5-1B 1-2B 2-2B 3-2B 4-2B 5-2B 1-3B 2-3B 3-3B 4-3B 5-3B 1-4B 2-4B 3-4B 4-4B 5-4B 1-5B 2-5B 3-5B 4-5B 5-5B 1-6B 2-6B 3-6B 4-6B 5-6B 1-7B 2-7B 3-7B 4-7B 5-7B 1-1A 2-1A 3-1A 4-1A 5-1A 1-2A 2-2A 3-2A 4-2A 5-2A 1-3A 2-3A 3-3A 4-3A 5-3A 1-4A 2-4A 3-4A 4-4A 5-4A 1-5A 2-5A 3-5A 4-5A 5-5A 1-6A 2-6A 3-6A 4-6A 5-6A 1-7A 2-7A 3-7A 4-7A 5-7A 62 1 5 15 48 58 1G S1 S2 S3 S4 S5 10G 11G 12G 13G 14G 15Ga 15G 15Gb 15Gc 15Gd 9G 8G 7G 6G 4G 5G 3Ga 3G 3Gb 2G AAV7087 (DISPLAY ASSY : V3000) • FL DISPLAY Pin No. 1 62 61 60 59 58 57 56 55 54 53 52 51 50 49 48 47-3 2 Connection F2 F2 NP NP GND GND NC VH NC VDD BK LAT CLK SI SO NP F1 F1 • Pin Connection NOTE 1) F1, F2......... Filament 2) NP.............. No pin (5-15 cut it by 2mm) 3) DL.............. Datum Line 4) GND........... GND pin 5) VH.............. High Voltage Supply pin 6) VDD............ Logic Voltage Supply pin 7) NC.............. No connection (NC pin should be electrically open on the PC board) 8) BK............... Driver Output Blanking 9) LAT............ Latch Control Input 10) CLK........... Shift Register Clock 11) SI............... Serial Data Input 12) SO............. Serial Data Output (to be open, if don't use) 13) Field of vision is a minimum of 21° from the lower side. DIGITAL DTS ES EX MPEG AAC STEREO PRO LOGIC LOUDNESS MIDNIGHT TONE DNR ATT STEREO TUNED RDS Hi-BIT/ MULTI-ROOM SAMPLING EON RF ATT dB MONO Neo :6 L C R LFE LS S RS SIGNAL AUTO AUTO RF DIGITAL SB CH DSP ON MOVIE MUSIC OFF SP A B ANALOG DIGITAL DTS ES EX MPEG AAC STEREO PRO LOGIC LOUDNESS MIDNIGHT TONE DNR ATT STEREO TUNED RDS Hi-BIT/ MULTI-ROOM SAMPLING EON RF ATT dB MONO Neo :6 L C R LFE LS S RS SIGNAL AUTO AUTO RF DIGITAL SB CH DSP ON MOVIE MUSIC OFF SP A B ANALOG SIGNAL SB CH DSP www. xiaoyu163. com QQ 376315150 9 9 2 8 9 4 2 9 8 TEL 13942296513 9 9 2 8 9 4 2 9 8 0 5 1 5 1 3 6 7 3 Q Q TEL 13942296513 QQ 376315150 892498299 TEL 13942296513 QQ 376315150 892498299 http://www.xiaoyu163.com VSX-45TX 142 1 2 3 4 1 2 3 4 C D F A B E • Anode Connection 7G P1 P2 P3 P4 P5 P6 P7 P8 P9 P10 P11 P12 P13 P14 P15 P16 P17 P18 P19 P20 P21 P22 1-1A ATT 1-5A 2-1A 3-1A 4-1A 5-1A 1-2A 2-2A 3-2A 4-2A 5-2A 1-3A 2-3A 3-3A 4-3A 5-3A 1-4A 2-4A 3-4A 4-4A 5-4A 15Gd-15Ga 14G 1-1A 1-5A 2-1A 3-1A 4-1A 5-1A 1-2A 2-2A 3-2A 4-2A 5-2A 1-3A 2-3A 3-3A 4-3A 5-3A 1-4A 2-4A 3-4A 4-4A 5-4A 13G 1-1A LOUDNESS 1-5A 2-1A 3-1A 4-1A 5-1A 1-2A 2-2A 3-2A 4-2A 5-2A 1-3A 2-3A 3-3A 4-3A 5-3A 1-4A 2-4A 3-4A 4-4A 5-4A 12G 1-1A 1-5A 2-1A 3-1A 4-1A 5-1A 1-2A 2-2A 3-2A 4-2A 5-2A 1-3A 2-3A 3-3A 4-3A 5-3A 1-4A 2-4A 3-4A 4-4A 5-4A 11G 1-1A MIDNIGHT 1-5A 2-1A 3-1A 4-1A 5-1A 1-2A 2-2A 3-2A 4-2A 5-2A 1-3A 2-3A 3-3A 4-3A 5-3A 1-4A 2-4A 3-4A 4-4A 5-4A 10G 1-1A 1-5A 2-1A 3-1A 4-1A 5-1A 1-2A 2-2A 3-2A 4-2A 5-2A 1-3A 2-3A 3-3A 4-3A 5-3A 1-4A 2-4A 3-4A 4-4A 5-4A 9G 1-1A TONE 1-5A 2-1A 3-1A 4-1A 5-1A 1-2A 2-2A 3-2A 4-2A 5-2A 1-3A 2-3A 3-3A 4-3A 5-3A 1-4A 2-4A 3-4A 4-4A 5-4A 8G 1-1A DNR 1-5A 2-1A 3-1A 4-1A 5-1A 1-2A 2-2A 3-2A 4-2A 5-2A 1-3A 2-3A 3-3A 4-3A 5-3A 1-4A 2-4A 3-4A 4-4A 5-4A 3Gb, 3Ga MONO TUNED RF ATT RDS EON HI-BIT/ SAMPLING S4 S5 STEREO MUSIC DIGITAL ANALOG Neo:6 ON PROLOGIC S3 EX RF MPEG DTS 4G – – – – – – – – – – – – – – – – – – – – – – – – – – – – – – – – – – 6G 1-1A – 1-5A 2-1A 3-1A 4-1A 5-1A 1-2A 2-2A 3-2A 4-2A 5-2A 1-3A 2-3A 3-3A 4-3A 5-3A 1-4A 2-4A 3-4A 4-4A 5-4A 5G – – – – – – – – – – – – – – – – – – – – – – 1G 1-1A dB 1-5A 2-1A 3-1A 4-1A 5-1A 1-2A 2-2A 3-2A 4-2A 5-2A 1-3A 2-3A 3-3A 4-3A 5-3A 1-4A 2-4A 3-4A 4-4A 5-4A 2G 1-1A – 1-5A 2-1A 3-1A 4-1A 5-1A 1-2A 2-2A 3-2A 4-2A 5-2A 1-3A 2-3A 3-3A 4-3A 5-3A 1-4A 2-4A 3-4A 4-4A 5-4A S1 ES AAC STEREO S2 OFF MOVIE DIGITAL AUTO AUTO P23 P24 P25 P26 P27 P28 2-5A 3-5A 4-5A 5-5A 1-6A 2-6A 2-5A 3-5A 4-5A 5-5A 1-6A 2-6A 2-5A 3-5A 4-5A 5-5A 1-6A 2-6A 2-5A 3-5A 4-5A 5-5A 1-6A 2-6A 2-5A 3-5A 4-5A 5-5A 1-6A 2-6A 2-5A 3-5A 4-5A 5-5A 1-6A 2-6A 2-5A 3-5A 4-5A 5-5A 1-6A 2-6A 2-5A 3-5A 4-5A 5-5A 1-6A 2-6A RS L – – – – – – – – – – – – 2-5A 3-5A 4-5A 5-5A 1-6A 2-6A – – – – – – 2-5A 3-5A 4-5A 5-5A 1-6A 2-6A 2-5A 3-5A 4-5A 5-5A 1-6A 2-6A C R LS S P29 P30 P31 P32 P33 3-6A 4-6A 5-6A 1-7A 2-7A 3-6A 4-6A 5-6A 1-7A 2-7A 3-6A 4-6A 5-6A 1-7A 2-7A 3-6A 4-6A 5-6A 1-7A 2-7A 3-6A 4-6A 5-6A 1-7A 2-7A 3-6A 4-6A 5-6A 1-7A 2-7A 3-6A 4-6A 5-6A 1-7A 2-7A 3-6A 4-6A 5-6A 1-7A 2-7A B – – – – – – – – – – 3-6A 4-6A 5-6A 1-7A 2-7A – – – – – 3-6A 4-6A 5-6A 1-7A 2-7A 3-6A 4-6A 5-6A 1-7A 2-7A LFE SP A P34 P35 P36 3-7A 4-7A 5-7A 3-7A 4-7A 5-7A 3-7A 4-7A 5-7A 3-7A 4-7A 5-7A 3-7A 4-7A 5-7A 3-7A 4-7A 5-7A 3-7A 4-7A 5-7A 3-7A 4-7A 5-7A – – – – – – – 3-7A 4-7A 5-7A – – – 3-7A 4-7A 5-7A 3-7A 4-7A 5-7A – – P37 P38 1-1B 2-1B 1-1B 2-1B 1-1B 2-1B 1-1B 2-1B 1-1B 2-1B 1-1B 2-1B 1-1B 2-1B 1-1B 2-1B – 1-1B 2-1B 1-1B 2-1B 1-1B 2-1B 1-1B 2-1B 1-1B 2-1B 1-1B 2-1B – P39 P40 P41 3-1B 4-1B 5-1B 3-1B 4-1B 5-1B 3-1B 4-1B 5-1B 3-1B 4-1B 5-1B 3-1B 4-1B 5-1B 3-1B 4-1B 5-1B 3-1B 4-1B 5-1B 3-1B 4-1B 5-1B – 3-1B 4-1B 5-1B 3-1B 4-1B 5-1B 3-1B 4-1B 5-1B 3-1B 4-1B 5-1B 3-1B 4-1B 5-1B 3-1B 4-1B 5-1B – – P42 P43 1-2B 2-2B 1-2B 2-2B 1-2B 2-2B 1-2B 2-2B 1-2B 2-2B 1-2B 2-2B 1-2B 2-2B 1-2B 2-2B – 1-2B 2-2B 1-2B 2-2B 1-2B 2-2B 1-2B 2-2B 1-2B 2-2B 1-2B 2-2B – P44 P45 P46 3-2B 4-2B 5-2B 3-2B 4-2B 5-2B 3-2B 4-2B 5-2B 3-2B 4-2B 5-2B 3-2B 4-2B 5-2B 3-2B 4-2B 5-2B 3-2B 4-2B 5-2B 3-2B 4-2B 5-2B – 3-2B 4-2B 5-2B 3-2B 4-2B 5-2B 3-2B 4-2B 5-2B 3-2B 4-2B 5-2B 3-2B 4-2B 5-2B 3-2B 4-2B 5-2B – – P47 P48 1-3B 2-3B 1-3B 2-3B 1-3B 2-3B 1-3B 2-3B 1-3B 2-3B 1-3B 2-3B 1-3B 2-3B 1-3B 2-3B – 1-3B 2-3B 1-3B 2-3B 1-3B 2-3B 1-3B 2-3B 1-3B 2-3B 1-3B 2-3B – P49 P50 P51 3-3B 4-3B 5-3B 3-3B 4-3B 5-3B 3-3B 4-3B 5-3B 3-3B 4-3B 5-3B 3-3B 4-3B 5-3B 3-3B 4-3B 5-3B 3-3B 4-3B 5-3B 3-3B 4-3B 5-3B – 3-3B 4-3B 5-3B 3-3B 4-3B 5-3B 3-3B 4-3B 5-3B 3-3B 4-3B 5-3B 3-3B 4-3B 5-3B 3-3B 4-3B 5-3B – – P52 P53 1-4B 2-4B 1-4B 2-4B 1-4B 2-4B 1-4B 2-4B 1-4B 2-4B 1-4B 2-4B 1-4B 2-4B 1-4B 2-4B – 1-4B 2-4B 1-4B 2-4B 1-4B 2-4B 1-4B 2-4B 1-4B 2-4B 1-4B 2-4B – P54 P55 P56 3-4B 4-4B 5-4B 3-4B 4-4B 5-4B 3-4B 4-4B 5-4B 3-4B 4-4B 5-4B 3-4B 4-4B 5-4B 3-4B 4-4B 5-4B 3-4B 4-4B 5-4B 3-4B 4-4B 5-4B – 3-4B 4-4B 5-4B 3-4B 4-4B 5-4B 3-4B 4-4B 5-4B 3-4B 4-4B 5-4B 3-4B 4-4B 5-4B 3-4B 4-4B 5-4B – – P57 P58 1-5B 2-5B 1-5B 2-5B 1-5B 2-5B 1-5B 2-5B 1-5B 2-5B 1-5B 2-5B 1-5B 2-5B 1-5B 2-5B – 1-5B 2-5B 1-5B 2-5B 1-5B 2-5B 1-5B 2-5B 1-5B 2-5B 1-5B 2-5B – P59 P60 P61 3-5B 4-5B 5-5B 3-5B 4-5B 5-5B 3-5B 4-5B 5-5B 3-5B 4-5B 5-5B 3-5B 4-5B 5-5B 3-5B 4-5B 5-5B 3-5B 4-5B 5-5B 3-5B 4-5B 5-5B – 3-5B 4-5B 5-5B 3-5B 4-5B 5-5B 3-5B 4-5B 5-5B 3-5B 4-5B 5-5B 3-5B 4-5B 5-5B 3-5B 4-5B 5-5B – – P62 P63 1-6B 2-6B 1-6B 2-6B 1-6B 2-6B 1-6B 2-6B 1-6B 2-6B 1-6B 2-6B 1-6B 2-6B 1-6B 2-6B – 1-6B 2-6B 1-6B 2-6B 1-6B 2-6B 1-6B 2-6B 1-6B 2-6B 1-6B 2-6B – P64 P65 P66 3-6B 4-6B 5-6B 3-6B 4-6B 5-6B 3-6B 4-6B 5-6B 3-6B 4-6B 5-6B 3-6B 4-6B 5-6B 3-6B 4-6B 5-6B 3-6B 4-6B 5-6B 3-6B 4-6B 5-6B – 3-6B 4-6B 5-6B 3-6B 4-6B 5-6B 3-6B 4-6B 5-6B 3-6B 4-6B 5-6B 3-6B 4-6B 5-6B 3-6B 4-6B 5-6B – – P67 P68 1-7B 2-7B 1-7B 2-7B 1-7B 2-7B 1-7B 2-7B 1-7B 2-7B 1-7B 2-7B 1-7B 2-7B 1-7B 2-7B – 1-7B 2-7B 1-7B 2-7B 1-7B 2-7B 1-7B 2-7B 1-7B 2-7B 1-7B 2-7B – P69 P70 P71 3-7B 4-7B 5-7B 3-7B 4-7B 5-7B 3-7B 4-7B 5-7B 3-7B 4-7B 5-7B 3-7B 4-7B 5-7B 3-7B 4-7B 5-7B 3-7B 4-7B 5-7B 3-7B 4-7B 5-7B – 3-7B 4-7B 5-7B 3-7B 4-7B 5-7B 3-7B 4-7B 5-7B 3-7B 4-7B 5-7B 3-7B 4-7B 5-7B 3-7B 4-7B 5-7B – – www. xiaoyu163. com QQ 376315150 9 9 2 8 9 4 2 9 8 TEL 13942296513 9 9 2 8 9 4 2 9 8 0 5 1 5 1 3 6 7 3 Q Q TEL 13942296513 QQ 376315150 892498299 TEL 13942296513 QQ 376315150 892498299 http://www.xiaoyu163.com VSX-45TX 143 5 6 7 8 5 6 7 8 C D F A B E 7.3 CLEANING • Anode Timing Chart 7G P1 P2 P12 P12 P33 P71 T7 T7 T7 T7 T7 T7 15Gd-15Ga 14G T14 T14 T14 T14 T14 13G T13 T17 T13 T13 T13 T13 12G T12 T12 T12 T12 T12 11G T11 T16 T11 T11 T11 T11 10G T10 T10 T10 T10 T10 9G T9 T9 T9 T9 T9 T9 8G T8 T8 T8 T8 T8 T8 3Gb, 3Ga T3 – – T3 T15 – T18 T15 – 4G – – – – – – – 6G T6 – T6 T6 T6 T6 5G – – – – – – – 1G T1 T1 T1 T1 T1 T1 2G T2 – T2 T2 T2 T2 T15 P11 T7 T14 T13 T12 T11 T10 T9 T8 T3 – T6 – T1 T2 T15 Before shipping out the product, be sure to clean the following positions by using the prescribed cleaning tools: Position to be cleaned Cleaning tools Fans Cleaning paper : GED-008 www. xiaoyu163. com QQ 376315150 9 9 2 8 9 4 2 9 8 TEL 13942296513 9 9 2 8 9 4 2 9 8 0 5 1 5 1 3 6 7 3 Q Q TEL 13942296513 QQ 376315150 892498299 TEL 13942296513 QQ 376315150 892498299 http://www.xiaoyu163.com VSX-45TX 144 1 2 3 4 1 2 3 4 C D F A B E 7.4 REMOTE CONTROL UNIT 7.4.1 EXPLODED VIEWS AND PARTS LIST (VSX-45TX : AXD7325) 8 3 15 13 13 7 19 14 2 19 16 18 10 12 11 9 4 6 5 1 17 18 18 18 18 Mark No. Description Part No. 1 PCB Assy AZC7301 2 Rubber Key AZA7425 3 Case A AZN7905 4 Case B AZN7892 5 Frame AZN7908 6 Battery Cover AZN7896 7 MIC Cap AZN7909 8 Name Plate 201RRC-314-01L 9 Terminal A 411RRC-212-01G 10 Terminal B 411RRC-213-01G 11 Battery Terminal 413RRC-143-01R 12 Spring 413RRC-171-01G 13 Connector 423RRC-046-01G 14 Plate 481RRC-018-01G 15 Shield Plate 801RRC-020-01L 16 Filter A 811RRC-109-01G 17 Filter B 811RRC-110-01G 18 Screw A-BA2008-225002 19 Screw A-BJ2006 Mark No. Description Part No. www. xiaoyu163. com QQ 376315150 9 9 2 8 9 4 2 9 8 TEL 13942296513 9 9 2 8 9 4 2 9 8 0 5 1 5 1 3 6 7 3 Q Q TEL 13942296513 QQ 376315150 892498299 TEL 13942296513 QQ 376315150 892498299 http://www.xiaoyu163.com VSX-45TX 145 5 6 7 8 5 6 7 8 C D F A B E 8. PANEL FACILITIES 8.1 FRONT PANEL STANDBY/ON MOVIE MUSIC MULTI JOG ENTER STEREO/DIRECT MULTI CH IN MASTER VOLUME ACOUSTIC EQ STANDBY MULTI CHANNNEL ACOUSTIC CALIBRATION VSX-45TX AUDIO/VIDEO MULTI-CHANNEL RECEIVER PHONES SPEAKERS SIGNAL SELECT SB CH MODE HI-BIT HI-SAMPLING SETUP MIC DIGITAL IN S-VIDEO VIDEO VIDEO INPUT AUDIO L R SET UP RETURN TONE TONE CONTROL BASS/TREBLE CLASS BAND STATION TUNING MULTI ROOM MULTI JOG/ENTER CONTROL ON/OFF & SOURCE MULTI JOG CONTROL SELECT TUNER EDIT PHONES SPEAKERS SIGNAL SELECT SB CH MODE HI-BIT HI-SAMPLING SETUP MIC DIGITAL IN S-VIDEO VIDEO VIDEO INPUT AUDIO L R SET UP RETURN TONE TONE CONTROL BASS/TREBLE CLASS BAND STATION TUNING MULTI ROOM MULTI JOG/ENTER CONTROL ON/OFF & SOURCE MULTI JOG CONTROL SELECT TUNER EDIT 1 12 9 10 11 22 20 2 3 4 5 6 18 19 21 13 14 15 16 17 7 8 All the controls on the front panel are explained and/or referenced here. To open the front panel push gently on the lower third of the panel. 1 MULTI JOG dial You can use this dial for many purposes. When you press the SET UP button (12), you can use it to perform SYSTEM SETUP operations; select a function (like a DVD) or a listening mode (like Dolby Pro logic ll) or do TUNER EDIT functions (in TUNER mode). 2 STANDBY/ON button Press to switch the receiver ON or into STANDBY mode. 3 Listening mode buttons There are two types of SURROUND modes: MOVIE: Press to put the receiver into MOVIE listening mode. MUSIC: Press to put the receiver into MUSIC listening mode. STEREO/DIRECT: Switches the receiver into STEREO mode if it was in a different sound mode or toggles between DIRECT and STEREO mode. DIRECT playback bypasses the tone controls and channel level for the most accurate reproduction of a program source. 4 ENTER button Use this button to enter information concerning the system setup, listening mode or the tuner. 5 STANDBY indicator Lights when the receiver is in STANDBY mode. (Please note that this receiver consumes a small amount of power [0.8 W] in the standby mode.) 6 Remote sensor Receives the signals from the remote control. 7 Display 8 MCACC indicator Lights when the ACOUSTIC CAL EQ is on. (After the Auto Surround Sound Setup has been completed the ACOUSTIC CAL EQ is set on and this display will light.) 9 MULTI CH IN button Use this button to select the component you have hooked up to the MULTI CH IN terminals (for example, a DVD- Audio player). www. xiaoyu163. com QQ 376315150 9 9 2 8 9 4 2 9 8 TEL 13942296513 9 9 2 8 9 4 2 9 8 0 5 1 5 1 3 6 7 3 Q Q TEL 13942296513 QQ 376315150 892498299 TEL 13942296513 QQ 376315150 892498299 http://www.xiaoyu163.com VSX-45TX 146 1 2 3 4 1 2 3 4 C D F A B E 10 ACOUSTIC EQ button Press to switch on/off and select the type of acoustic calibration EQ. 11 MASTER VOLUME dial Use to raise or lower the volume of the receiver. 12 MULTI JOG CONTROL buttons SET UP Press to switch the SYSTEM SETUP mode. RETURN Press to move back one step in the SYSTEM SETUP process. 13 SIGNAL SELECT button Press SIGNAL SELECT repeatedly to select one of the following: AUTO – If there are analog and digital signals input, the receiver automatically selects the digital signal. DIGITAL – To select an optical or coaxial digital signal. ANALOG – To select an analog signal. 14 Hi-BIT Hi-SAMPLING button Use this button to switch the Hi-BIT Hi-SAMPLING mode on or off. Use to hear CD and DVD, as well as other digital soundtracks, at a wider dynamic range, allowing for finer audio reproduction. 15 SB CH MODE button Use this button to turn the surround back channels on/off/auto or switch the virtual surround back mode between on/off/auto. 16 TUNER CONTROL buttons BAND Press to select the AM or FM band. CLASS Press repeatedly to switch the preset station classes. SELECT Switches the –/+ buttons between station memory and frequency select modes. –/+ Selects station memories or frequencies when using the tuner. TUNER EDIT Press to memorize and name a station for recall using the MULTI JOG and ENTER buttons. 17 MULTI ROOM & SOURCE buttons Press to use the multi room feature (requires an optional PIONEER Multi-Room Remote Sensor Unit MR-100 or another IR receiver). CONTROL button Used together with the INPUT SELECTOR to select the function or use with the MASTER VOLUME to select the volume of the MULTI ROOM system. ON/OFF button Use to switch MULTI ROOM function on or off. 18 PHONES jack Connect headphones for private listening (no sound will be heard through the speakers). 19 SPEAKERS (A/B) button The use of this button depends on how the SURRBACK SYSTEM is set. If NORMAL SYSTEM or MR&S is chosen this button toggles between A and OFF. If SECOND ZONE is chosen this button toggles between A, B, A+B and OFF. 20 TONE control buttons TONE button This button switches between TONE ON and TONE BYPASS, which bypasses the tone circuitry. BASS/TREBLE button Use to select whether the bass or treble will be adjusted. –/+ buttons Use to adjust the frequency levels. 21 SET UP MIC jack Plug in the set up mic here. This is very important in order to set up your system and get proper surround sound. 22 VIDEO INPUT jacks DIGITAL IN Digital input for connecting a game console, DVD player, video camera (etc.), that has an optical digital connection. S-VIDEO Video input for connecting a portable DVD player, video camera (etc.), that has an S video out. RCA VIDEO /AUDIO (L/R) Video input for connecting a portable DVD player, video camera, etc. That has standard RCA video/audio outputs. STANDBY/ON MOVIE MUSIC MULTI JOG ENTER STEREO/DIRECT MULTI CH IN MASTER VOLUME ACOUSTIC EQ STANDBY VSX-43TX AUDIO/VIDEO MULTI-CHANNEL RECEIVER PHONES SPEAKERS SIGNAL SELECT HI-BIT HI-SAMPLING SB CH MODE S-VIDEO VIDEO VIDEO INPUT AUDIO L R SET UP RETURN TONE TONE CONTROL BASS/TREBLE CLASS BAND MIDNIGHT LOUDNESS STATION TUNING MULTI JOG/ENTER MULTI JOG CONTROL SELECT TUNER EDIT VSX-43TX www. xiaoyu163. com QQ 376315150 9 9 2 8 9 4 2 9 8 TEL 13942296513 9 9 2 8 9 4 2 9 8 0 5 1 5 1 3 6 7 3 Q Q TEL 13942296513 QQ 376315150 892498299 TEL 13942296513 QQ 376315150 892498299 http://www.xiaoyu163.com VSX-45TX 147 5 6 7 8 5 6 7 8 C D F A B E 8.2 DISPLAY DIGITAL DTS ES EX MPEG AAC STEREO PRO LOGIC LOUDNESS MIDNIGHT TONE DNR ATT STEREO TUNED RDS Hi-BIT/ MULTI-ROOM SAMPLING EON RF ATT dB MONO Neo :6 L C R LFE LS S RS SIGNAL AUTO AUTO RF DIGITAL SB CH DSP ON MOVIE MUSIC OFF SP A B ANALOG 1 13 12 11 10 2 7 3 4 5 6 9 8 All the display information is explained and/or referenced here. 1 SIGNAL SELECT indicators Light to indicate the input signal you selected. AUTO: Lights when the receiver is set to select the input signal automatically. DIGITAL: Lights when digital audio signals are selected. ANALOG: Lights when analog signals are selected. 2 Digital format indicators PRO LOGIC II: Lights during Dolby Pro Logic II processing. NEO:6: Lights during NEO:6 processing. � 2 DIGITAL: Lights when a Dolby Digital signal is detected. dts: Lights when a DTS signal is detected. ES: Lights when playing back a DTS ES signal. EX: Lights when playing back a Dolby Digital EX signal. STEREO: Lights during two-channel playback. 3 LOUDNESS indicator Lights when LOUDNESS is on. 4 MIDNIGHT indicator Lights when MIDNIGHT is on. 5 TONE indicator Lights when the TONE control is on. 6 DNR indicator Lights when DIGITAL NR is on. 7 TUNER indicators STEREO: Lights when an FM stereo broadcast is received in the auto stereo mode. MONO: Lights when the tuner is set to receive FM broadcasts and when MPX mode is selected. TUNED: Lights when a broadcast is received. 8 Volume level indicator 9 MULTI ROOM indicator Lights when the MULTI ROOM system is on. 10 Hi-BIT/SAMPLING indicator Lights when a hi-bit/sampling mode is on. 11 DSP indicators MOVIE: Lights when a MOVIE mode is selected. When a DSP MOVIE mode is selected DSP will light with a box around it. MUSIC: Lights when a MUSIC mode is selected. When a DSP MUSIC mode is selected DSP will light with a box around it. 12 Program Format indicators For Dolby Digital or DTS sources: these indicators change according to which channels are active in the source. When all three LS (left surround), S (surround) and RS (right surround) light at the same time it means a source with a 6.1 channel playback flag is being used. L – Left front channel. C – Center channel. R – Right front channel. LS – Left surround channel. S – Surround channel or Surround back channel. RS – Right surround channel. LFE – Low Frequency Effects channel. ‡ – Lights when LFE signal is input. 13 SB CH indicators Light to indicate the status of the surround back channels. AUTO – Lights when the SB CH MODE or VIRTUAL SURROUND BACK mode is set to AUTO. ON – Lights when the SB CH MODE or VIRTUAL SURROUND BACK mode is set to ON. OFF – Lights when the SB CH MODE or VIRTUAL SURROUND BACK mode is set to OFF. www. xiaoyu163. com QQ 376315150 9 9 2 8 9 4 2 9 8 TEL 13942296513 9 9 2 8 9 4 2 9 8 0 5 1 5 1 3 6 7 3 Q Q TEL 13942296513 QQ 376315150 892498299 TEL 13942296513 QQ 376315150 892498299 http://www.xiaoyu163.com VSX-45TX 148 1 2 3 4 1 2 3 4 C D F A B E 8.3 REAR PANEL All the display information is explained and/or referenced here. PCM/ 2DIGITAL / DTS/MPEG OUT1 OUT2 IN R L (TV/ SAT) 1 IN (CD-R/ TAPE1) 2 IN 3 (DVD/ LD) IN 4 (CD) USB AUDIO PLAY PLAY CD-R/ TAPE1 VCR1/ DVR TV/ SAT IN DVD/ LD IN SUR- ROUND BACK (Single) FRONT CENTER SUR- ROUND SUB WOOFER PRE OUT VCR2 CD PHONO/ LINE DIGITAL AUDIO AUDIO VIDEO IN IN IN OUT OUT MONITOR OUT IN OUT IN OUT IN OUT VIDEO S VIDEO MD/ TAPE2 REC REC MULTI CH IN MULTI-ROOM & SOURCE MULTI-ROOM & SOURCE OUT IN MONITOR OUT CONTROL 75Ω ANTENNA AM LOOP FM UNBAL R L R L R L L R L R L R ASSIGNABLE SUR- ROUND BACK SUR- ROUND FRONT SUB WOOF- ER CEN- TER L R L R L R 2 13 14 4 5 1 6 7 15 16 3 1 DIGITAL IN terminals Use these terminals to input the signal from a DVD, CD player or any other kind of digital player. To be able to play Dolby Digital and other surround soundtracks you need to make digital connections. To do this use the digital terminals here. If you don't connect as per the default settings you need to complete "Assigning the Digital Inputs". 2 DIGITAL OUT terminals Use these terminals to output a digital signal to a DVD-R, CD-R, MD recorder or any other kind of digital recorder. 3 CONTROL IN/OUT terminal You can use this jack to hook up other PIONEER equipment, that has a CONTROL terminal, so that you can control them all by pointing the remote control(s) at one remote sensor. 4 Radio antenna terminals Hook up antennas for the radio tuner built into the receiver here. 5 MULTI ROOM & SOURCE OUT terminals These terminals output the audio & video signal to a sub- system in a secondary room. Note that the MONITOR OUT here is different than the MONITOR OUT for the main system. These are analog jacks. 6 MONITOR OUT terminals Use this terminal to output the video signal to your TV, video projector or monitor in your main room. Be careful not to confuse this jack with the MULTI ROOM & SOURCE MONITOR OUT. 7 PRE OUT analog terminals (connect an amplifier here) Use these terminals to output the audio signal from this amplifier to a different amplifier if that's how you choose to set up your system. 8 COMPONENT VIDEO MONITOR OUT terminals Use these terminals to output the video signal from the COMPONENT VIDEO IN terminals to your TV. See #17 for more information. 9 12V TRIGGER terminal Use this terminal to output a signal that can automatically turn on another component. DC OUT12V/100mA is the maximum power. www. xiaoyu163. com QQ 376315150 9 9 2 8 9 4 2 9 8 TEL 13942296513 9 9 2 8 9 4 2 9 8 0 5 1 5 1 3 6 7 3 Q Q TEL 13942296513 QQ 376315150 892498299 TEL 13942296513 QQ 376315150 892498299 http://www.xiaoyu163.com VSX-45TX 149 5 6 7 8 5 6 7 8 C D F A B E 10 MULTI ROOM & SOURCE REMOTE IN terminals Use these terminals to hook up a sub-system in a secondary room. This hook up requires a separately sold IR receiver and allows you to use the receiver to hear different audio sources in different rooms. 11 SPEAKERS terminals Use these terminals to connect speakers to the receiver. The FRONT, CENTER and SURROUND terminals are for the main speaker system and the SURROUND BACK speakers can be set to either the main system, the SECOND ZONE, or the MULTI ROOM. 12 AC OUTLET (switched, 100 W max) Hook up an external component to the power supply of this receiver. Only do this with audio or video components being used in this system and never hook up heavy equipment (like TVs, heaters, air conditioners, refrigerators, etc.) to this receiver. 13 USB AUDIO IN terminal Use this terminal to connect a PC to this receiver. 14 Audio input/output terminals (connect analog components here) Use these terminals to input/output the audio signal from analog components (like a cassette deck or turntable). These are analog jacks. 15 Video components input/output terminals Input/output signals from your video components (DVD, VCR, TV tuners, SAT tuners, etc.) here. 16 MULTI CH IN terminals Use these terminals to input a multichannel surround signal (for example, a DVD-Audio signal) in an analog fashion. These are analog jacks. 17 COMPONENT VIDEO IN terminals Use these terminals to hook up the video connections of your video components with this high quality method. Your components will have to have the terminals as well to take advantage of this kind of connection. If you don't connect as per the default settings you need to complete "Assigning the Component Video Inputs". 18 RS-232C Connection This is a future-oriented port that has the possibility on inputting and/or outputting information to/from the receiver. · ª · ª R L R R L L IN 1 IN 2 (DVD/LD) (TV/SAT) COMPONENT VIDEO MONITOR OUT FRONT CENTER SURROUND SURROUND BACK / 12V TRIGGER (DC OUT12V/ 100mA MAX) Y PB PR Y PB PR Y PB PR AC OUTLET ASSIGNABLE SPEAKERS RS-232C MULTI-ROOM & SOURCE REMOTE IN Å ı 8 9 12 11 10 17 18 www. xiaoyu163. com QQ 376315150 9 9 2 8 9 4 2 9 8 TEL 13942296513 9 9 2 8 9 4 2 9 8 0 5 1 5 1 3 6 7 3 Q Q TEL 13942296513 QQ 376315150 892498299 TEL 13942296513 QQ 376315150 892498299 http://www.xiaoyu163.com VSX-45TX 150 1 2 3 4 1 2 3 4 C D F A B E 8.4 REMOTE CONTROL UNIT OFF S0URCE Î TV MULTI CONTROL SYSTEM RECEIVER DVD/LD TV/SAT TV CONT VCR1/ DVR VCR2 VIDEO CD MULTI OPERATION DIMMER MD/ TAPE2 CD-R/ TAPE1 TUNER RECEIVER 1 2 LOUDNESS TONE 3 4 DNR 5 SIGNAL SEL VIDEO SEL HI-BIT 6 DIRECT ACCESS SEARCH MODE – + +10 DISC ENTER 7 EFFECT/CH SEL 8 9 BASS/TREBLE 0 SYSTEM SETUP TUNER EDIT TRACK MENU GUIDE TOP MENU REMOTE SETUP MPX AUDIO EXIT RETURN ENTER ¶ TUNING – STATION MODE SURROUND – CHANNEL– 1 4 DTV ON/OFF DISP MODE TUNING + + CHANNEL+ ¡ STATION ¢ 8 3 7 SUB TITLE BAND DTV MENU CLASS TV INPUT TV CONTROL TV CH TV VOL VOLUME INPUT MIDNIGHT MULTI CH INPUT STEREO/ DIRECT MOVIE MUSIC ENTER MUTE SB CH MODE ACOUSTIC EQ SETUP 1 Remote Control Display Screen 2 SOURCE button Use this button to turn on/off other components. You must input the preset code in order to use this function. TV button This is a dedicated TV button. Use it to turn on/off your TV. 3 MULTI CONTROL buttons These buttons are the basic controls that switch the mode of the receiver and the remote control, which allows you to control your other components. TV CONT: Press so that the remote control can operate the TV control commands. 4 Number buttons These can be used for many purposes depending on the mode of the remote control. When in receiver mode the buttons operate as below: Display DIMMER Use to adjust the brightness of the receiver's display. LOUDNESS button Switches the LOUDNESS mode on or off (for all modes except THX CINEMA and MULTI CH IN). TONE button This button switches between TONE ON and TONE BYPASS, which bypasses the tone circuitry. BASS/TREBLE buttons Use to select whether the bass or treble will be adjusted. (+/–) buttons Use to adjust the TONE level, effect level and channel level as well as make Dolby Pro Logic II music parameter settings. EFFECT/CH SEL. button Switches between the different channels so you can add volume individually to each channel with the + and – buttons. Also selects EFFECT mode of Pioneer original sound modes and Dolby Pro Logic II music parameter settings. You can then use the + and – buttons to make these adjustments. SIGNAL SELECT button Press SIGNAL SELECT repeatedly to select one of the following: AUTO – If there are analog and digital signals input, the receiver automatically selects the digital signal. DIGITAL – To select an optical or coaxial digital signal. ANALOG – To select an analog signal. DIGITAL NR (DNR) button Switches the DIGITAL NR on or off. VIDEO SELECT button Use to toggle between the different video input possibilities. HI-BIT button Use this button to switch the Hi-BIT Hi-SAMPLING on or off. Use to hear CD and DVD, as well as other digital soundtracks at a wider dynamic range, allowing for finer audio reproduction. 1 5 6 7 8 4 3 2 9 0 - = % # @ & * ~ ! ( ) _ ^ $ This page describes the buttons on the remote control used to operate the receiver. www. xiaoyu163. com QQ 376315150 9 9 2 8 9 4 2 9 8 TEL 13942296513 9 9 2 8 9 4 2 9 8 0 5 1 5 1 3 6 7 3 Q Q TEL 13942296513 QQ 376315150 892498299 TEL 13942296513 QQ 376315150 892498299 http://www.xiaoyu163.com VSX-45TX 151 5 6 7 8 5 6 7 8 C D F A B E 5 SYSTEM SET UP button Use for all system setups, including the speaker and sound systems. For more information see. “Setting up for Surround Sound“ starting on page 36. For a DVD player use this button to bring up the DVD menu and for a tuner use this button in the same way as the TUNER EDIT button. 6 5˜∞˜2˜3˜ENTER buttons These buttons can be used for a variety of operations in the SYSTEM SETUP menu. These buttons are used to control the menus for other components when in those modes (DVD, digital TV tuner, satellite tuner, cable tuner, etc.). In TUNER mode, they can select a station and/or a frequency. 7 AUDIO button Use to switch the audio tracks of a DVD when in DVD mode. 8 Command button for other components Use these buttons to control other components you selected with the MULTI CONTROL buttons. You must input the preset code in order use this function. 9 TV CONTROL buttons The following buttons are used to control the TV only and can be used once they are preset to control your TV. TV INPUT: Press to select the input source for the TV. TV CH +/– : Use these buttons to change the channel of the TV. TV VOL +/– : Press to control the volume of the TV. 0 Listening mode buttons SURROUND buttons (MOVIE, MUSIC, | \ & ENTER): MOVIE: Press to put the receiver into MOVIE listening mode. MUSIC: Press to put the receiver into MUSIC listening mode. | \: Use to select the MOVIE or MUSIC listening mode. ENTER: Use this button to enter information concerning the listening modes. STEREO/DIRECT: Switches the receiver into STEREO mode if it was in a different sound mode or toggles between DIRECT and STEREO mode. DIRECT playback bypasses the tone controls and channel level for the most accurate reproduction of a program source. - SB CH MODE button Use this button to turn the surround back channels on/off/auto or switch the virtual surround back mode between on/off/auto. = SYSTEM OFF button This button turns off components in two ways. First, when pressed it will turn off all PIONEER components. Secondly, any component that has programmed into the SYSTEM OFF settings will be turned off. For example: If you programmed power off in the SYSTEM OFF settings for your TV and VCR, pressing the SYSTEM OFF button will turn off these components even if they are not PIONEER products. ~ RECEIVER (standby/on) button Press to turn power of the receiver on or to standby (off). ! MULTI OPERATION button Use this button to start the MULTI OPERATION mode. For how to program and use the MULTI OPERATION mode. @ RECEIVER button Use this button to switch the remote control into receiver mode in order to get certain receiver functions or do receiver setups. # TOP MENU/GUIDE button Use to find stations or menus on a digital TV tuner. For a DVD player use this button to bring up the DVD menu. $ RETURN button When you are in a receiver setup operation this button will go back one step in the SYSTEM SETUP procedure. When you are using your DVD menu screen this button acts the same as the DVD player's "Return" button. When you are using cable tuners, satellite tuners or digital TV tuners this button will either exit you from the menu screen or act like a "Return" button above, depending on the maker of the unit. % INPUT button Press to select an input source. The button will cycle through all the possible sources. ^ VOLUME (+/–) buttons Use to raise or lower the volume of the receiver. & MIDNIGHT button Switches the MIDNIGHT listening mode on or off (for all modes except THX CINEMA and MULTI CH IN). * MUTE button Press to mute or restore the volume. ( MULTI CH INPUT button Use this button to select the component you have hooked up to the MULTI CH IN terminals (for example, a DVD-Audio player). ) ACOUSTIC EQ button Press to switch on/off and select the type of acoustic calibration EQ. _ REMOTE SETUP button Use to customize the remote control functions and the remote control itself. www. xiaoyu163. com QQ 376315150 9 9 2 8 9 4 2 9 8 TEL 13942296513 9 9 2 8 9 4 2 9 8 0 5 1 5 1 3 6 7 3 Q Q TEL 13942296513 QQ 376315150 892498299 TEL 13942296513 QQ 376315150 892498299 http://www.xiaoyu163.com VSX-45TX 152 1 2 3 4 1 2 3 4 C D F A B E SOURCE MULTI CONTROL RECEIVER MOVIE MUSIC ENTER MULTI OPERATION SURROUND MODE STEREO/ DIRECT SYSTEM OFF ACOUSTIC EQ SB CH MODE INPUT MIDNIGHT CHANNEL− +− CHANNEL+ DTV ON/OFF BAND DIMMER TONE LOUDNESS EFFECT/CH SEL SIGNAL SEL BASS/TREBLE DISC DNR VIDEO SEL SUB TITLE REMOTE SETUP HI-BIT D.ACCESS MPX TV CONTROL CLASS MUTE MENU TOP MENU TUNER EDIT GUIDE SYSTEM SETUP AUDIO RETURN CHANNEL VOLUME INPUT SELECT +10 MULTI CH INPUT RECEIVER ST TUNE MASTER VOLUME ST TUNE DVD/LD ENTER ENTER VCR 2 TV/SAT CD VCR/DVR TV CONT TUNER RECEIVER VSX-43TX : AXD7328 www. xiaoyu163. com QQ 376315150 9 9 2 8 9 4 2 9 8 TEL 13942296513 9 9 2 8 9 4 2 9 8 0 5 1 5 1 3 6 7 3 Q Q TEL 13942296513 QQ 376315150 892498299 TEL 13942296513 QQ 376315150 892498299 http://www.xiaoyu163.com

标签:

版权声明

1. 本站所有素材,仅限学习交流,仅展示部分内容,如需查看完整内容,请下载原文件。
2. 会员在本站下载的所有素材,只拥有使用权,著作权归原作者所有。
3. 所有素材,未经合法授权,请勿用于商业用途,会员不得以任何形式发布、传播、复制、转售该素材,否则一律封号处理。
4. 如果素材损害你的权益请联系客服QQ:77594475 处理。