飞利浦170X6液晶显示器维修手册

分类:电子电工 日期: 点击:0
飞利浦170X6液晶显示器维修手册-0 飞利浦170X6液晶显示器维修手册-1 飞利浦170X6液晶显示器维修手册-2 飞利浦170X6液晶显示器维修手册-3 飞利浦170X6液晶显示器维修手册-4 飞利浦170X6液晶显示器维修手册-5 飞利浦170X6液晶显示器维修手册-6 飞利浦170X6液晶显示器维修手册-7 飞利浦170X6液晶显示器维修手册-8 飞利浦170X6液晶显示器维修手册-9

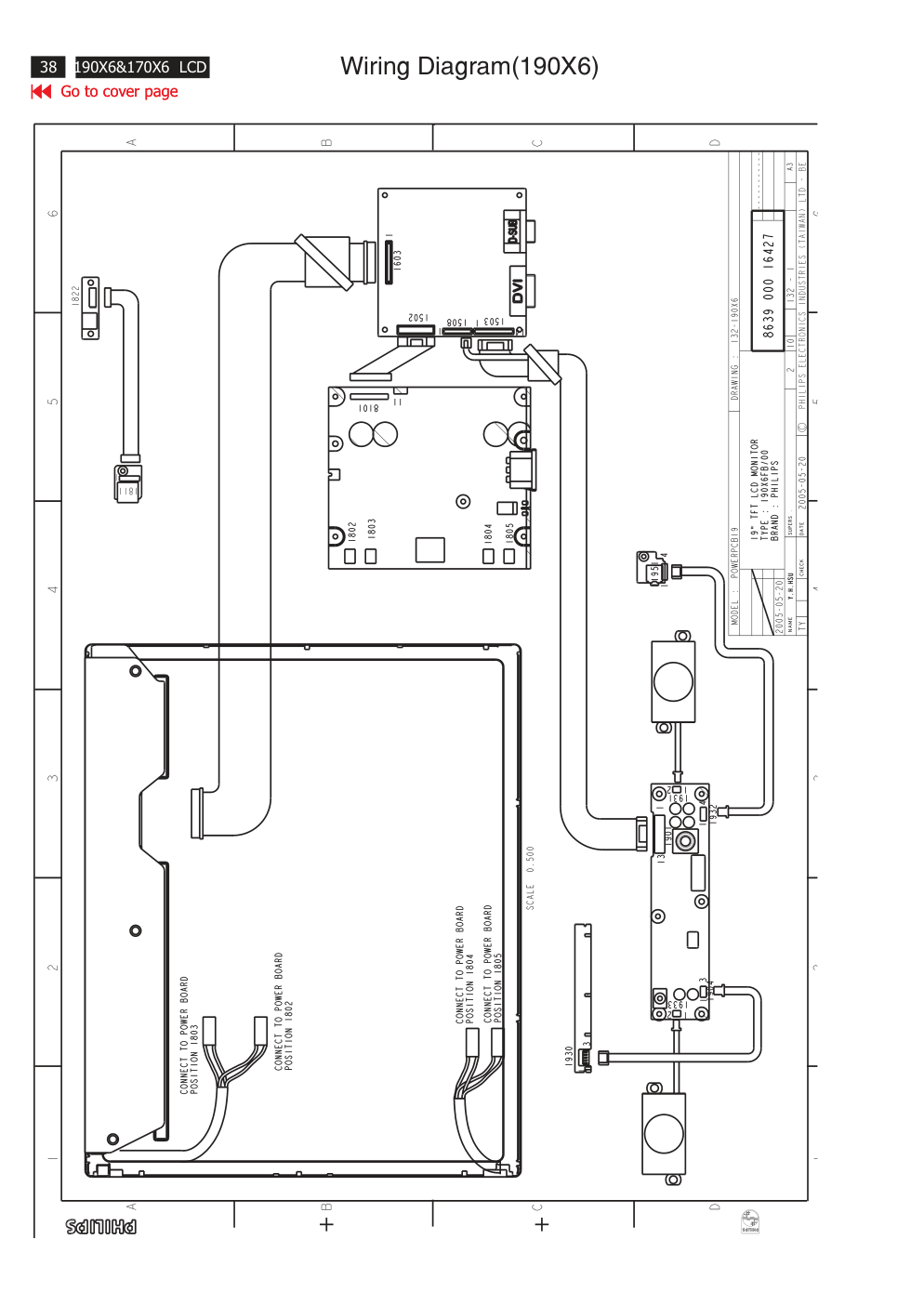
Service Service Service Published by BCU Monitors Printed in suzhou Copyright reserved Subject to modification F Jul .4 2005 Description Page Important Safety Notice------------------------------- 2 Technical Data/Installation------------------------3~6 On-Screen Display/Aging Mode--------------------7~9 Mechanical instructions--------------------------12~13 Warning Message--------------------------------17~18 Factory Mode/Pixel defect policy---------------10~11 Display adjustment/Trouble shooting----------14~16 Electrical Instructions---------------------------19~22 LightFrameDR------------------------------------23~24 DDC Instructions/DATA--------------------------25~33 ISP Instructions----------------------------------34~36 Wiring Diagram-----------------------------------37~38 Block Diagram----------------------------------------39 Description Page Scaler Diagram/C.B.A---------------------------40~46 Audio Diagram/C.B.A---------------------------47~54 Power Diagram/C.B.A---------------------------55~57 USB Diagram/C.B.A-----------------------------58~60 Control&Earphone Diagram/C.B.A-------------61~63 Exploded View---------------------------------- 64~65 Recommended Parts list-----------------------------66 Spare Parts list-----------------------------------67~71 Repair Tips/Repair Flow Chart-----------------72~76 General product specification----------------77~102 Different parts list---------------------------------103 Safety Test Requirements--------------------------104 REFER TO BACK COVER FOR IMPORTANT SAFETY GUIDELINES CAUTION: USE A SEPARATE ISOLATION TRANSFORMER FOR THIS UNIT WHEN SERVICING. ANY PERSON ATTEMPTING TO SERVICE THIS CHASSIS MUST FAMILIARIZE HIMSELF WITH THE CHASSIS AND BE AWARE OF THE NECESSARY SAFETY PRECAUTIONS TO BE USED WHEN SERVICING ELECTRONIC EQUIPMENT CONTAINING HIGH VOLTAGES. GB 3138 106 10478 170X6FB/00 170X6FB/93 170X6FW/00 170X6FW/93 190X6FB/00 190X6/FB/93 37 190X6&170X6 LCD Wiring Diagram(170X6) Go to cover page 38 190X6&170X6 LCD Go to cover page Go to cover page Wiring Diagram(190X6) Block Diagram 39 190X6&170X6 LCD Audio & ControlBoard USB UP Upstream From PC Downstream to USB Device Speaker Spec 170X6 2W x 2 190X6 3W x 3 Scaler Board GM5321LF + Pacific1SC VGA AC Power Inverter LVDS Interface + Panel Backlight Board Backlight DVI-I Audio & Control 13Pin Power I/F 11Pin Audio & Control 13Pin Earphone OSD key 3Pin 4Pin USB Down 5Pin Scaler Diagram Go to cover page 40 190X6&170X6 LCD Scaler Diagram 41 190X6&170X6 LCD Scaler Diagram Go to cover page 42 190X6&170X6 LCD Scaler Diagram 43 190X6&170X6 LCD Scaler Diagram Go to cover page 44 190X6&170X6 LCD Scaler Board C.B.A 45 190X6&170X6 LCD Scaler Board C.B.A Go to cover page 46 190X6&170X6 LCD AUDIO DIAGRAM(170X6) 47 190X6&170X6 LCD AUDIO DIAGRAM(170X6) Go to cover page 48 190X6&170X6 LCD Audio Board C.B.A(170X6) 49 190X6&170X6 LCD Audio Board C.B.A(170X6) Go to cover page 50 190X6&170X6 LCD AUDIO DIAGRAM(190X6) 51 190X6&170X6 LCD AUDIO DIAGRAM(190X6) Go to cover page 52 190X6&170X6 LCD Audio Board C.B.A(190X6) 53 190X6&170X6 LCD Audio Board C.B.A(190X6) Go to cover page 54 190X6&170X6 LCD POWER DIAGRAM 55 190X6&170X6 LCD POWER DIAGRAM Go to cover page 56 190X6&170X6 LCD Power Board C.B.A 57 190X6&170X6 LCD USB DIAGRAM Go to cover page 58 190X6&170X6 LCD USB Board C.B.A 59 190X6&170X6 LCD USB Board C.B.A Go to cover page 60 190X6&170X6 LCD CONTROL&EARPHONE DIAGRAM 61 190X6&170X6 LCD Control Board C.B.A Go to cover page 62 190X6&170X6 LCD

标签:

版权声明

1. 本站所有素材,仅限学习交流,仅展示部分内容,如需查看完整内容,请下载原文件。
2. 会员在本站下载的所有素材,只拥有使用权,著作权归原作者所有。
3. 所有素材,未经合法授权,请勿用于商业用途,会员不得以任何形式发布、传播、复制、转售该素材,否则一律封号处理。
4. 如果素材损害你的权益请联系客服QQ:77594475 处理。