飞利浦170P6液晶显示器原理图

分类:电子电工 日期: 点击:0
飞利浦170P6液晶显示器原理图-0 飞利浦170P6液晶显示器原理图-1 飞利浦170P6液晶显示器原理图-2 飞利浦170P6液晶显示器原理图-3 飞利浦170P6液晶显示器原理图-4 飞利浦170P6液晶显示器原理图-5 飞利浦170P6液晶显示器原理图-6 飞利浦170P6液晶显示器原理图-7 飞利浦170P6液晶显示器原理图-8 飞利浦170P6液晶显示器原理图-9

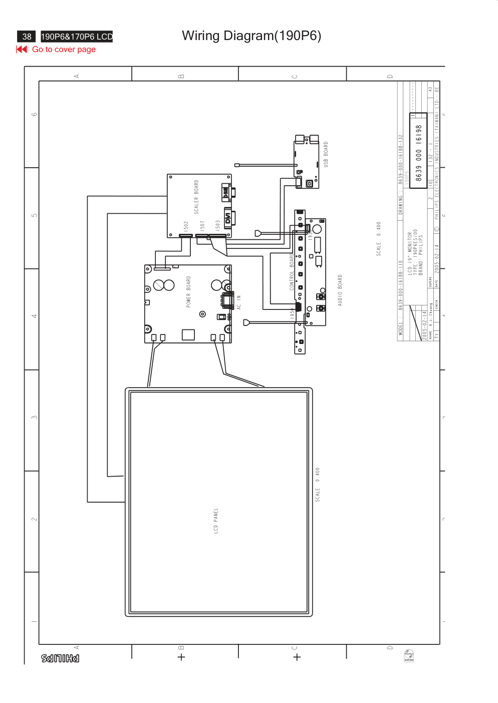
Horizontal frequencies 30 - 83kHz Service Service Service TABLE OF CONTENTS Published by BCU Monitors Printed in suzhou Copyright reserved Subject to modification F Apr .1 2005 Description Page Important Safety Notice---------------------------------- 2 Technical Data/Installation---------------------------3~7 On-Screen Display/Aging Mode---------------------8~9 Mechanical instructions----------------------------13~14 Trouble shooting-------------------------------------17~18 Factory Mode/Pixel defect policy-----------------10~12 Display adjustment/Warning message----------15~16 Electrical Instructions-------------------------------19~22 LightFrameDR----------------------------------------23~24 Safety Test Requirements------------------------------25 DDC Instructions/DATA----------------------------26~34 ISP Instructions--------------------------------------35~37 Wiring Diagram---------------------------------------38~39 Description Page Block Diagram--------------------------------------------40 Scaler Diagram/C.B.A-----------------------------41~52 USB Diagram/C.B.A--------------------------------53~58 Audio Diagram/C.B.A------------------------------59~60 Control&Audio Diagram/C.B.A-------------------61~63 Power Diagram/C.B.A-----------------------------64~66 Exploded View-------------------------------------- 67~68 Recommended Parts list-------------------------------69 Spare Parts list--------------------------------------70~72 Different parts list----------------------------------73~76 Repair Tips/Repair Flow Chart-------------------77~81 General product specification------------------82~110 REFER TO BACK COVER FOR IMPORTANT SAFETY GUIDELINES CAUTION: USE A SEPARATE ISOLATION TRANSFORMER FOR THIS UNIT WHEN SERVICING. ANY PERSON ATTEMPTING TO SERVICE THIS CHASSIS MUST FAMILIARIZE HIMSELF WITH THE CHASSIS AND BE AWARE OF THE NECESSARY SAFETY PRECAUTIONS TO BE USED WHEN SERVICING ELECTRONIC EQUIPMENT CONTAINING HIGH VOLTAGES. SAFETY NOTICE Family: SH6L GB 3138 106 10460 PHILIPS LCD Monitor 190P6ES/00 190P6EB/27 190P6EG/00 190P6EG/93 190P6EB/00 170P6EB/93 170P6EG/00 170P6EG/93 170P6ES/00 170P6EB/27 Go to cover page 38 190P6&170P6 LCD Wiring Diagram(190P6) 39 190P6&170P6 LCD Go to cover page Wiring Diagram(170P6) Block Diagram 40 190P6&170P6 LCD Scaler Diagram(190P6) 41 190P6&170P6 LCD Scaler Diagram(190P6) 42 190P6&170P6 LCD Scaler Diagram(190P6) 43 190P6&170P6 LCD Scaler Diagram(190P6) 44 190P6&170P6 LCD Scaler Diagram(190P6) 45 190P6&170P6 LCD Scaler Board C.B.A 46 190P6&170P6 LCD Scaler Board C.B.A 47 190P6&170P6 LCD Scaler Diagram(170P6) 48 190P6&170P6 LCD Scaler Diagram(170P6) 49 190P6&170P6 LCD Scaler Diagram(170P6) 50 190P6&170P6 LCD Scaler Diagram(170P6) 51 190P6&170P6 LCD Scaler Diagram(170P6) 52 190P6&170P6 LCD USB Diagram(190P6) 53 190P6&170P6 LCD USB Diagram(190P6) 54 190P6&170P6 LCD USB Board C.B.A 55 190P6&170P6 LCD USB Board C.B.A 56 190P6&170P6 LCD USB Diagram(170P6) 57 190P6&170P6 LCD USB Diagram(170P6) 58 190P6&170P6 LCD Audio Diagram(190P6) 59 190P6&170P6 LCD Audio Board C.B.A 60 190P6&170P6 LCD Control Diagram&C.B.A(190P6) 61 190P6&170P6 LCD Control&Audio Diagram (170P6) 62 190P6&170P6 LCD Control&Audio Diagram&C.B.A(170P6) 63 190P6&170P6 LCD Power Diagram 64 190P6&170P6 LCD Power Diagram 65 190P6&170P6 LCD Power Board C.B.A 66 190P6&170P6 LCD

标签:

版权声明

1. 本站所有素材,仅限学习交流,仅展示部分内容,如需查看完整内容,请下载原文件。
2. 会员在本站下载的所有素材,只拥有使用权,著作权归原作者所有。
3. 所有素材,未经合法授权,请勿用于商业用途,会员不得以任何形式发布、传播、复制、转售该素材,否则一律封号处理。
4. 如果素材损害你的权益请联系客服QQ:77594475 处理。